RIJEKA, VIŠKOVO - Wohnung 1. (67 m2) IN EINEM NEUEN GEBÄUDE 2 SCHLAFZIMMER + WOHNZIMMER, STÄDTISCHES GEBÄUDE VIŠKOVO! GELEGENHEIT!
| Registrationsnummer | DN-41250 |
| Art des Angebots | Verkauf |
| Kategorie | Appartements |
| Bezirk | Primorsko-goranska |
| Gemeindeteil | Viškovo |
| Preis | 236 000 € |
| Gesamtfläche | 67 m² |
| Wohnfläche (Wohnung) | 67 m² |
| Strom | |
| Wasser | |
| Klimaanlage | |
| Heizung | ano |
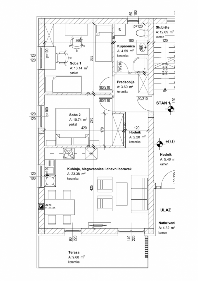
RIJEKA, VIŠKOVO – Wohnung 1. (67 m2) IN EINEM NEUBAU 2 SCHLAFZIMMER + WOHNZIMMER, STÄDTISCHES GEBÄUDE VIŠKOVO! GELEGENHEIT! VORVERKAUF VON WOHNUNGEN BIS 15.07.2025! 15 % RABATT!!! Wohnung 1 – Erdgeschoss Eingangshalle: 3,60 m2 Flur: 2,28 m2 Küche, Esszimmer und Wohnzimmer: 23,38 m2 Terrasse: 9,68 m2 · Zimmer_1: 13,14 m2 · Zimmer_2: 10,74 m2 Badezimmer: 4,59 m2 Gesamtnettofläche von Wohnung 1: 67,41 m2 Das Gebäude dient ausschließlich Wohnzwecken. Es wird 6 Wohnungen mit dazugehörigen Abstellräumen im Keller und Außenparkplätzen enthalten. Im Keller gibt es 6 Abstellräume für 6 Wohnungen. Im Erdgeschoss gibt es 2 Wohnungen. Im 1. Stock befinden sich 2 Wohnungen. Im 2. Stock befinden sich 2 Wohnungen. AUSSENANSICHT UND UMWELTBEZOGENE ENTWICKLUNG: Das Gebäude verfügt über einfache und funktionale Volumen. Die Fassaden sind mäßig horizontal und vertikal gegliedert. Die Fassade wird mit modernen Materialien in einigen Weiß- und Grautönen gestaltet. Die Außenschreinereiarbeiten bestehen aus schwarzem PVC. Die Balkongeländer bestehen aus Glas. Das Dach ist ein Flachdach. Der unbebaute Teil des Baugrundstücks wird in eine Auto- und Fußgängerzone, eine Zufahrtszone zum Gebäude, eine Fußgängerzone und eine Grünfläche aufgeteilt. Die Auto- und Fußgängerzone sowie die Zufahrtszone zum Gebäude werden asphaltiert. Die Fußgängerzone wird mit Betonelementen gepflastert und die Grünflächen werden mit Gras bewachsen und gärtnerisch mit niedriger und hoher einheimischer Vegetation angelegt. BAUWEISE: Die Gebäudestruktur besteht aus Blockziegeln, mit Ausnahme der Kellerwände, die aus Stahlbeton bestehen. Die Ziegelblockwände sind mit vertikalen und horizontalen Stahlbetonringen eingerahmt. Die Zwischengeschosskonstruktionen bestehen aus massiven Stahlbetonplatten. Die Treppenflügel und Podeste bestehen aus massiven Stahlbetonplatten. Die Stützen, Balken und Stürze sind aus Stahlbeton. Die Fundamente und Überfundamentwände bestehen aus Stahlbeton. Die Dachkonstruktion besteht aus massiven Stahlbetonplatten. INSTALLATIONEN: Das Gebäude beherbergt Sanitärwasserversorgungs- und -abflussanlagen, Regenwasserabflussanlagen, Kondensatabflussanlagen der Wärmetechnik, Stark- und Schwachstrominstallationen (Telefon und Gegensprechanlage) sowie mechanische Anlagen zum Heizen, Kühlen und Lüften. MIKRO-LAGE: Die Gemeinde Viškovo liegt nordwestlich von Rijeka und stellt eine der innovativsten Regionen nicht nur in der Gespanschaft Primorje-Gorski kotar, sondern auch auf nationaler Ebene dar. Die Gemeinde Viškovo ist über den Hauptknotenpunkt Škurinje und den neu eröffneten Knotenpunkt Rujevica (Umgehungsstraße von Rijeka) an Staatsstraßen angeschlossen, was den Transit und den Zugang zur Gemeinde selbst erleichtert. Insgesamt führen 5 Kreisstraßen und 4 lokale Straßen durch die Gemeinde. Die Gemeinde Viškovo liegt ganz in der Nähe der Grenze zu Slowenien (Grenzübergang Rupa) und ist daher für Slowenen und Italiener leicht und schnell erreichbar und stützt sich teilweise auf Opatija als starkes Touristenzentrum. Die Siedlung Viškovo ist das Verwaltungszentrum der Gemeinde. Alle wichtigen Institutionen befinden sich entlang der Hauptstraße: die Gemeinde, das Postamt, die Grundschule, Kindergärten, die Bibliothek, Einrichtungen der medizinischen Grundversorgung, Apotheken, Banken, die Kirche, das Tourismusbüro, Tankstellen und eine Reihe von Lebensmittelgeschäften sowie verschiedene Dienstleistungsunternehmen. IMMOBILIEN IN AUSGEZEICHNETER UND EINZIGARTIGER LAGE MIT GROSSEM POTENZIAL! Sicherlich eine Immobilie für das Familienleben, aber auch als Investition in Form von Tourismus geeignet. Seien Sie einen Schritt voraus und nutzen Sie diese seltene Gelegenheit!
Bei allen unseren Angeboten sind die Preise identisch mit dem Direktkauf bei der Agentur/dem Entwickler in Kroatien, da wir der offizielle Vertreter dieser Agenturen auf dem tschechischen, slowakischen, deutschen und österreichischen Markt sind. Dies gilt ohne zusätzliche Zuschläge für deutschsprachige Dienstleistungen.
Sehr geehrte Kunden, die Besichtigung von Immobilien, die Mitteilung der Lage und andere detaillierte Informationen sind nur mit einem unterzeichneten Vermittlungsvertrag möglich, der die Grundlage für weitere Aktionen wie den Kauf einer Immobilie bildet. Alles steht im Einklang mit dem Gesetz über die Vermittlung beim Kauf von Immobilien. Der Käufer zahlt eine gesetzliche Vermittlungsprovision in Höhe von 3% (+ MwSt.) des vereinbarten Preises, und zwar nur im Falle des Kaufs der Immobilie. Sollte der Kauf nicht zustande kommen, ist der Vertrag für Sie nicht bindend und wird annulliert. Wenn Sie ernsthaft an der Immobilie interessiert sind, senden wir Ihnen den Vertrag auf Anfrage zu.
Wir werden Ihnen innerhalb von 24 Stunden antworten.
Wir bieten nur geprüfte Immobilien an.
Wir garantieren eine hohe Servicequalität.
Wir können Ihnen bei der Vermittlung von Unterkünften während der Besichtigungen helfen.
- Ich habe eine Immobilie aus dem Angebot ausgewählt
- Ich kontaktiere den Makler
- Ich unterschreibe einen Vertretungsvertrag - Details hier! (die Unterzeichnung des Vertrags ist gesetzlich vorgeschrieben)
- Ich richte eine OIB ein - Details hier (die Einrichtung ist gesetzlich vorgeschrieben)
- Besichtigungen vor Ort
- Unterzeichnung der Reservierung, des Kaufvertrags