ZADAR, ZATON – Komplett möblierte Luxusapartments 55 Meter vom Strand entfernt! A2
| Registrationsnummer | DN-41733 |
| Art des Angebots | Verkauf |
| Kategorie | Appartements |
| Bezirk | Zadarska |
| Gemeindeteil | Nin |
| Preis | 1 135 750 € |
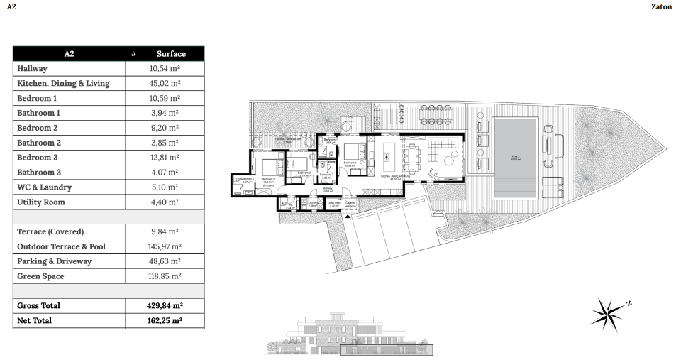
| Gesamtfläche | 162 m² |
| Wohnfläche (Wohnung) | 162 m² |
| Bebaute Fläche und Hof | 264 m² |
| Gesamt bebaut fläche | 264 m² |
| Entfernung vom meer | 55 m |
| Strom | |
| Wasser | |
| Abfall | |
| Klimaanlage |
ZADAR, ZATON – Vollständig möblierte Luxusapartments 55 Meter vom Strand entfernt! A2 In Zaton, nur 55 Meter vom Strand entfernt, stehen vier Luxusapartments zum Verkauf. Zwei Apartments befinden sich im Erdgeschoss, während zwei Maisonette-Apartments im zweiten Stock liegen und über eine Dachterrasse mit herrlichem Blick auf das Meer und den Strand verfügen. Die Apartments werden voll möbliert mit hochwertigen Luxusmöbeln verkauft. Jedes Apartment verfügt über drei Schlafzimmer mit jeweils eigenem Bad, ein zusätzliches Badezimmer und eine Gästetoilette. Darüber hinaus verfügt jedes Apartment über drei Parkplätze, von denen einer geschlossen und einer mit einer Ladestation für Elektrofahrzeuge ausgestattet ist. Das Gebäude verfügt über einen Aufzug des renommierten Herstellers Schindler, und der Eingang ist durch Sicherheitstüren, eine Videosprechanlage und eine externe Überwachungskamera gesichert. Das intelligente Managementsystem in den Apartments basiert auf dem KNX-Protokoll mit hochwertigen Komponenten von ABB und Siemens. Das Internet ist vollständig integriert und bietet die Möglichkeit, eine Verbindung zum Starlink-Satelliteninternet herzustellen. Die Eingangstüren sind einbruch- und feuerhemmend und verfügen über ein Mehrfachverriegelungssystem. Die Gebäudestruktur besteht aus Stahlbeton mit erstklassiger Wärme- und Schalldämmung aus Steinwolle und EPS. Die Böden in den Wohnbereichen und Fluren sind mit großformatigen Feinsteinzeugfliesen ausgelegt, während die Schlafzimmer mit dreischichtigem Eichenparkett ausgestattet sind. Wände und Decken sind mit Holz, Stein und Dekorpaneelen verkleidet, und jede Wohnung verfügt über einen Designerkamin mit variablem Lichteffekt. Die Küchen sind maßgefertigt und verfügen über integrierte Beleuchtung und Granitarbeitsplatten, eine Kochinsel mit Wasserfalleffekt und hochwertige Miele-Geräte: Induktionskochfeld, Backofen, Geschirrspüler, Dunstabzugshaube und Weinkühler. Die Badezimmer sind luxuriös ausgestattet mit Geberit-Sanitärsystemen, Hansgrohe-Armaturen, begehbaren Duschen mit gehärtetem Glas und Stein- oder Quarzoberflächen. Die Wohnungen verfügen über Fußbodenheizung in allen Räumen, eine LG-Wärmepumpe und ein Heizkesselsystem, Klimaanlage und intelligente Lichtsteuerung, Jalousien und ein Sonos-Soundsystem in allen Räumen. Die Außenseite des Gebäudes ist mit Acrylputz mit Steinwolle verkleidet, die Tischlerei ist dreifach verglast und verfügt über automatische Rollläden. Die Außenterrassen sind mit hochwertigen Abdichtungssystemen ausgestattet und mit wetterbeständigen Platten abgedeckt. Jede Wohnung verfügt über eine eigene Sommerküche, und die Wohnungen im Erdgeschoss haben eigene Swimmingpools mit modernen Filter- und Elektrolysesystemen. Die Dachterrassen sind mit bioklimatischen Pergolen ausgestattet, die elektrisch gesteuert werden können. Zaton ist ein ruhiger Ferienort, der für seine wunderschönen Strände, das kristallklare Meer und die Nähe zum berühmten Ferienkomplex Zaton Holiday Resort bekannt ist, der nur eine Autominute entfernt ist. Die Stadt Zadar mit ihrem reichen kulturellen Erbe, Restaurants, Geschäften und dem internationalen Flughafen ist nur zehn Minuten entfernt. Dies ist eine einmalige Gelegenheit, in einer luxuriösen Gegend am Meer mit erstklassigen Annehmlichkeiten und umfassendem Komfort zu investieren oder zu leben. Für weitere Informationen und eine Besichtigung kontaktieren Sie uns bitte.
Bei allen unseren Angeboten sind die Preise identisch mit dem Direktkauf bei der Agentur/dem Entwickler in Kroatien, da wir der offizielle Vertreter dieser Agenturen auf dem tschechischen, slowakischen, deutschen und österreichischen Markt sind. Dies gilt ohne zusätzliche Zuschläge für deutschsprachige Dienstleistungen.
Sehr geehrte Kunden, die Besichtigung von Immobilien, die Mitteilung der Lage und andere detaillierte Informationen sind nur mit einem unterzeichneten Vermittlungsvertrag möglich, der die Grundlage für weitere Aktionen wie den Kauf einer Immobilie bildet. Alles steht im Einklang mit dem Gesetz über die Vermittlung beim Kauf von Immobilien. Der Käufer zahlt eine gesetzliche Vermittlungsprovision in Höhe von 3% (+ MwSt.) des vereinbarten Preises, und zwar nur im Falle des Kaufs der Immobilie. Sollte der Kauf nicht zustande kommen, ist der Vertrag für Sie nicht bindend und wird annulliert. Wenn Sie ernsthaft an der Immobilie interessiert sind, senden wir Ihnen den Vertrag auf Anfrage zu.
Wir werden Ihnen innerhalb von 24 Stunden antworten.
Wir bieten nur geprüfte Immobilien an.
Wir garantieren eine hohe Servicequalität.
Wir können Ihnen bei der Vermittlung von Unterkünften während der Besichtigungen helfen.
- Ich habe eine Immobilie aus dem Angebot ausgewählt
- Ich kontaktiere den Makler
- Ich unterschreibe einen Vertretungsvertrag - Details hier! (die Unterzeichnung des Vertrags ist gesetzlich vorgeschrieben)
- Ich richte eine OIB ein - Details hier (die Einrichtung ist gesetzlich vorgeschrieben)
- Besichtigungen vor Ort
- Unterzeichnung der Reservierung, des Kaufvertrags