ZAGREB, RUDEŠ – Wohnung in einem Neubau in toller Lage!
| Registrationsnummer | DN-42553 |
| Art des Angebots | Verkauf |
| Kategorie | Appartements |
| Bezirk | Grad Zagreb |
| Gemeindeteil | Trešnjevka - Sjever |
| Preis | 302 000 € |
| Gesamtfläche | 62 m² |
| Wohnfläche (Wohnung) | 62 m² |
| Strom | |
| Wasser | |
| Abfall | |
| Klimaanlage | |
| Heizung | ano |
| Energieintensität | X - Nicht ausgestellt |
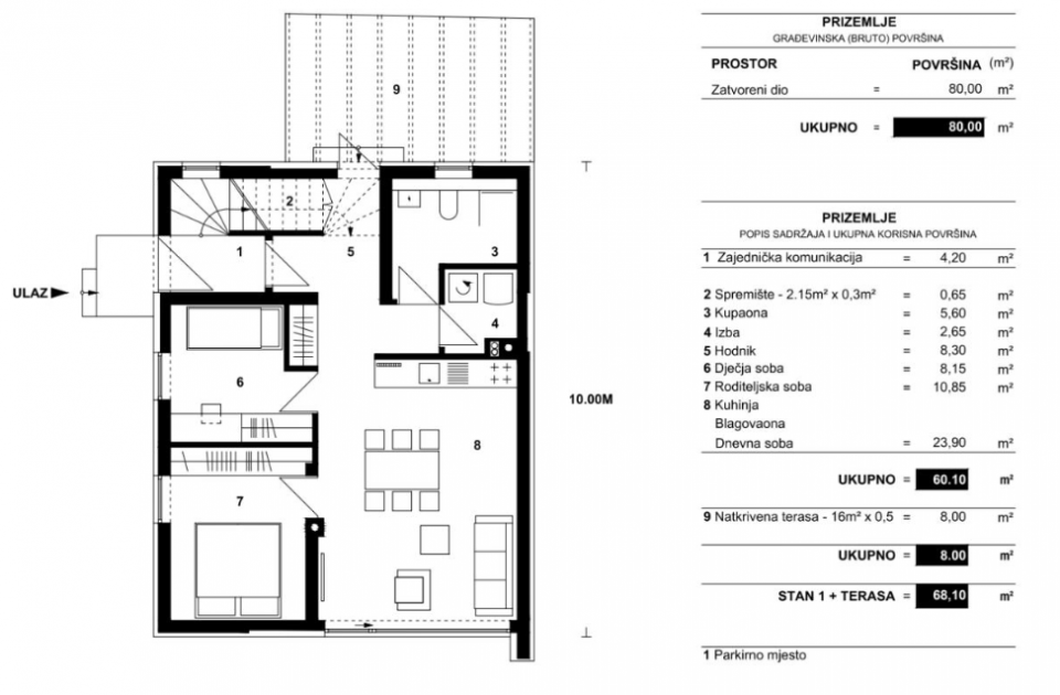
ZAGREB, RUDEŠ – Wohnung in einem Neubau in toller Lage! Zum Verkauf steht eine moderne Wohnung im Erdgeschoss eines Neubaus in einer ruhigen Straße, ideal für ein Familienleben oder ein ruhiges Wohnen mit allen Annehmlichkeiten in Reichweite. Die Wohnung verfügt über eine geschlossene Fläche von 62 m², und ein zusätzlicher Mehrwert ist die 16 m² große, überdachte Terrasse, die zu einem privaten, nicht einsehbaren Teil des Hofes führt. Zur Wohnung gehört außerdem ein gesicherter Außenparkplatz vor dem Gebäude. Die Innenaufteilung der Wohnung ist äußerst funktional und umfasst zwei Schlafzimmer, ein Badezimmer, ein geräumiges Wohnzimmer, das in einem offenen Konzept mit der Küche und dem Esszimmer verbunden ist, eine Speisekammer (ein Raum, in dem sich die Wärmepumpe und der Waschmaschinenanschluss befinden) sowie einen zusätzlichen Abstellraum unter der Treppe. Die Wohnung ist auf Komfort, Privatsphäre und maximale Raumausnutzung ausgelegt und mit einer überdachten Terrasse und Zugang zum angelegten Garten wird eine angenehme Erweiterung des Wohnraums geschaffen. Innenfläche: Abstellraum (unter der Treppe): 2,15 m² × 0,25 = 0,54 m² (netto) Badezimmer: 5,60 m² × 1,00 = 5,60 m² (netto) Wohnzimmer: 3,96 m² × 1,00 = 3,96 m² (netto) Flur: 7,27 m² × 1,00 = 7,27 m² (netto) Kinderzimmer: 8,15 m² × 1,00 = 8,15 m² (netto) Elternschlafzimmer: 10,85 m² × 1,00 = 10,85 m² (netto) Küche + Esszimmer + Wohnzimmer: 23,57 m² × 1,00 = 23,57 m² (netto) Außenflächen: Überdachte Terrasse: 16,00 m² × 0,50 = 8,00 m² (netto) Garten: 9,00 m² × 0,10 = 0,90 m² (netto) Außenparkplatz: 13,00 m² × 0,20 = 2,60 m² (netto) Außenlager im Garten: 2,30 m² × 0,50 = 1,15 m² (netto) Die Lage der Wohnung ist äußerst günstig – in unmittelbarer Nähe gibt es eine Grundschule und einen Kindergarten (300 Meter), einen Supermarkt, eine Apotheke, sowie eine schnelle Verbindung zur Zagreber Allee und zum Jarun-See, der nur wenige Autominuten entfernt ist. Obwohl Sie in der Nähe aller wichtigen Annehmlichkeiten sind, ist die Straße selbst ruhig und abgeschieden, was ein friedliches Leben ohne Stadtlärm ermöglicht. Das Gebäude wurde mit modernen Materialien und Technologien gebaut und mit hoher Erdbebensicherheit entworfen. Die Wohnung verfügt über eine Fußbodenheizung mit Wärmepumpe, einen zusätzlichen Heizkörper im Badezimmer und eine Inverter-Klimaanlage zur zusätzlichen Heizung und Kühlung. Jedes Zimmer kann die Temperatur über eigene Thermostate separat regeln. Das Badezimmer ist mit hochwertigen Sanitärelementen namhafter Hersteller ausgestattet, darunter eine ebenerdige Dusche und ein Konsolen-WC. Anthrazitfarbene PVC-Fenster mit Dreifachverglasung, elektrische Rollläden und Moskitonetze sorgen für zusätzliche Isolierung und Schutz, während die Glaswände des Hebe-Schiebe-Systems einen direkten Kontakt mit dem Außenbereich ermöglichen und das Wohnzimmer zusätzlich beleuchten. Die Eingangstür ist einbruch- und feuerbeständig, und die Holzinnentüren verfügen über Magnetschlösser und verdeckte Scharniere, was zur Ästhetik und Sicherheit des Raumes beiträgt. Die Wohnung verfügt über eigene Strom- und Wasserzähler, ist an die städtische Kanalisation und das Kabelnetz angeschlossen und bietet Lademöglichkeiten für Elektrofahrzeuge. Jedes Zimmer ist außerdem für Internet und Fernsehen vorbereitet. Der Käufer hat außerdem die Möglichkeit, je nach Bauphase an der Auswahl der Ausbaumaterialien mitzuwirken und den Innenraum nach persönlichen Wünschen zu gestalten. Die Wohnung ist für Personen mit eingeschränkter Mobilität geeignet, da sich der gesamte Raum auf einer Etage ohne Hindernisse befindet.
Bei allen unseren Angeboten sind die Preise identisch mit dem Direktkauf bei der Agentur/dem Entwickler in Kroatien, da wir der offizielle Vertreter dieser Agenturen auf dem tschechischen, slowakischen, deutschen und österreichischen Markt sind. Dies gilt ohne zusätzliche Zuschläge für deutschsprachige Dienstleistungen.
Sehr geehrte Kunden, die Besichtigung von Immobilien, die Mitteilung der Lage und andere detaillierte Informationen sind nur mit einem unterzeichneten Vermittlungsvertrag möglich, der die Grundlage für weitere Aktionen wie den Kauf einer Immobilie bildet. Alles steht im Einklang mit dem Gesetz über die Vermittlung beim Kauf von Immobilien. Der Käufer zahlt eine gesetzliche Vermittlungsprovision in Höhe von 3% (+ MwSt.) des vereinbarten Preises, und zwar nur im Falle des Kaufs der Immobilie. Sollte der Kauf nicht zustande kommen, ist der Vertrag für Sie nicht bindend und wird annulliert. Wenn Sie ernsthaft an der Immobilie interessiert sind, senden wir Ihnen den Vertrag auf Anfrage zu.
Wir werden Ihnen innerhalb von 24 Stunden antworten.
Wir bieten nur geprüfte Immobilien an.
Wir garantieren eine hohe Servicequalität.
Wir können Ihnen bei der Vermittlung von Unterkünften während der Besichtigungen helfen.
- Ich habe eine Immobilie aus dem Angebot ausgewählt
- Ich kontaktiere den Makler
- Ich unterschreibe einen Vertretungsvertrag - Details hier! (die Unterzeichnung des Vertrags ist gesetzlich vorgeschrieben)
- Ich richte eine OIB ein - Details hier (die Einrichtung ist gesetzlich vorgeschrieben)
- Besichtigungen vor Ort
- Unterzeichnung der Reservierung, des Kaufvertrags