CRES ISLAND, CRES CITY – ein hervorragendes neues Gebäude in Toplage, direkt im Zentrum, 50 m vom Meer entfernt
| Registrationsnummer | DN-44371 |
| Art des Angebots | Verkauf |
| Kategorie | Appartements |
| Bezirk | Primorsko-goranska |
| Gemeindeteil | Cres |
| Preis | 430 000 € |
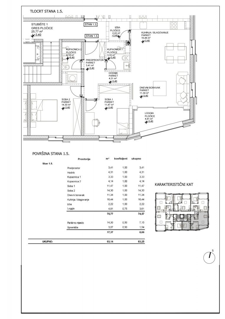
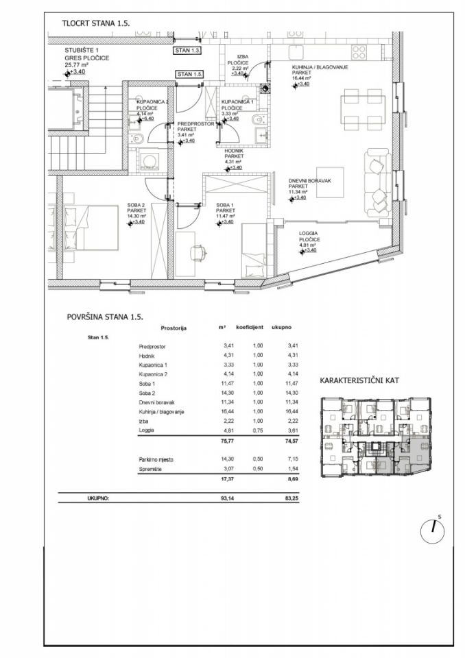
| Gesamtfläche | 93 m² |
| Wohnfläche (Wohnung) | 93 m² |
| Entfernung vom meer | 50 m |
| Strom | |
| Wasser | |
| Abfall | |
| Klimaanlage | |
| Energieintensität | A - extrem wirtschaftlich |
Insel Cres, Stadt Cres – 2-Zimmer-Wohnung mit Wohnzimmer in einem exklusiven Neubau in bester Lage, nur 50 Meter vom Meer entfernt. Wir bieten eine 2-Zimmer-Wohnung mit einem 1,5-Zimmer-Wohnzimmer im ersten Stock eines exklusiven Neubaus in einer außergewöhnlichen und einzigartigen Lage an. Die Wohnung besteht aus Eingangsbereich, Hauswirtschaftsraum, Gäste-WC, Badezimmer, einem offenen Wohnbereich mit Küche und Essbereich sowie Zugang zu einer Loggia und zwei Schlafzimmern mit einer Gesamtwohnfläche von 75,77 m². Zur Wohnung gehört ein Garagenstellplatz (14,30 m²) sowie ein Abstellraum in der Garage (3,07 m²). Dieses attraktive Wohn- und Geschäftsgebäude mit Aufzug und Tiefgarage befindet sich in der ersten Bauphase und umfasst 14 Wohneinheiten mit 1- und 2-Zimmer-Wohnungen. Die Wohnungen werden schlüsselfertig verkauft und sind hochwertig ausgestattet, unter anderem mit Fußbodenheizung, Inverter-Klimaanlagen, erstklassigen Bodenbelägen und Parkett, begehbaren Badezimmern und hochwertiger Sanitärausstattung namhafter Hersteller. Eine Rarität in diesem Angebot, eine einzigartige Lage.
Bei allen unseren Angeboten sind die Preise identisch mit dem Direktkauf bei der Agentur/dem Entwickler in Kroatien, da wir der offizielle Vertreter dieser Agenturen auf dem tschechischen, slowakischen, deutschen und österreichischen Markt sind. Dies gilt ohne zusätzliche Zuschläge für deutschsprachige Dienstleistungen.
Sehr geehrte Kunden, die Besichtigung von Immobilien, die Mitteilung der Lage und andere detaillierte Informationen sind nur mit einem unterzeichneten Vermittlungsvertrag möglich, der die Grundlage für weitere Aktionen wie den Kauf einer Immobilie bildet. Alles steht im Einklang mit dem Gesetz über die Vermittlung beim Kauf von Immobilien. Der Käufer zahlt eine gesetzliche Vermittlungsprovision in Höhe von 3% (+ MwSt.) des vereinbarten Preises, und zwar nur im Falle des Kaufs der Immobilie. Sollte der Kauf nicht zustande kommen, ist der Vertrag für Sie nicht bindend und wird annulliert. Wenn Sie ernsthaft an der Immobilie interessiert sind, senden wir Ihnen den Vertrag auf Anfrage zu.
Wir werden Ihnen innerhalb von 24 Stunden antworten.
Wir bieten nur geprüfte Immobilien an.
Wir garantieren eine hohe Servicequalität.
Wir können Ihnen bei der Vermittlung von Unterkünften während der Besichtigungen helfen.
- Ich habe eine Immobilie aus dem Angebot ausgewählt
- Ich kontaktiere den Makler
- Ich unterschreibe einen Vertretungsvertrag - Details hier! (die Unterzeichnung des Vertrags ist gesetzlich vorgeschrieben)
- Ich richte eine OIB ein - Details hier (die Einrichtung ist gesetzlich vorgeschrieben)
- Besichtigungen vor Ort
- Unterzeichnung der Reservierung, des Kaufvertrags