INSEL KRK, BRZAC – Modern gestaltete Doppelhaushälfte mit Swimmingpool 40m2
| Registrationsnummer | DN-34647 |
| Art des Angebots | Verkauf |
| Kategorie | Häuser |
| Bezirk | Primorsko-goranska |
| Gemeindeteil | Krk |
| Preis | 650 000 € |
| Gesamtfläche | 158 m² |
| Entfernung vom meer | 750 m |
| Strom | |
| Klimaanlage | |
| Heizung | ano |
| Energieintensität | X - Nicht ausgestellt |
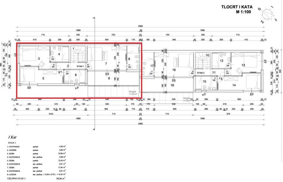
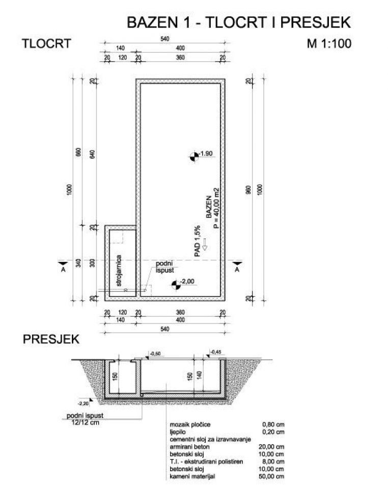
INSEL KRK, BRZAC - Doppelhaushälfte in modernem Design mit Swimmingpool 40m2 Suchen Sie eine einzigartige Immobilie zum Urlaub, Wohnen oder Investieren? Diese im Bau befindliche Doppelhaushälfte mit geplanter Fertigstellung bis Sommer 2025 ist ideal für Sie! In ruhiger Lage, 750 m vom Meer entfernt, bietet es alles, was Sie für perfekten Komfort benötigen. Es umfasst 158 m2 und bietet einen perfekt gestalteten Innenraum! Im Erdgeschoss befindet sich ein geräumiges Wohnzimmer mit Küche und Esszimmer im Open-Space-Stil, mit Zugang zu einer schönen überdachten Terrasse. Außerdem gibt es ein Schlafzimmer mit Bad, eine Waschküche und eine Sauna mit Dusche! Möchten Sie Privatsphäre und Luxus? Im Obergeschoss erwarten Sie drei Schlafzimmer, jedes mit eigenem Bad, und eines hat sogar Zugang zu einer eigenen Loggia – ein perfekter Ort für den Morgenkaffee mit Blick auf das Meer! Der Hof ist eine echte Oase! Sie werden den beheizten Pool von 40 m2 mit Sonnendeck und Grill genießen. Zwei Parkplätze sind inklusive! Die Bauqualität ist auf höchstem Niveau – Fußbodenheizung mit Wärmepumpe, Klimaanlagen in allen Räumen, PVC-Tischlerei, Alarm- und Videoüberwachung, beheizter Pool mit eigener Wärmepumpe. Sicherheit und Komfort in jeder Ecke! Die Mehrwertsteuer ist im Preis inbegriffen und der Käufer zahlt keine Immobilienumsatzsteuer! Lassen Sie sich diese Gelegenheit nicht entgehen – nur einen Schritt von Ihnen entfernt und wählen Sie die Möglichkeit, Ihr Zuhause ganz nach Ihrem Geschmack einzurichten!
Bei allen unseren Angeboten sind die Preise identisch mit dem Direktkauf bei der Agentur/dem Entwickler in Kroatien, da wir der offizielle Vertreter dieser Agenturen auf dem tschechischen, slowakischen, deutschen und österreichischen Markt sind. Dies gilt ohne zusätzliche Zuschläge für deutschsprachige Dienstleistungen.
Sehr geehrte Kunden, die Besichtigung von Immobilien, die Mitteilung der Lage und andere detaillierte Informationen sind nur mit einem unterzeichneten Vermittlungsvertrag möglich, der die Grundlage für weitere Aktionen wie den Kauf einer Immobilie bildet. Alles steht im Einklang mit dem Gesetz über die Vermittlung beim Kauf von Immobilien. Der Käufer zahlt eine gesetzliche Vermittlungsprovision in Höhe von 3% (+ MwSt.) des vereinbarten Preises, und zwar nur im Falle des Kaufs der Immobilie. Sollte der Kauf nicht zustande kommen, ist der Vertrag für Sie nicht bindend und wird annulliert. Wenn Sie ernsthaft an der Immobilie interessiert sind, senden wir Ihnen den Vertrag auf Anfrage zu.
Wir werden Ihnen innerhalb von 24 Stunden antworten.
Wir bieten nur geprüfte Immobilien an.
Wir garantieren eine hohe Servicequalität.
Wir können Ihnen bei der Vermittlung von Unterkünften während der Besichtigungen helfen.
- Ich habe eine Immobilie aus dem Angebot ausgewählt
- Ich kontaktiere den Makler
- Ich unterschreibe einen Vertretungsvertrag - Details hier! (die Unterzeichnung des Vertrags ist gesetzlich vorgeschrieben)
- Ich richte eine OIB ein - Details hier (die Einrichtung ist gesetzlich vorgeschrieben)
- Besichtigungen vor Ort
- Unterzeichnung der Reservierung, des Kaufvertrags