INSEL KRK, MALINSKA - Baugrundstück 585 m2, attraktive Lage 700 m vom Meer entfernt
| Registrationsnummer | DN-33086 |
| Art des Angebots | Verkauf |
| Kategorie | Bauland |
| Bezirk | Primorsko-goranska |
| Gemeindeteil | Malinska-Dubašnica |
| Preis | 310 000 € |
| Preis pro m2 | 529 €/m² |
| Gesamtfläche | 585 m² |
| Entfernung vom meer | 700 m |
| Strom | |
| Abfall |
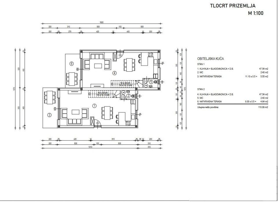
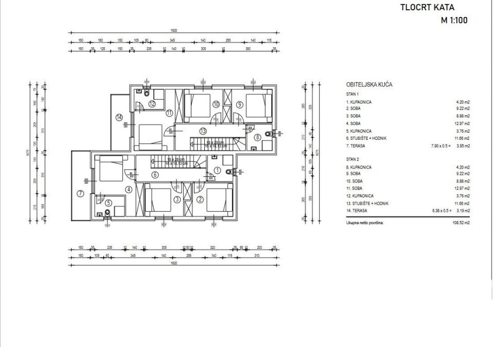
INSEL KRK, MALINSKA - Baugrundstück 585 m2, attraktive Lage 700 m vom Meer entfernt Zum Verkauf steht ein 585 m² großes Baugrundstück in idealer Lage in attraktiver Lage in Malinska. Auf dem Grundstück liegt ein fertiges Konzeptprojekt für den Bau eines Doppelhauses vor, bei dem jede Wohneinheit über einen eigenen Swimmingpool verfügt. Im Erdgeschoss befinden sich laut Projekt eine Küche, ein Esszimmer, ein Wohnzimmer und eine Toilette und Abstellraum, während die erste Etage über drei Schlafzimmer, zwei Badezimmer und eine Terrasse mit freiem Blick auf das Meer verfügt. Das Grundstück ist hervorragend gelegen, nur 700 Meter vom Strand und allen wichtigen Einrichtungen wie Geschäften und Restaurants entfernt. Die Zufahrt erfolgt über die öffentliche Straße und die gesamte notwendige Infrastruktur befindet sich in unmittelbarer Nähe des Grundstücks. Ausgezeichnete Gelegenheit für Investoren, die ein Grundstück mit einem Projekt in attraktiver Lage suchen! ***
Bei allen unseren Angeboten sind die Preise identisch mit dem Direktkauf bei der Agentur/dem Entwickler in Kroatien, da wir der offizielle Vertreter dieser Agenturen auf dem tschechischen, slowakischen, deutschen und österreichischen Markt sind. Dies gilt ohne zusätzliche Zuschläge für deutschsprachige Dienstleistungen.
Sehr geehrte Kunden, die Besichtigung von Immobilien, die Mitteilung der Lage und andere detaillierte Informationen sind nur mit einem unterzeichneten Vermittlungsvertrag möglich, der die Grundlage für weitere Aktionen wie den Kauf einer Immobilie bildet. Alles steht im Einklang mit dem Gesetz über die Vermittlung beim Kauf von Immobilien. Der Käufer zahlt eine gesetzliche Vermittlungsprovision in Höhe von 3% (+ MwSt.) des vereinbarten Preises, und zwar nur im Falle des Kaufs der Immobilie. Sollte der Kauf nicht zustande kommen, ist der Vertrag für Sie nicht bindend und wird annulliert. Wenn Sie ernsthaft an der Immobilie interessiert sind, senden wir Ihnen den Vertrag auf Anfrage zu.
Wir werden Ihnen innerhalb von 24 Stunden antworten.
Wir bieten nur geprüfte Immobilien an.
Wir garantieren eine hohe Servicequalität.
Wir können Ihnen bei der Vermittlung von Unterkünften während der Besichtigungen helfen.
- Ich habe eine Immobilie aus dem Angebot ausgewählt
- Ich kontaktiere den Makler
- Ich unterschreibe einen Vertretungsvertrag - Details hier! (die Unterzeichnung des Vertrags ist gesetzlich vorgeschrieben)
- Ich richte eine OIB ein - Details hier (die Einrichtung ist gesetzlich vorgeschrieben)
- Besichtigungen vor Ort
- Unterzeichnung der Reservierung, des Kaufvertrags