INSEL KRK, MALINSKA – Eine moderne Villa, die alles hat. Und noch ein bisschen mehr.
| Registrationsnummer | DN-41418 |
| Art des Angebots | Verkauf |
| Kategorie | Häuser |
| Bezirk | Primorsko-goranska |
| Gemeindeteil | Malinska-Dubašnica |
| Preis | 1 430 000 € |
| Gesamtfläche | 280 m² |
| Bebaute Fläche und Hof | 450 m² |
| Gesamt bebaut fläche | 450 m² |
| Entfernung vom meer | 1 000 m |
| Strom | |
| Abfall | |
| Klimaanlage | |
| Energieintensität | X - Nicht ausgestellt |
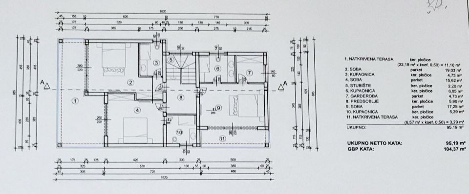
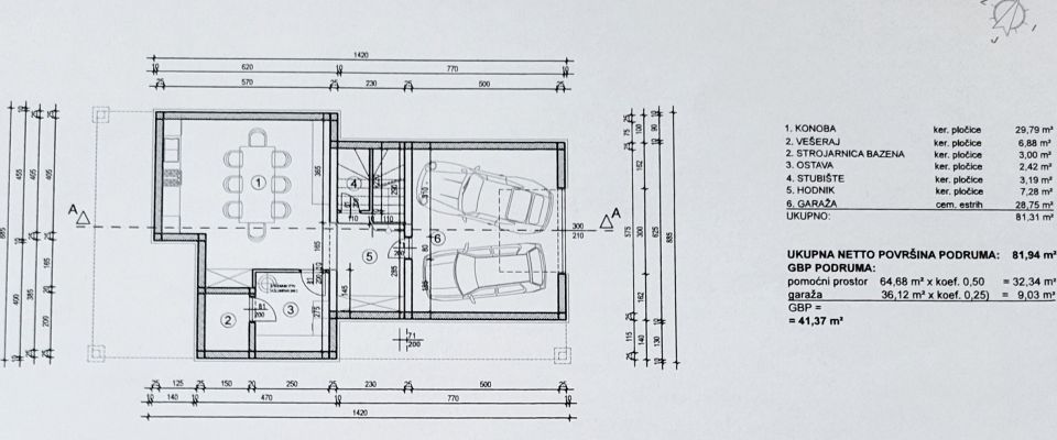
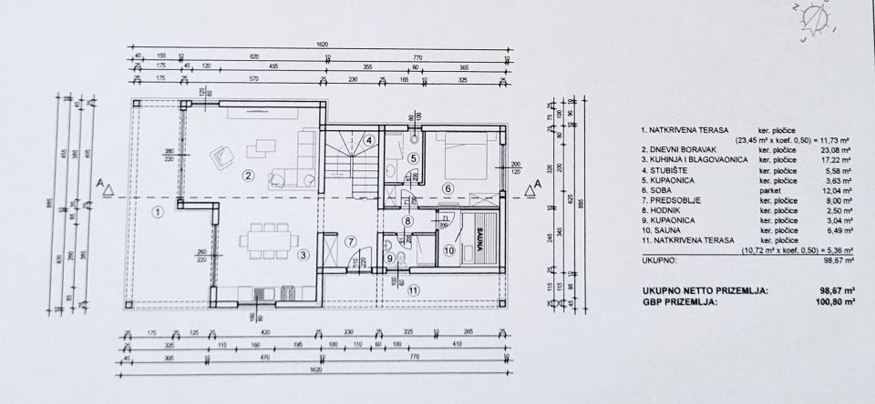
INSEL KRK, MALINSKA – Eine moderne Villa, die alles bietet. Und noch ein bisschen mehr. Willkommen in einer Villa voller Wärme, die auf Sie wartet! Wir betreten den Kellerbereich, der sehr funktional und voller Möglichkeiten ist. Das Erste, was Sie begeistern wird, ist die Garage, die groß genug ist, um zwei Autos unterzubringen, ein größeres und ein kleineres. Direkt darunter befindet sich ein leerer Raum, den Sie in einen Weinverkostungsraum, ein „Spielzimmer“ oder ein privates Fitnessstudio verwandeln können, ganz wie es am besten zu Ihrem Lebensstil passt. Es gibt auch eine Waschküche und einen Technikraum mit Wärmepumpe und Lagerraum, ordentlich und durchdacht angeordnet. Wir gehen hinauf ins Erdgeschoss, das wahre Herzstück dieses Hauses. Der Eingangsbereich öffnet sich zum geräumigen Wohnbereich. Die Küche und das Esszimmer laden zum geselligen Beisammensein ein, vom ruhigen Morgenkaffee bis zum Abendessen mit Freunden. Im Erdgeschoss befindet sich ein Gästezimmer mit eigenem Bad, sodass Ihre Gäste immer ihre eigene Ecke haben. Und für eine perfekte Atmosphäre gibt es eine Sauna und ein zusätzliches Badezimmer. Vom Wohnzimmer und der Küche aus gelangen wir auf die große Terrasse und zum Juwel dieser Villa – einem Swimmingpool, und zwar nicht irgendeinem. Der Pool ist beheizt und verfügt über Salzwasser, ein Massagesystem und eine Gegenstromanlage. Ein unterirdischer Maschinenraum mit Technik und Wärmepumpe sorgt dafür, dass alles reibungslos funktioniert. Erwähnenswert ist sicherlich die Poolauskleidung. Sie besteht nicht aus Keramik oder Folie, sondern aus einem wasserdichten, hellen Kühler, der extrem langlebig ist und dem Pool eine besondere Farbe verleiht. Der Garten ist mit mediterranen Pflanzen, einer Liegewiese, einer Außendusche und einem Grillplatz geschmückt. Kehren wir zurück in die 280 m2 große Wohnfläche. Eine Innentreppe führt Sie in den ersten Stock, wo Sie Luxus in all seiner Pracht erwartet. Drei Schlafzimmer, jedes mit eigenem Bad und Zugang zu einer Terrasse. Von den Terrassen aus bietet sich ein bezaubernder Blick auf das Meer. Zwei haben Einbauschränke, während das Hauptschlafzimmer über ein eigenes Ankleidezimmer verfügt. Wenn Sie morgens die Tür zum Zimmer öffnen, werden Sie spüren, dass die gesamte Kvarner-Bucht nur Ihnen gehört. Details, die diese Villa auf das nächste Level heben: - Fußbodenheizung im gesamten Haus über eine Wärmepumpe und Klimaanlage in jedem Zimmer - Eine Kombination aus ALU- und PVC-Tischlerei in Holzimitation – hochwertig, langlebig und ästhetisch perfekt - Keramik und Sanitärkeramik von renommierten Herstellern, mit höchster Präzision installiert - Vorbereitung für ein Alarmsystem, intelligente Steuerung und eine Gegensprechanlage mit großem Bildschirm am Eingang Und am wichtigsten – sie wird komplett möbliert und ausgestattet verkauft. Sie ist sofort für Sie bereit, ohne Wartezeit. Dies ist ein Ort, den man stolz sein Zuhause nennen kann.
Bei allen unseren Angeboten sind die Preise identisch mit dem Direktkauf bei der Agentur/dem Entwickler in Kroatien, da wir der offizielle Vertreter dieser Agenturen auf dem tschechischen, slowakischen, deutschen und österreichischen Markt sind. Dies gilt ohne zusätzliche Zuschläge für deutschsprachige Dienstleistungen.
Sehr geehrte Kunden, die Besichtigung von Immobilien, die Mitteilung der Lage und andere detaillierte Informationen sind nur mit einem unterzeichneten Vermittlungsvertrag möglich, der die Grundlage für weitere Aktionen wie den Kauf einer Immobilie bildet. Alles steht im Einklang mit dem Gesetz über die Vermittlung beim Kauf von Immobilien. Der Käufer zahlt eine gesetzliche Vermittlungsprovision in Höhe von 3% (+ MwSt.) des vereinbarten Preises, und zwar nur im Falle des Kaufs der Immobilie. Sollte der Kauf nicht zustande kommen, ist der Vertrag für Sie nicht bindend und wird annulliert. Wenn Sie ernsthaft an der Immobilie interessiert sind, senden wir Ihnen den Vertrag auf Anfrage zu.
Wir werden Ihnen innerhalb von 24 Stunden antworten.
Wir bieten nur geprüfte Immobilien an.
Wir garantieren eine hohe Servicequalität.
Wir können Ihnen bei der Vermittlung von Unterkünften während der Besichtigungen helfen.
- Ich habe eine Immobilie aus dem Angebot ausgewählt
- Ich kontaktiere den Makler
- Ich unterschreibe einen Vertretungsvertrag - Details hier! (die Unterzeichnung des Vertrags ist gesetzlich vorgeschrieben)
- Ich richte eine OIB ein - Details hier (die Einrichtung ist gesetzlich vorgeschrieben)
- Besichtigungen vor Ort
- Unterzeichnung der Reservierung, des Kaufvertrags