Insel KRK, Malinska (Umgebung) - Baugrundstück 540 m2, mit Projekt und geleisteten Beiträgen
| Registrationsnummer | DN-45831 |
| Art des Angebots | Verkauf |
| Kategorie | Bauland |
| Bezirk | Primorsko-goranska |
| Gemeindeteil | Malinska-Dubašnica |
| Preis | 192 000 € |
| Preis pro m2 | 355 €/m² |
| Gesamtfläche | 540 m² |
| Entfernung vom meer | 2 000 m |
| Strom | |
| Preis (original) | 220 000 € |
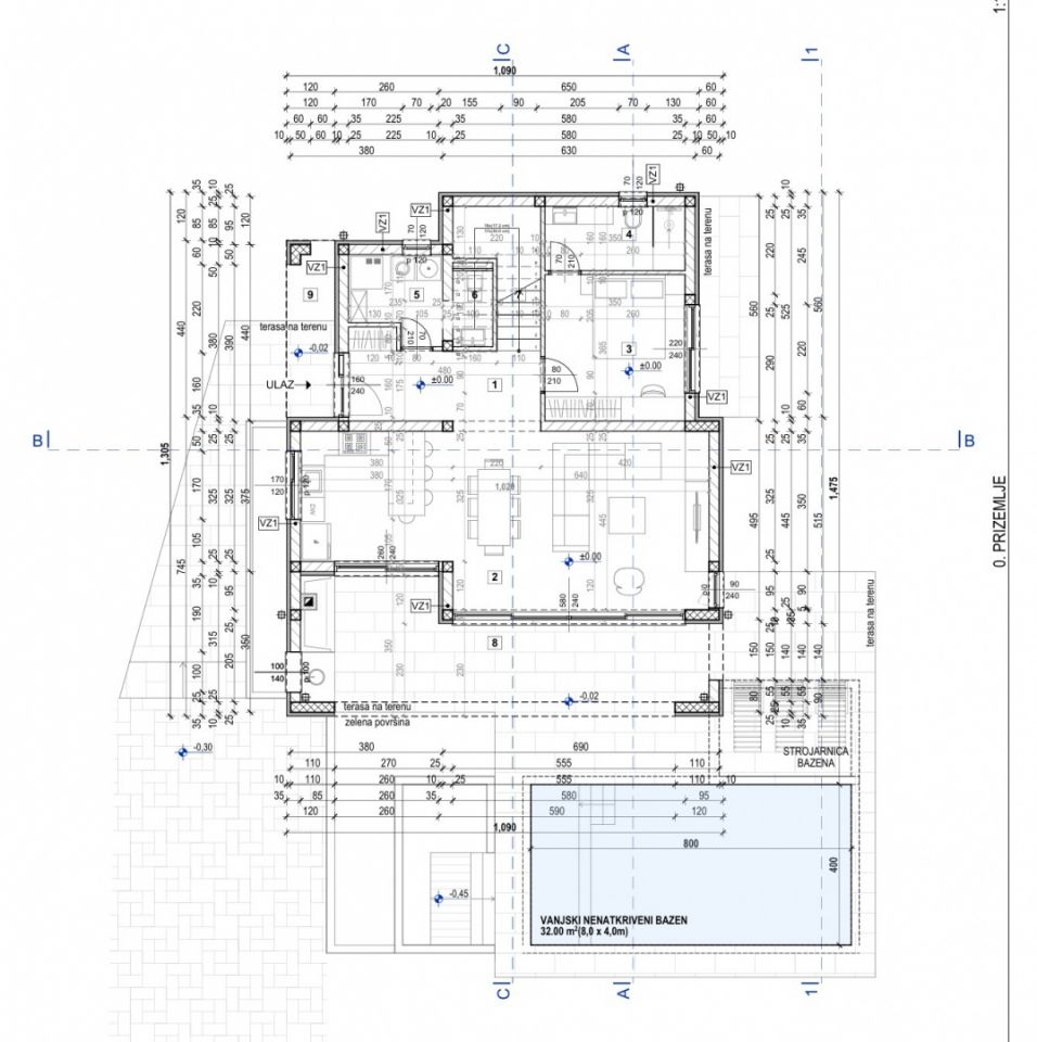
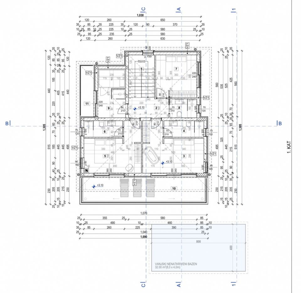
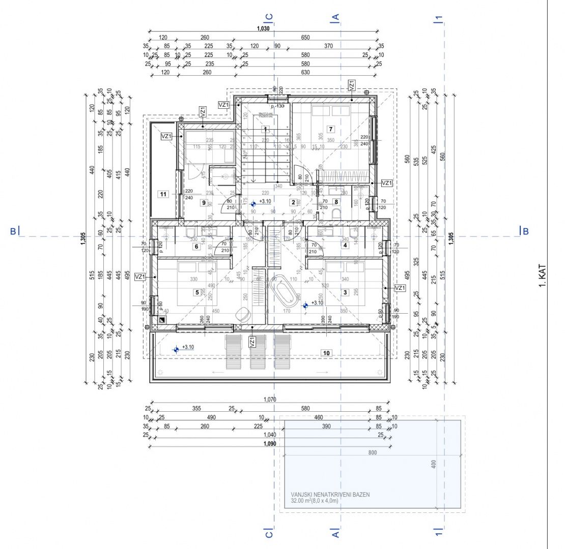
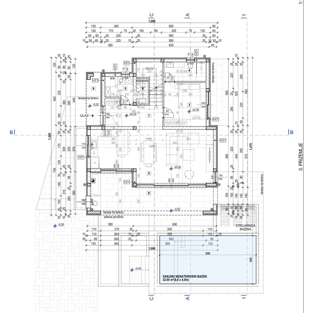
INSEL KRK, MALINSKA (Umgebung) – Baugrundstück 540 m², mit Projektplan und bezahlten Gebühren INVESTITIONSMÖGLICHKEIT – SOFORT BAUEN! Suchen Sie ein ideales Baugrundstück auf der Insel Krk? Dieses 540 m² große Grundstück befindet sich in einem idyllischen Dorf bei Malinska. Die Lage bietet beste Voraussetzungen für den Bau eines Einfamilienhauses oder eine rentable Investition im Tourismussektor. Projektplan und Baugenehmigung vorhanden! Der größte Vorteil dieser Immobilie ist die bereits erteilte Baugenehmigung, die Ihnen einen sofortigen Baubeginn ermöglicht. Geplant ist eine moderne, freistehende Villa mit Pool auf 203 m² Wohnfläche, aufgeteilt in Erdgeschoss und Obergeschoss. Das Grundstück liegt ruhig, aber dennoch in unmittelbarer Nähe zu allen wichtigen Einrichtungen von Malinska. Strom- und Wasseranschlüsse befinden sich in unmittelbarer Nähe. Alle Gebühren für Strom, Wasser und Abwasser sind bereits bezahlt. Ein weiterer Vorteil: Die Immobilie ist mehrwertsteuerpflichtig. Der angegebene Preis ist inklusive Steuern. Der Käufer zahlt keine Grunderwerbsteuer (3 %). ***
Bei allen unseren Angeboten sind die Preise identisch mit dem Direktkauf bei der Agentur/dem Entwickler in Kroatien, da wir der offizielle Vertreter dieser Agenturen auf dem tschechischen, slowakischen, deutschen und österreichischen Markt sind. Dies gilt ohne zusätzliche Zuschläge für deutschsprachige Dienstleistungen.
Sehr geehrte Kunden, die Besichtigung von Immobilien, die Mitteilung der Lage und andere detaillierte Informationen sind nur mit einem unterzeichneten Vermittlungsvertrag möglich, der die Grundlage für weitere Aktionen wie den Kauf einer Immobilie bildet. Alles steht im Einklang mit dem Gesetz über die Vermittlung beim Kauf von Immobilien. Der Käufer zahlt eine gesetzliche Vermittlungsprovision in Höhe von 3% (+ MwSt.) des vereinbarten Preises, und zwar nur im Falle des Kaufs der Immobilie. Sollte der Kauf nicht zustande kommen, ist der Vertrag für Sie nicht bindend und wird annulliert. Wenn Sie ernsthaft an der Immobilie interessiert sind, senden wir Ihnen den Vertrag auf Anfrage zu.
Wir werden Ihnen innerhalb von 24 Stunden antworten.
Wir bieten nur geprüfte Immobilien an.
Wir garantieren eine hohe Servicequalität.
Wir können Ihnen bei der Vermittlung von Unterkünften während der Besichtigungen helfen.
- Ich habe eine Immobilie aus dem Angebot ausgewählt
- Ich kontaktiere den Makler
- Ich unterschreibe einen Vertretungsvertrag - Details hier! (die Unterzeichnung des Vertrags ist gesetzlich vorgeschrieben)
- Ich richte eine OIB ein - Details hier (die Einrichtung ist gesetzlich vorgeschrieben)
- Besichtigungen vor Ort
- Unterzeichnung der Reservierung, des Kaufvertrags