INSEL KRK, STADT KRK - Penthouse 3 Schlafzimmer + Badezimmer mit Dachterrasse
| Registrationsnummer | DN-35589 |
| Art des Angebots | Verkauf |
| Kategorie | Appartements |
| Bezirk | Primorsko-goranska |
| Gemeindeteil | Krk |
| Preis | 950 000 € |
| Gesamtfläche | 293 m² |
| Wohnfläche (Wohnung) | 293 m² |
| Bebaute Fläche und Hof | 25 m² |
| Gesamt bebaut fläche | 25 m² |
| Entfernung vom meer | 500 m |
| Strom | |
| Wasser | |
| Abfall | |
| Klimaanlage | |
| Heizung | ano |
| Energieintensität | X - Nicht ausgestellt |
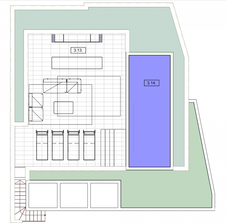
INSEL KRK, STADT KRK - Penthouse 3 Schlafzimmer + Badezimmer mit Dachterrasse Eine Luxuswohnung in einem Neubau mit einer Wohnfläche von 254,70 m2 befindet sich im zweiten Stock und besteht aus drei Schlafzimmern, davon zwei mit eigenem Bad und eines mit begehbarem Kleiderschrank, Technikräumen in Funktion ein Heizraum und ein Waschraum sowie zusätzliche Badezimmer. Auf derselben Etage befindet sich ein äußerst geräumiges, gut beleuchtetes und nach Süden ausgerichtetes offenes Wohnzimmer mit Küche, Esszimmer und Wohnzimmer, das sich auf eine Terrasse mit Aussicht öffnet des Meeres. Von der Terrasse führt eine Außentreppe auf die riesige Dachterrasse, die als Liegewiese genutzt wird, aber über Strom- und Wasseranschlüsse verfügt, sodass die Möglichkeit besteht, eine Sommerküche und/oder einen Whirlpool einzurichten. Im Keller befindet sich ein Abstellraum. Die Badezimmer sind mit modernen Sanitäranlagen ausgestattet. Diese Luxusimmobilie ist mit einbruchsicheren Türen, hochwertiger Aluminiumschreinerei mit elektrischen Rollläden, einer Wärmepumpe der Marke Vaillant und doppelschichtigen Glaszäunen ausgestattet. Bei der Dekoration dieser Immobilie wurde jedes Detail sorgfältig durchdacht, geprüft und mit solcher Sorgfalt und Präzision arrangiert, dass nichts dem Zufall überlassen wurde. Beste Wanddämmung, hochwertige und hochwertige Keramik, Zimmerei und Sanitärartikel machen diese Immobilie noch luxuriöser. Das Innere der Wohnung ist sehr sorgfältig gestaltet und das Äußere ist mit einem Garten mit viel Grün geschmückt, in dem es 2 Parkplätze gibt. Die Qualität der Bauweise und der romantische Ausblick auf das einzigartig blaue Meer und die Natur machen das Anwesen zu etwas ganz Besonderem. Eine ideale Gelegenheit, eine Luxusimmobilie zu kaufen, die nur 600 m vom Meer entfernt liegt und sich in einer begehrten Lage in der Nähe aller notwendigen Annehmlichkeiten befindet.
Bei allen unseren Angeboten sind die Preise identisch mit dem Direktkauf bei der Agentur/dem Entwickler in Kroatien, da wir der offizielle Vertreter dieser Agenturen auf dem tschechischen, slowakischen, deutschen und österreichischen Markt sind. Dies gilt ohne zusätzliche Zuschläge für deutschsprachige Dienstleistungen.
Sehr geehrte Kunden, die Besichtigung von Immobilien, die Mitteilung der Lage und andere detaillierte Informationen sind nur mit einem unterzeichneten Vermittlungsvertrag möglich, der die Grundlage für weitere Aktionen wie den Kauf einer Immobilie bildet. Alles steht im Einklang mit dem Gesetz über die Vermittlung beim Kauf von Immobilien. Der Käufer zahlt eine gesetzliche Vermittlungsprovision in Höhe von 3% (+ MwSt.) des vereinbarten Preises, und zwar nur im Falle des Kaufs der Immobilie. Sollte der Kauf nicht zustande kommen, ist der Vertrag für Sie nicht bindend und wird annulliert. Wenn Sie ernsthaft an der Immobilie interessiert sind, senden wir Ihnen den Vertrag auf Anfrage zu.
Wir werden Ihnen innerhalb von 24 Stunden antworten.
Wir bieten nur geprüfte Immobilien an.
Wir garantieren eine hohe Servicequalität.
Wir können Ihnen bei der Vermittlung von Unterkünften während der Besichtigungen helfen.
- Ich habe eine Immobilie aus dem Angebot ausgewählt
- Ich kontaktiere den Makler
- Ich unterschreibe einen Vertretungsvertrag - Details hier! (die Unterzeichnung des Vertrags ist gesetzlich vorgeschrieben)
- Ich richte eine OIB ein - Details hier (die Einrichtung ist gesetzlich vorgeschrieben)
- Besichtigungen vor Ort
- Unterzeichnung der Reservierung, des Kaufvertrags