INSEL PAG, JAKIŠNICA -Moderne Villa mit Pool im Bau
| Registrationsnummer | DN-13495 |
| Art des Angebots | Verkauf |
| Kategorie | Häuser |
| Bezirk | Ličko-senjska |
| Gemeindeteil | Novalja |
| Preis | 900 000 € |
| Gesamtfläche | 312 m² |
| Bebaute Fläche und Hof | 290 m² |
| Gesamt bebaut fläche | 290 m² |
| Entfernung vom meer | 200 m |
| Strom | |
| Wasser | |
| Abfall | |
| Klimaanlage | |
| Heizung | ano |
| Energieintensität | X - Nicht ausgestellt |
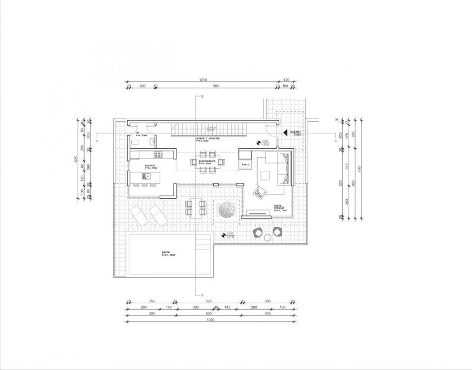
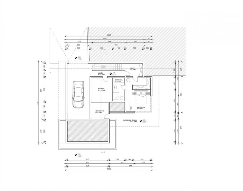
INSEL PAG-JAKIŠNICA Villa mit Pool, S + P + 1 Wir verkaufen eine im Bau befindliche Villa mit Pool. Die Villa ist in drei Etagen aufgeteilt, wo sich im Untergeschoss eine Garage, eine Waschküche, ein Maschinenraum, ein Abstellraum und ein Schlafzimmer mit Garderobe und Badezimmer befinden. Im Erdgeschoss haben wir Gästetoiletten, Küche mit Esszimmer und Wohnzimmer mit direktem Zugang zur überdachten Terrasse, Garten und Pool. Im Obergeschoss finden wir zwei Schlafzimmer mit Bädern und Balkonen mit einer Gesamtwohnfläche von 312m2. Die Villa wird schlüsselfertig von einem ausgewiesenen Investor mit langjähriger Bauerfahrung verkauft. Es werden nur die besten Materialien und Ausstattungen verwendet, erstklassige Keramik, Aluminium-Dreischicht-Tischlerei, einbruchhemmende Türen namhafter Hersteller etc. Die geplante Fertigstellungs- und Einzugsphase beträgt ein Jahr.
Bei allen unseren Angeboten sind die Preise identisch mit dem Direktkauf bei der Agentur/dem Entwickler in Kroatien, da wir der offizielle Vertreter dieser Agenturen auf dem tschechischen, slowakischen, deutschen und österreichischen Markt sind. Dies gilt ohne zusätzliche Zuschläge für deutschsprachige Dienstleistungen.
Sehr geehrte Kunden, die Besichtigung von Immobilien, die Mitteilung der Lage und andere detaillierte Informationen sind nur mit einem unterzeichneten Vermittlungsvertrag möglich, der die Grundlage für weitere Aktionen wie den Kauf einer Immobilie bildet. Alles steht im Einklang mit dem Gesetz über die Vermittlung beim Kauf von Immobilien. Der Käufer zahlt eine gesetzliche Vermittlungsprovision in Höhe von 3% (+ MwSt.) des vereinbarten Preises, und zwar nur im Falle des Kaufs der Immobilie. Sollte der Kauf nicht zustande kommen, ist der Vertrag für Sie nicht bindend und wird annulliert. Wenn Sie ernsthaft an der Immobilie interessiert sind, senden wir Ihnen den Vertrag auf Anfrage zu.
Wir werden Ihnen innerhalb von 24 Stunden antworten.
Wir bieten nur geprüfte Immobilien an.
Wir garantieren eine hohe Servicequalität.
Wir können Ihnen bei der Vermittlung von Unterkünften während der Besichtigungen helfen.
- Ich habe eine Immobilie aus dem Angebot ausgewählt
- Ich kontaktiere den Makler
- Ich unterschreibe einen Vertretungsvertrag - Details hier! (die Unterzeichnung des Vertrags ist gesetzlich vorgeschrieben)
- Ich richte eine OIB ein - Details hier (die Einrichtung ist gesetzlich vorgeschrieben)
- Besichtigungen vor Ort
- Unterzeichnung der Reservierung, des Kaufvertrags