ISTRIA, BALE - Charmantes Haus in bester Lage, Neubau
| Registrationsnummer | DN-44340 |
| Art des Angebots | Verkauf |
| Kategorie | Häuser |
| Bezirk | Istarska |
| Gemeindeteil | Bale |
| Preis | 498 000 € |
| Gesamtfläche | 60 m² |
| Bebaute Fläche und Hof | 130 m² |
| Gesamt bebaut fläche | 130 m² |
| Entfernung vom meer | 6 000 m |
| Strom | |
| Wasser | |
| Klimaanlage | |
| Energieintensität | A - extrem wirtschaftlich |
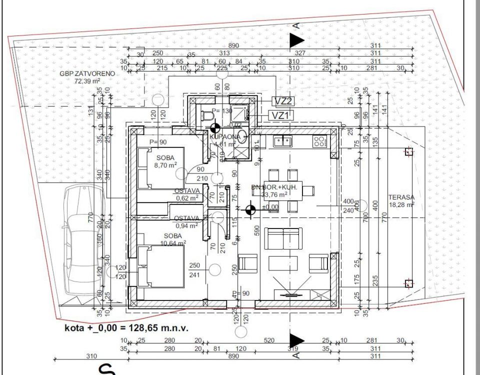
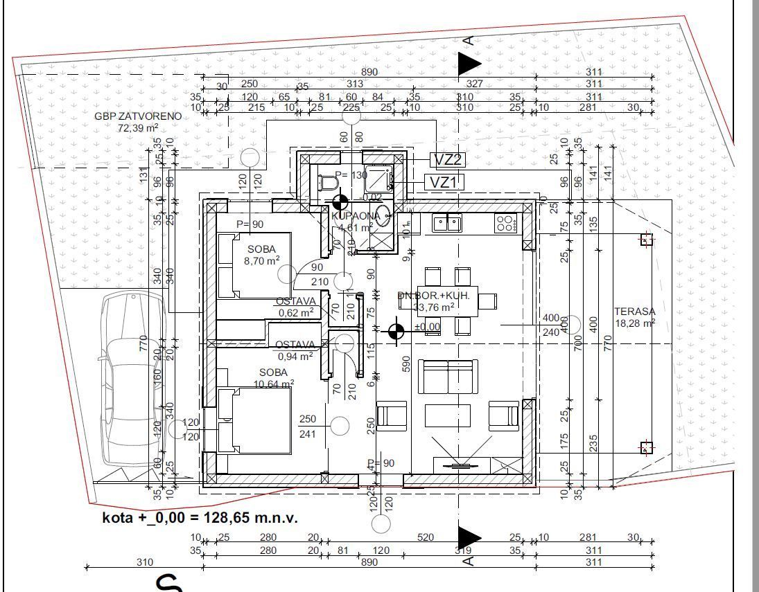
ISTRIEN, BALE – Charmantes Haus in Toplage, Neubau Eines der schönsten Juwelen Istriens ist die Stadt Bale an der Westküste. Das historische Steinstädtchen schmiegt sich an einen Hügel, umgeben von Olivenhainen und Weinbergen, und liegt nur 5 Kilometer vom Meer und der unberührten Küste entfernt. Der 45. Breitengrad verläuft durch die Gemeinde Bale, genauer gesagt durch ihren südlichsten Teil. Damit befindet sich die Stadt in einer idealen Lage – auf halbem Weg zwischen Äquator und Nordpol. Die durchschnittliche Jahrestemperatur in Bale beträgt 14 Grad Celsius, und die Sonne scheint durchschnittlich 2.400 Stunden im Jahr. Dieses moderne, ebenerdige Haus, Baujahr 2025, liegt im Herzen von Bale, in einer ruhigen Einbahnstraße ohne Verkehr. Hier genießen Sie absolute Ruhe und Privatsphäre. Ein Garten und viel Grün umgeben das Haus, und hohe Mauern auf dem Grundstück sorgen für ungestörte Privatsphäre. Innenbereich: Das Haus ist ideal für Familien und bietet einen klar definierten Wohnbereich. Es besteht aus einem hellen und luftigen offenen Wohnbereich mit angrenzendem Esszimmer und Küche, zwei Schlafzimmern, einem modern ausgestatteten Badezimmer sowie zwei separaten Abstellräumen. Die Küche ist maßgefertigt und verfügt über eine stimmungsvolle Beleuchtung. Sie ist ausgestattet mit: Heier Kühl-/Gefrierkombination (neu, mit Garantie) Bosch Geschirrspüler (Standardgröße, neu, mit Garantie) Heier Backofen mit Pyrolyse (neu, mit Garantie) Eingebaute Dunstabzugshaube (neu, mit Garantie) Die Küchenoberschränke erstrecken sich über zwei Ebenen und bieten so zusätzlichen Stauraum. Das helle und geräumige Wohnzimmer ist ausgestattet mit: Designer-Ledersofa mit verstellbaren Rückenlehnen Designer-Couchtisch aus Holz Neuer Samsung-Fernseher Die Schlafzimmer verfügen über: Queensize-Betten mit Stauraum und neuen Matratzen Maßgefertigte Einbauschränke Das Badezimmer ist modern gestaltet und ausgestattet mit: Hansgrohe-Armatur und -Dusche Designer-Badewanne mit rutschfester Oberfläche Technische Ausstattung in einem der Abstellräume: Bosch-Warmwasserbereiter Fußbodenheizung (angeschlossen an ein Thermostat der neuesten Generation, Steuerung per Mobilgerät möglich) Heier-Waschmaschine (neu, mit Garantie) Außenbereich: Der Innenbereich ist mit einer 22 m² großen, überdachten Terrasse verbunden, die mit Steinplatten belegt und überdacht ist und somit bei jedem Wetter genutzt werden kann. Die Terrasse ist mit einem Designertisch und sechs Gartenstühlen ausgestattet. Von der Terrasse aus hat man einen Blick auf das traditionelle istrische Steinhaus, die Natur und die Altstadt. Es ist mit der Sommerküche verbunden, die Folgendes umfasst: Eine 3 m lange Steinplatte Einen großen Klarstein-Elektrogrill Ein Außenwaschbecken Einen Abstellraum Eine Außendusche mit 30-Liter-Wassertank Zum Außenbereich des Hauses gehören: Ein Garten mit jungem Rasen und automatischer Bewässerungsanlage (Hebesprinkler) 30 junge Zypressen wurden entlang des Zauns gepflanzt und sorgen für natürliches Grün. Entlang des gesamten Zauns wurde eine stimmungsvolle Solarbeleuchtung installiert. Ein Bosch-Rasenmäher, eine Kercher Miniwash, ein Verlängerungskabel und ein Gartenschlauch gehören zur Ausstattung. Technische Merkmale des Hauses: Das Haus ist mit zwei Mitsubishi A++ Klimaanlagen zum Heizen und Kühlen ausgestattet. Alle Fenster bestehen aus Deceuninck-PVC-Profilen mit integrierten Moskitonetzen und beweglichen Aluminium-Fensterläden. Massive Steineinfassungen um die Fenster und dreifarbige Fliesen im traditionellen istrischen Stil. Außenbeleuchtung mit Bewegungsmelder. Bio-Reiniger und Vorbereitung für den zukünftigen Anschluss an die Kanalisation. Das Obergeschoss des Hauses ist so konzipiert, dass der Boden angehoben werden kann. Flächen: Wohnfläche: 60 m² Terrasse: 22 m² Garten: 130 m² Weitere Informationen: Altstadtkern: 100 m Entfernung zum Meer: 6 km (kostenlose Bahn vom Zentrum von Bale zum ersten Strand) Kinderspielplatz: 50 m Restaurants, Cafés, Geschäfte, Metzgerei, Post, Bäckerei, Konditorei, Apotheke: in unmittelbarer Nähe Rovinj: 10 km, Vodnjan: 9 km Dieses Haus vereint hochwertige Bauweise mit modernem Design und Funktionalität und bietet ideale Voraussetzungen für Familienleben oder einen luxuriösen Urlaub.
Bei allen unseren Angeboten sind die Preise identisch mit dem Direktkauf bei der Agentur/dem Entwickler in Kroatien, da wir der offizielle Vertreter dieser Agenturen auf dem tschechischen, slowakischen, deutschen und österreichischen Markt sind. Dies gilt ohne zusätzliche Zuschläge für deutschsprachige Dienstleistungen.
Sehr geehrte Kunden, die Besichtigung von Immobilien, die Mitteilung der Lage und andere detaillierte Informationen sind nur mit einem unterzeichneten Vermittlungsvertrag möglich, der die Grundlage für weitere Aktionen wie den Kauf einer Immobilie bildet. Alles steht im Einklang mit dem Gesetz über die Vermittlung beim Kauf von Immobilien. Der Käufer zahlt eine gesetzliche Vermittlungsprovision in Höhe von 3% (+ MwSt.) des vereinbarten Preises, und zwar nur im Falle des Kaufs der Immobilie. Sollte der Kauf nicht zustande kommen, ist der Vertrag für Sie nicht bindend und wird annulliert. Wenn Sie ernsthaft an der Immobilie interessiert sind, senden wir Ihnen den Vertrag auf Anfrage zu.
Wir werden Ihnen innerhalb von 24 Stunden antworten.
Wir bieten nur geprüfte Immobilien an.
Wir garantieren eine hohe Servicequalität.
Wir können Ihnen bei der Vermittlung von Unterkünften während der Besichtigungen helfen.
- Ich habe eine Immobilie aus dem Angebot ausgewählt
- Ich kontaktiere den Makler
- Ich unterschreibe einen Vertretungsvertrag - Details hier! (die Unterzeichnung des Vertrags ist gesetzlich vorgeschrieben)
- Ich richte eine OIB ein - Details hier (die Einrichtung ist gesetzlich vorgeschrieben)
- Besichtigungen vor Ort
- Unterzeichnung der Reservierung, des Kaufvertrags