ISTRIA, LABIN – Neubau in Toplage
| Registrationsnummer | DN-46114 |
| Art des Angebots | Verkauf |
| Kategorie | Häuser |
| Bezirk | Istarska |
| Gemeindeteil | Labin |
| Preis | 350 000 € |
| Gesamtfläche | 186 m² |
| Bebaute Fläche und Hof | 550 m² |
| Gesamt bebaut fläche | 550 m² |
| Entfernung vom meer | 15 000 m |
| Strom | |
| Klimaanlage |
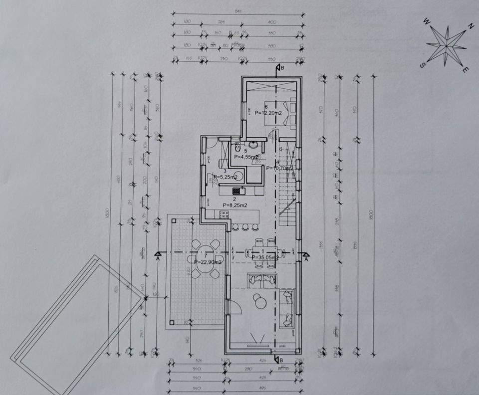
ISTRIEN, LABIN – Neubau in Toplage In einem schönen und ruhigen Teil von Labin, auf einem 550 m² großen Grundstück, entstand dieses äußerst attraktive Haus im istrischen Stil, das traditionelle Architektur und modernes Wohnen perfekt vereint. Umgeben von Natur und Ruhe bietet diese Immobilie nicht nur einen idealen Rückzugsort vom Alltagsstress, sondern auch eine hervorragende Investitionsmöglichkeit im Bereich der Ferienvermietung. Das Haus wird schlüsselfertig verkauft, die geplante Bauzeit beträgt 12 Monate. Besonderes Augenmerk wurde auf Funktionalität und Komfort gelegt, sodass das Haus sowohl den Bedürfnissen moderner Familien als auch den Anforderungen des Vermietungsmarktes gerecht wird. Die Wohnfläche beträgt insgesamt 186 m² und erstreckt sich über zwei Etagen. Das Erdgeschoss besticht durch sein großzügiges Raumgefühl dank des offenen Wohnkonzepts, das Küche, Esszimmer und Wohnzimmer miteinander verbindet. Große Glaswände lassen viel Tageslicht herein und schaffen eine harmonische Verbindung zwischen Innen- und Außenbereich mit direktem Zugang zur überdachten Terrasse. Neben dem Hauptwohnbereich befinden sich im Erdgeschoss ein Schlafzimmer, ein Badezimmer und ein praktischer Abstellraum. Der Außenbereich des Anwesens ist als kleine Oase der Ruhe und Entspannung gestaltet. Die überdachte Terrasse lädt zum Verweilen und Entspannen ein, während die Sonnenterrasse und der 4,5 x 8,5 m große Infinity-Pool ein luxuriöses und privates Resort-Ambiente vermitteln. Dieser Bereich ist ideal, um warme Sommertage zu genießen – ob privat oder als zusätzlicher Mehrwert für die Ferienvermietung. Über eine Innentreppe gelangt man in den ersten Stock mit zwei geräumigen Schlafzimmern, einem eleganten Badezimmer und einer Terrasse, die mit Blick in die Natur zusätzlichen Raum zum Entspannen bietet. Die Raumaufteilung gewährleistet Privatsphäre und Komfort für alle Bewohner und Gäste. Das Haus ist mit einer Inverter-Klimaanlage ausgestattet, die ganzjährig effizientes Heizen und Kühlen ermöglicht und so die Energieeffizienz und den Wohnkomfort weiter erhöht. Das gesamte Konzept des Anwesens wurde mit Blick auf einfache Pflege entworfen, was insbesondere für Eigentümer, die eine Ferienvermietung planen, von Bedeutung ist. Die Lage dieser Immobilie bietet die perfekte Balance zwischen Ruhe und der Nähe zu allen Annehmlichkeiten des täglichen Lebens. Geschäfte, Restaurants und alle Einrichtungen des täglichen Bedarfs befinden sich in unmittelbarer Nähe, während das Meer und die wunderschönen Strände Istriens nur wenige Autominuten entfernt sind. Dieses Haus stellt eine seltene Gelegenheit auf dem Immobilienmarkt dar – egal ob Sie ein neues Zuhause in Istrien suchen oder eine sichere Kapitalanlage mit hohem Renditepotenzial.
Bei allen unseren Angeboten sind die Preise identisch mit dem Direktkauf bei der Agentur/dem Entwickler in Kroatien, da wir der offizielle Vertreter dieser Agenturen auf dem tschechischen, slowakischen, deutschen und österreichischen Markt sind. Dies gilt ohne zusätzliche Zuschläge für deutschsprachige Dienstleistungen.
Sehr geehrte Kunden, die Besichtigung von Immobilien, die Mitteilung der Lage und andere detaillierte Informationen sind nur mit einem unterzeichneten Vermittlungsvertrag möglich, der die Grundlage für weitere Aktionen wie den Kauf einer Immobilie bildet. Alles steht im Einklang mit dem Gesetz über die Vermittlung beim Kauf von Immobilien. Der Käufer zahlt eine gesetzliche Vermittlungsprovision in Höhe von 3% (+ MwSt.) des vereinbarten Preises, und zwar nur im Falle des Kaufs der Immobilie. Sollte der Kauf nicht zustande kommen, ist der Vertrag für Sie nicht bindend und wird annulliert. Wenn Sie ernsthaft an der Immobilie interessiert sind, senden wir Ihnen den Vertrag auf Anfrage zu.
Wir werden Ihnen innerhalb von 24 Stunden antworten.
Wir bieten nur geprüfte Immobilien an.
Wir garantieren eine hohe Servicequalität.
Wir können Ihnen bei der Vermittlung von Unterkünften während der Besichtigungen helfen.
- Ich habe eine Immobilie aus dem Angebot ausgewählt
- Ich kontaktiere den Makler
- Ich unterschreibe einen Vertretungsvertrag - Details hier! (die Unterzeichnung des Vertrags ist gesetzlich vorgeschrieben)
- Ich richte eine OIB ein - Details hier (die Einrichtung ist gesetzlich vorgeschrieben)
- Besichtigungen vor Ort
- Unterzeichnung der Reservierung, des Kaufvertrags