ISTRIEN, BARBAN – Baugrundstück mit Baugenehmigung für ein Doppelhaus mit Swimmingpool
| Registrationsnummer | DN-42864 |
| Art des Angebots | Verkauf |
| Kategorie | Bauland |
| Bezirk | Istarska |
| Gemeindeteil | Barban |
| Preis | 100 000 € |
| Preis pro m2 | 98 €/m² |
| Gesamtfläche | 1 013 m² |
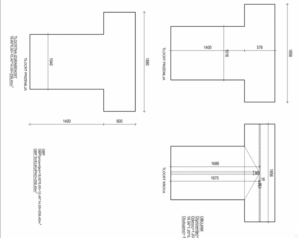
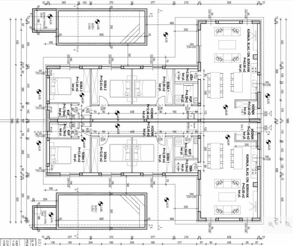
ISTRIEN, BARBAN – Baugrundstück mit Baugenehmigung für ein Doppelhaus mit Pool Zum Verkauf steht ein 1.013 m² großes Baugrundstück in ruhiger und schöner Lage am Ortsrand von Barban. Umgeben von viel Grün und Natur bietet es ein besonderes Gefühl von Privatsphäre und Ruhe. Das Grundstück ist regelmäßig geformt, größtenteils eben und gepflegt, was zukünftige Bauvorhaben erheblich erleichtert. Die Baugenehmigung für ein Doppelhaus mit einer Gesamtnettofläche von 216 m² liegt vor. Das Projekt sieht zwei separate Wohneinheiten mit jeweils 108 m² vor, wodurch sich das Grundstück ideal sowohl für Familien als auch für die Vermietung eignet. Jedes Haus verfügt laut Projekt über einen großzügigen offenen Wohnbereich mit Küche und Esszimmer, einen Hauswirtschaftsraum, drei Schlafzimmer und zwei moderne Badezimmer. Im Außenbereich ist ein 24 m² großer Pool geplant, der das Entspannungserlebnis im Freien abrundet. Alle Nebenkosten wurden bezahlt, Strom und Wasser sind in unmittelbarer Nähe. Das Grundstück verfügt über eine gepflegte und ungehinderte Zufahrt von der Asphaltstraße, was seinen Wert und seine Zweckmäßigkeit weiter steigert. Die Lage ist außergewöhnlich ruhig und eignet sich für alle, die Privatsphäre, Natur und Meeresnähe suchen. Die nächsten Strände sind etwa 15 Autominuten entfernt, während die Städte Pula und Labin nur 25 Minuten entfernt sind, sodass alle notwendigen Annehmlichkeiten bequem erreichbar sind. Dank der bereits vorliegenden Baugenehmigung und der bezahlten Nebenkosten kann sofort mit dem Bau begonnen werden. Diese Immobilie ist eine hervorragende Gelegenheit für Investoren, Familien oder alle, die ohne Wartezeit mit dem Bau beginnen möchten, an einem Standort, der Ruhe, Natur und Meeresnähe vereint.
Bei allen unseren Angeboten sind die Preise identisch mit dem Direktkauf bei der Agentur/dem Entwickler in Kroatien, da wir der offizielle Vertreter dieser Agenturen auf dem tschechischen, slowakischen, deutschen und österreichischen Markt sind. Dies gilt ohne zusätzliche Zuschläge für deutschsprachige Dienstleistungen.
Sehr geehrte Kunden, die Besichtigung von Immobilien, die Mitteilung der Lage und andere detaillierte Informationen sind nur mit einem unterzeichneten Vermittlungsvertrag möglich, der die Grundlage für weitere Aktionen wie den Kauf einer Immobilie bildet. Alles steht im Einklang mit dem Gesetz über die Vermittlung beim Kauf von Immobilien. Der Käufer zahlt eine gesetzliche Vermittlungsprovision in Höhe von 3% (+ MwSt.) des vereinbarten Preises, und zwar nur im Falle des Kaufs der Immobilie. Sollte der Kauf nicht zustande kommen, ist der Vertrag für Sie nicht bindend und wird annulliert. Wenn Sie ernsthaft an der Immobilie interessiert sind, senden wir Ihnen den Vertrag auf Anfrage zu.
Wir werden Ihnen innerhalb von 24 Stunden antworten.
Wir bieten nur geprüfte Immobilien an.
Wir garantieren eine hohe Servicequalität.
Wir können Ihnen bei der Vermittlung von Unterkünften während der Besichtigungen helfen.
- Ich habe eine Immobilie aus dem Angebot ausgewählt
- Ich kontaktiere den Makler
- Ich unterschreibe einen Vertretungsvertrag - Details hier! (die Unterzeichnung des Vertrags ist gesetzlich vorgeschrieben)
- Ich richte eine OIB ein - Details hier (die Einrichtung ist gesetzlich vorgeschrieben)
- Besichtigungen vor Ort
- Unterzeichnung der Reservierung, des Kaufvertrags