ISTRIEN, BARBAN - Wohnung mit Garten in einem Neubau
| Registrationsnummer | DN-29692 |
| Art des Angebots | Verkauf |
| Kategorie | Appartements |
| Bezirk | Istarska |
| Gemeindeteil | Barban |
| Preis | 188 000 € |
| Gesamtfläche | 72 m² |
| Wohnfläche (Wohnung) | 72 m² |
| Entfernung vom meer | 8 500 m |
| Strom | |
| Abfall | |
| Klimaanlage | |
| Energieintensität | X - Nicht ausgestellt |
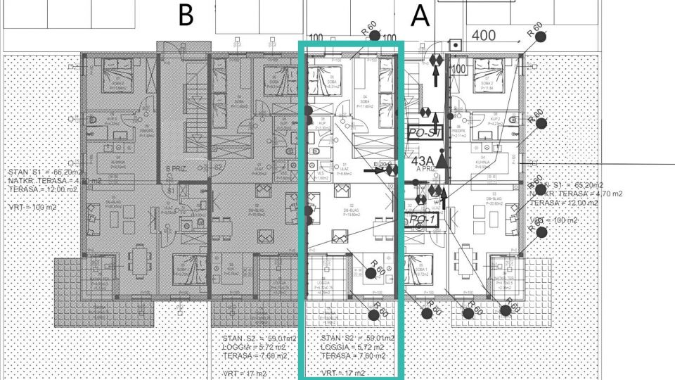
ISTRIEN, BARBAN - Wohnung mit Garten in einem neuen Gebäude Barban ist eine kleine malerische mittelalterliche Siedlung im Akropolis-Stil im südlichen Teil Ostistriens, oberhalb des Raša-Flusstals gelegen. Gut erhaltene Architekturbauten aus der Zeit des Barock und der Gotik, Fresken und glagolitische Inschriften, Kirchen, Paläste und Stadtmauern, das Ritterspiel Ring Race, das traditionelle Weinfest und das Feigenfest machen Barban äußerst attraktiv. Die Gemeinde Barban, die in der Raško-Bucht Zugang zum Meer hat, erstreckt sich über eine Fläche von 100 km². Außer Barban gibt es noch 31 weitere Siedlungen im wunderschönen Grün von Barbanština. In unmittelbarer Nähe des Zentrums dieser charmanten Stadt entsteht ein Gebäude, das sich über das Erdgeschoss und eine Etage erstreckt. Bei der Konstruktion werden langlebige und zuverlässige Materialien verwendet, die langfristige Zufriedenheit und Sicherheit des Wohnens garantieren, während die Raumplanung jeder Etage detailliert durchgeführt wurde, was zu einer hochwertigen Raumaufteilung führte. Beim Verkaufsgegenstand handelt es sich um eine Wohnung im Erdgeschoss des Gebäudes; Wohnfläche von 59,01 m² mit einer Loggia von 5,72 m², einer nicht überdachten Terrasse von 7,60 m² und einem Garten von 17 m². Es besteht aus zwei Schlafzimmern, einem Badezimmer, einer Waschküche und einem offenen Raumkonzept, das Wohnzimmer, Esszimmer und Küche mit Zugang zur Loggia und dem erweiterten Garten vereint. Parkplätze werden nach dem entsprechenden Berechnungskoeffizienten separat erworben. Diese Wohnung in einem Neubau in fußläufiger Entfernung zum Stadtzentrum ist eine ideale Gelegenheit für ein angenehmes Familienleben sowie für eine Investition zur touristischen Vermietung. Das Projekt befindet sich derzeit im Bau und steht schlüsselfertig zum Verkauf. Der Verkäufer der betreffenden Immobilie ist eine juristische Person.
Bei allen unseren Angeboten sind die Preise identisch mit dem Direktkauf bei der Agentur/dem Entwickler in Kroatien, da wir der offizielle Vertreter dieser Agenturen auf dem tschechischen, slowakischen, deutschen und österreichischen Markt sind. Dies gilt ohne zusätzliche Zuschläge für deutschsprachige Dienstleistungen.
Sehr geehrte Kunden, die Besichtigung von Immobilien, die Mitteilung der Lage und andere detaillierte Informationen sind nur mit einem unterzeichneten Vermittlungsvertrag möglich, der die Grundlage für weitere Aktionen wie den Kauf einer Immobilie bildet. Alles steht im Einklang mit dem Gesetz über die Vermittlung beim Kauf von Immobilien. Der Käufer zahlt eine gesetzliche Vermittlungsprovision in Höhe von 3% (+ MwSt.) des vereinbarten Preises, und zwar nur im Falle des Kaufs der Immobilie. Sollte der Kauf nicht zustande kommen, ist der Vertrag für Sie nicht bindend und wird annulliert. Wenn Sie ernsthaft an der Immobilie interessiert sind, senden wir Ihnen den Vertrag auf Anfrage zu.
Wir werden Ihnen innerhalb von 24 Stunden antworten.
Wir bieten nur geprüfte Immobilien an.
Wir garantieren eine hohe Servicequalität.
Wir können Ihnen bei der Vermittlung von Unterkünften während der Besichtigungen helfen.
- Ich habe eine Immobilie aus dem Angebot ausgewählt
- Ich kontaktiere den Makler
- Ich unterschreibe einen Vertretungsvertrag - Details hier! (die Unterzeichnung des Vertrags ist gesetzlich vorgeschrieben)
- Ich richte eine OIB ein - Details hier (die Einrichtung ist gesetzlich vorgeschrieben)
- Besichtigungen vor Ort
- Unterzeichnung der Reservierung, des Kaufvertrags