ISTRIEN, BARBAN - Zwei Baugrundstücke mit eingereichten Anfragen für den Bau freistehender moderner Villen
| Registrationsnummer | DN-32184 |
| Art des Angebots | Verkauf |
| Kategorie | Bauland |
| Bezirk | Istarska |
| Gemeindeteil | Barban |
| Preis | 207 500 € |
| Preis pro m2 | 137 €/m² |
| Gesamtfläche | 1 510 m² |
| Strom | |
| Wasser | |
| Heizung | ano |
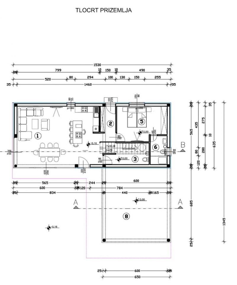
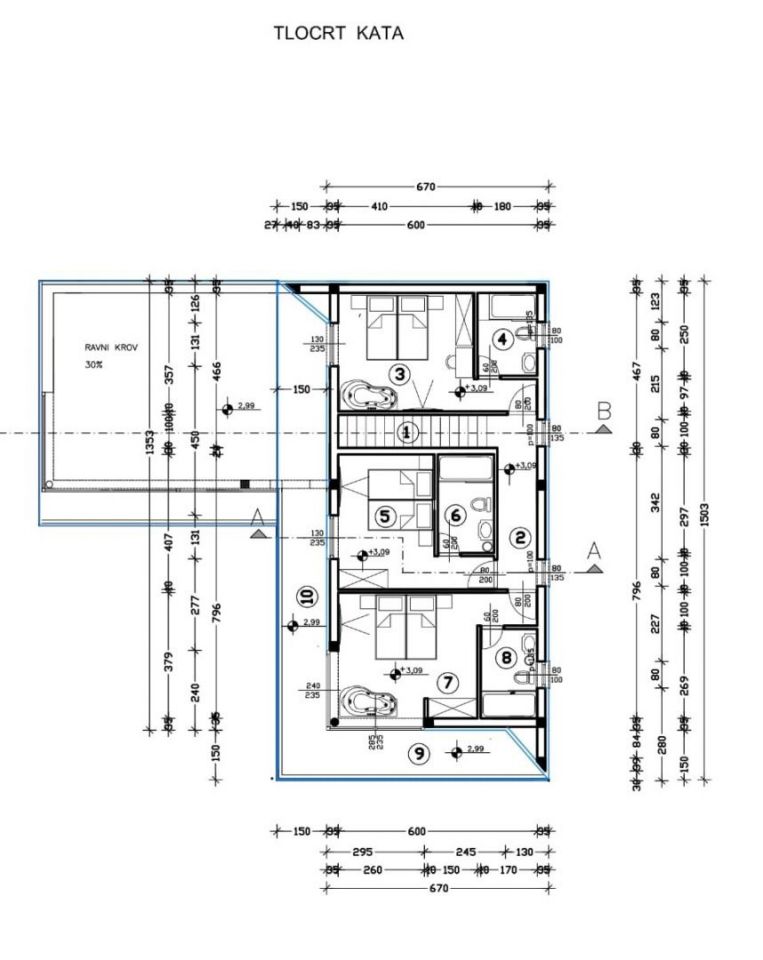
ISTRIEN, BARBAN - Zwei Baugrundstücke in ruhiger Lage nebeneinander, für die ein Antrag auf Baugenehmigung für den Bau von zwei freistehenden modernen und luxuriösen Villen eingereicht wurde. Wir sind stolz darauf, diese hervorragende Gelegenheit für alle zu präsentieren, die auf der Suche nach Grundstücken für den Bau eines Einfamilienhauses oder einer Immobilie sind, mit denen sie sich eine Rendite ihrer Investition in Form von Tourismus oder späterem Weiterverkauf sichern möchten. Dabei handelt es sich um zwei hochwertige Baugrundstücke, die insgesamt eine Fläche von 1510m2 umfassen, d.h. ein Grundstück umfasst 747m2, während das andere bis zu 763m2 groß ist. Beide Grundstücke haben eine rechteckige Form, was eine maximale Ausnutzung gewährleistet. Die Grundstückseigentümer beantragten den Bau freistehender, moderner und äußerst luxuriöser Villen mit einer Nettofläche von ca. 280 m², die in zwei Etagen, Erdgeschoss und erste Etage, unterteilt sind. Das Erdgeschoss der Villa soll aus einem Wohnzimmer mit „Open Space“-Konzept bestehen, das ein Wohnzimmer, eine Küche und ein Esszimmer umfasst. Dann würde sich im Erdgeschoss das erste Schlafzimmer mit eigenem Bad und Gäste-WC sowie ein Vorraum mit Garderobenbereich befinden. Eine Innentreppe führt in die erste Etage der Villa, wo sich drei weitere Schlafzimmer befinden, von denen eines das Hauptschlafzimmer ist. Jedes Schlafzimmer auf dieser Etage hätte ein eigenes Badezimmer sowie Zugang zu einer teilweise überdachten Terrasse mit herrlichem Blick auf die Hügellandschaft. Selbstverständlich verfügt jede der Villen über einen eigenen Swimmingpool im Garten, der 4,30 x 11,25 m groß ist, mit einer größeren überdachten Terrasse, auf der Sitz- und Unterhaltungsmöglichkeiten vorgesehen sind. Abmessungen des kleineren Grundstücks von 747 m2: * Breite: 26,80 m * Länge: 29,29 m Abmessungen des größeren Grundstücks von 763 m2: * Breite: 24,21 m * Länge: 37,61 m ZUSÄTZLICHE INFORMATIONEN: * Das Eigentum an beiden Grundstücken ist in Ordnung, 1/ 1 Eigentümer, keine Belastung. * Möglichkeit des Baus von Ferienvillen oder Familienhäusern. * Der vorgeschriebene Abstand zwischen Gebäuden und der Grundstücksgrenze beträgt 4 m. * Bebaubarkeit 30 % auf jedem Grundstück. *Pflicht eines Schrägdaches. * Es besteht die Möglichkeit, weitere 3 Grundstücke zu kaufen. Für weitere Fragen, notwendige Informationen oder den Wunsch, einen Termin zur Grundstücksbesichtigung, Einsichtnahme in die Dokumentation und Besichtigung des Standortes zu vereinbaren, können Sie sich gerne an uns wenden!
Bei allen unseren Angeboten sind die Preise identisch mit dem Direktkauf bei der Agentur/dem Entwickler in Kroatien, da wir der offizielle Vertreter dieser Agenturen auf dem tschechischen, slowakischen, deutschen und österreichischen Markt sind. Dies gilt ohne zusätzliche Zuschläge für deutschsprachige Dienstleistungen.
Sehr geehrte Kunden, die Besichtigung von Immobilien, die Mitteilung der Lage und andere detaillierte Informationen sind nur mit einem unterzeichneten Vermittlungsvertrag möglich, der die Grundlage für weitere Aktionen wie den Kauf einer Immobilie bildet. Alles steht im Einklang mit dem Gesetz über die Vermittlung beim Kauf von Immobilien. Der Käufer zahlt eine gesetzliche Vermittlungsprovision in Höhe von 3% (+ MwSt.) des vereinbarten Preises, und zwar nur im Falle des Kaufs der Immobilie. Sollte der Kauf nicht zustande kommen, ist der Vertrag für Sie nicht bindend und wird annulliert. Wenn Sie ernsthaft an der Immobilie interessiert sind, senden wir Ihnen den Vertrag auf Anfrage zu.
Wir werden Ihnen innerhalb von 24 Stunden antworten.
Wir bieten nur geprüfte Immobilien an.
Wir garantieren eine hohe Servicequalität.
Wir können Ihnen bei der Vermittlung von Unterkünften während der Besichtigungen helfen.
- Ich habe eine Immobilie aus dem Angebot ausgewählt
- Ich kontaktiere den Makler
- Ich unterschreibe einen Vertretungsvertrag - Details hier! (die Unterzeichnung des Vertrags ist gesetzlich vorgeschrieben)
- Ich richte eine OIB ein - Details hier (die Einrichtung ist gesetzlich vorgeschrieben)
- Besichtigungen vor Ort
- Unterzeichnung der Reservierung, des Kaufvertrags