ISTRIEN, BUJE - Grundstück mit begonnener Bebauung und Meerblick
| Registrationsnummer | DN-47251 |
| Art des Angebots | Verkauf |
| Kategorie | Bauland |
| Bezirk | Istarska |
| Gemeindeteil | Buje |
| Preis | 400 000 € |
| Preis pro m2 | 259 €/m² |
| Gesamtfläche | 1 543 m² |
| Entfernung vom meer | 17 000 m |
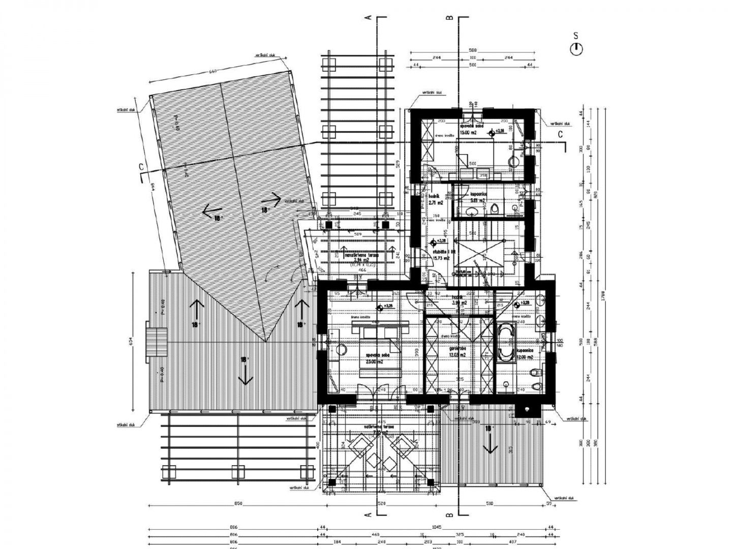
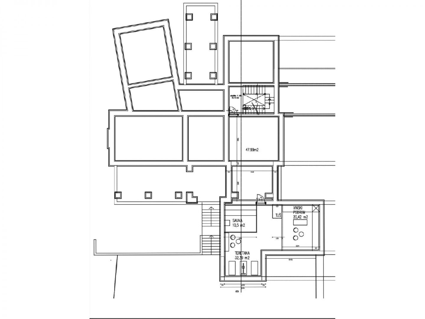
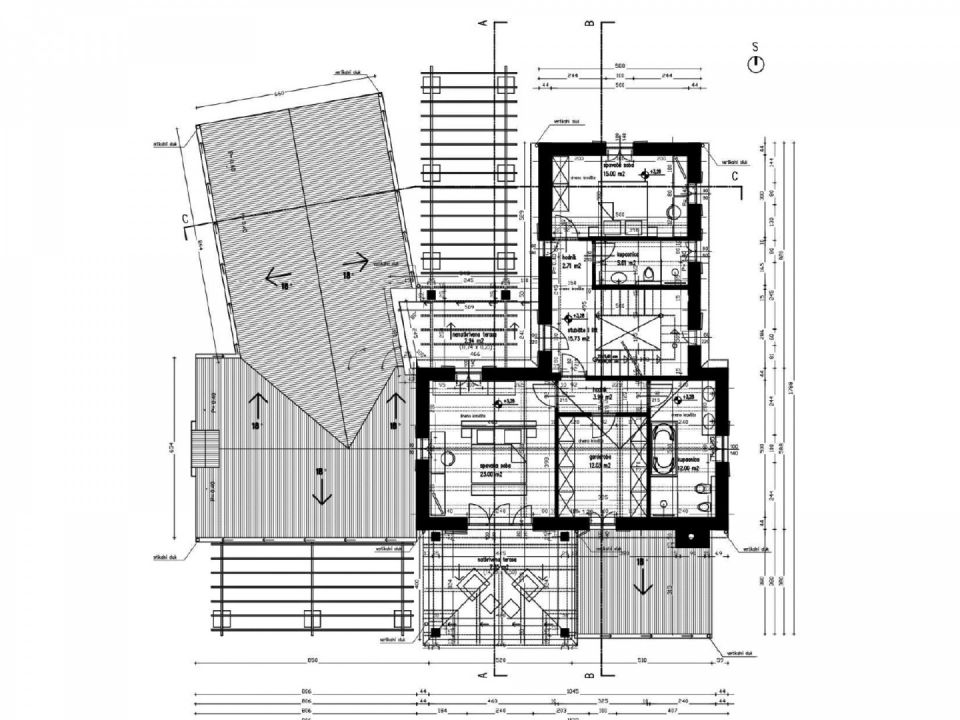
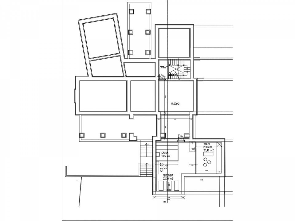
ISTRIEN, BUJE – Baugrundstück mit Meerblick Die mittelalterliche Stadt Buje liegt im Nordwesten der istrischen Halbinsel auf einem Hügel mit herrlichem Blick auf das Meer, die umliegenden Hügel, Weinberge und Olivenhaine, für die die Region bekannt ist. Die Nähe zum Meer, das mediterrane und milde Kontinentalklima, die lange Tradition in Landwirtschaft, Jagd und Tourismus, die hügelige Landschaft und die unberührte Natur machen die Gegend um Buje zu einer der attraktivsten Regionen Istriens. Nahe Buje, in einem kleinen Ort, der als wahres Paradies für Feinschmecker und Genießer gilt, steht ein Baugrundstück mit Baugenehmigung und Meerblick zum Verkauf. Das Grundstück liegt am Rande eines beschaulichen Weilers auf einem Hügel und bietet ein authentisches Erlebnis einer kleinen istrischen Stadt – Ruhe und Erholung vom Alltagstrubel, gleichzeitig aber auch die Nähe zu den dynamischen Städten Istriens mit ihren vielfältigen Annehmlichkeiten. Das Katastergrundstück ist relativ regelmäßig rechteckig, das Gelände sanft abfallend und sauber. Strom-, Wasser- und Telekommunikationsanschlüsse befinden sich in unmittelbarer Nähe. Für das Grundstück liegt eine gültige Baugenehmigung für ein Wohnhaus vor, das sich mit seinem Erscheinungsbild und Stil harmonisch in die bestehende Umgebung, die Landschaft und den Swimmingpool einfügt. Es ist als komfortables Einfamilienhaus mit einer Wohneinheit auf drei Etagen geplant: Keller, Erdgeschoss und Obergeschoss. Der Bau wurde bereits angemeldet und begonnen; der Poolrohbau ist fertiggestellt und die Vorbereitungen für die Betonierung des Fundaments sind abgeschlossen. Aufgrund seiner Mikrolage am Ortsrand und am Rande der Bauzone mit Panoramablick auf die sanften Hügel, das Mirna-Tal und das Meer, seiner Beschaffenheit, der klaren Eigentumsverhältnisse und der vollständigen Dokumentation bietet dieses Grundstück eine außergewöhnliche Gelegenheit für den Bau eines Einfamilienhauses oder Ferienhauses.
Bei allen unseren Angeboten sind die Preise identisch mit dem Direktkauf bei der Agentur/dem Entwickler in Kroatien, da wir der offizielle Vertreter dieser Agenturen auf dem tschechischen, slowakischen, deutschen und österreichischen Markt sind. Dies gilt ohne zusätzliche Zuschläge für deutschsprachige Dienstleistungen.
Sehr geehrte Kunden, die Besichtigung von Immobilien, die Mitteilung der Lage und andere detaillierte Informationen sind nur mit einem unterzeichneten Vermittlungsvertrag möglich, der die Grundlage für weitere Aktionen wie den Kauf einer Immobilie bildet. Alles steht im Einklang mit dem Gesetz über die Vermittlung beim Kauf von Immobilien. Der Käufer zahlt eine gesetzliche Vermittlungsprovision in Höhe von 3% (+ MwSt.) des vereinbarten Preises, und zwar nur im Falle des Kaufs der Immobilie. Sollte der Kauf nicht zustande kommen, ist der Vertrag für Sie nicht bindend und wird annulliert. Wenn Sie ernsthaft an der Immobilie interessiert sind, senden wir Ihnen den Vertrag auf Anfrage zu.
Wir werden Ihnen innerhalb von 24 Stunden antworten.
Wir bieten nur geprüfte Immobilien an.
Wir garantieren eine hohe Servicequalität.
Wir können Ihnen bei der Vermittlung von Unterkünften während der Besichtigungen helfen.
- Ich habe eine Immobilie aus dem Angebot ausgewählt
- Ich kontaktiere den Makler
- Ich unterschreibe einen Vertretungsvertrag - Details hier! (die Unterzeichnung des Vertrags ist gesetzlich vorgeschrieben)
- Ich richte eine OIB ein - Details hier (die Einrichtung ist gesetzlich vorgeschrieben)
- Besichtigungen vor Ort
- Unterzeichnung der Reservierung, des Kaufvertrags