ISTRIEN, KRASICA – Einheimisches istrisches Haus zur Adaptierung
| Registrationsnummer | DN-42167 |
| Art des Angebots | Verkauf |
| Kategorie | Häuser |
| Bezirk | Istarska |
| Gemeindeteil | Buje |
| Preis | 153 000 € |
| Gesamtfläche | 75 m² |
| Entfernung vom meer | 15 000 m |
| Strom |
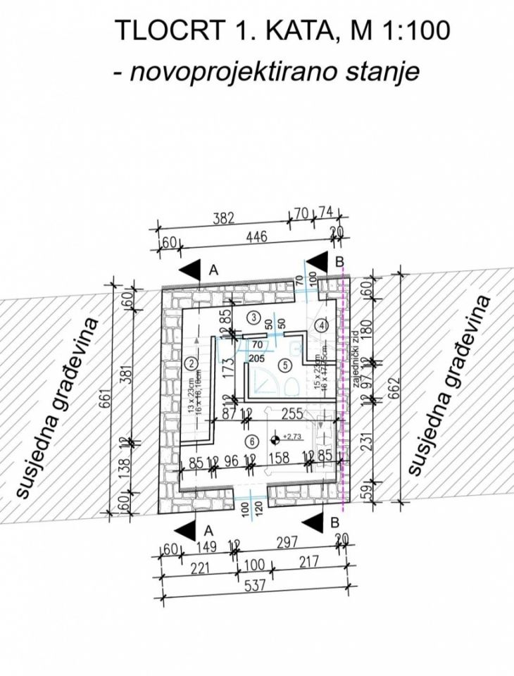
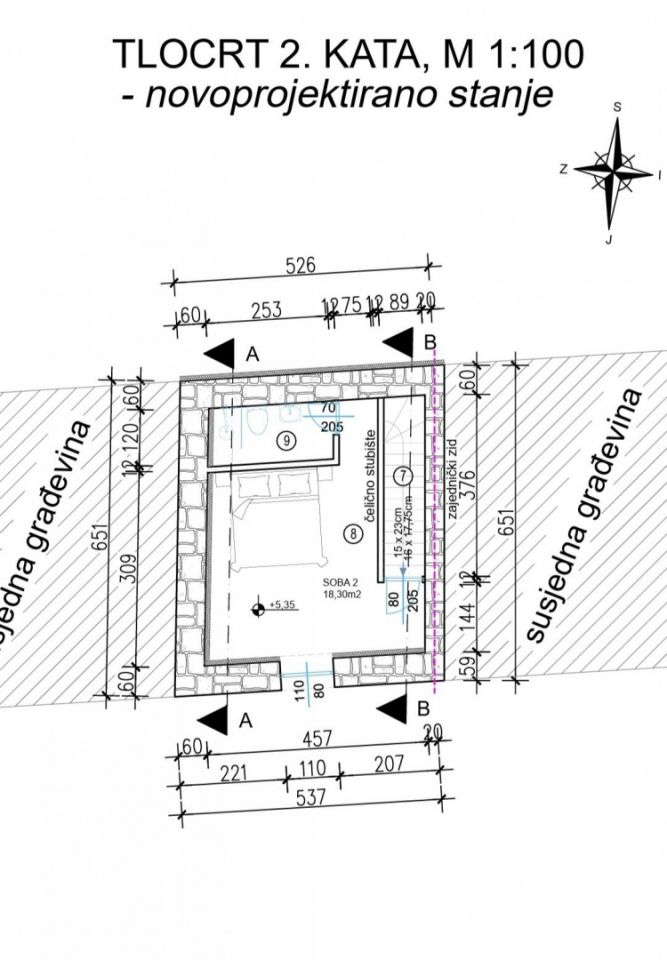
ISTRIEN, KRASICA – Ein authentisches istrisches Haus zur Renovierung Im Herzen der grünen Landschaft Nordwest-Istriens, im ruhigen Dorf Krasica unweit von Buje, befindet sich dieses charmante Steinhaus mit Panoramablick auf die Umgebung und das Mirna-Tal – eine perfekte Gelegenheit für alle, die eine Kombination aus Tradition, Natur und Ruhe suchen. Krasica ist bekannt für seine erstklassigen Weingüter, Olivenhaine und die istrische Gastronomie. Hier findet die prestigeträchtige Veranstaltung „Oleum Olivarum“ statt, eines der wichtigsten Olivenölfestivals der Region – ein zusätzliches Zeichen für Authentizität und lokale Kultur. Das Haus wurde teilweise renoviert, die wichtigsten Bauarbeiten sind bereits abgeschlossen: – Fundamente, zwei Zwischengeschossplatten, Dach und Blech – Wasser-, Strom- und Abwasserinstallationen – es liegen alle erforderlichen Unterlagen vor: geodätische Vermessungen, Baugenehmigung, Versorgungsbeiträge, Benachrichtigung über den Beginn der Arbeiten und Bauaufsicht – was bei ähnlichen Immobilienangeboten selten ist – Das Haus umfasst das Erdgeschoss, den ersten und zweiten Stock sowie den Vorder- und Hinterhof mit einer Gesamtfläche von: – Haus: 75 m² – Hof: 97 m² Die Raumaufteilung ist in den Projektzeichnungen verfügbar und die zusätzliche Ruine neben dem Haus befindet sich ebenfalls in der Renovierungsphase, was die Möglichkeit einer Erweiterung oder zusätzlicher Inhalte eröffnet. Die Lage bietet die perfekte Balance zwischen Ruhe und Erreichbarkeit – das Meer ist 15 km entfernt, während berühmte Ziele wie Grožnjan (6 km), das Weingut Clai (1,5 km) und Stara škola (2,8 km) leicht zu erreichen sind. Diese Immobilie bietet eine außergewöhnliche Gelegenheit, ein istrisches Traumhaus zu schaffen, entweder für den Eigenbedarf oder als authentisches Touristenprojekt in einer Region, die zunehmend Gäste anzieht, die sich nach Natur, Kultur und lokalen Erlebnissen sehnen.
Bei allen unseren Angeboten sind die Preise identisch mit dem Direktkauf bei der Agentur/dem Entwickler in Kroatien, da wir der offizielle Vertreter dieser Agenturen auf dem tschechischen, slowakischen, deutschen und österreichischen Markt sind. Dies gilt ohne zusätzliche Zuschläge für deutschsprachige Dienstleistungen.
Sehr geehrte Kunden, die Besichtigung von Immobilien, die Mitteilung der Lage und andere detaillierte Informationen sind nur mit einem unterzeichneten Vermittlungsvertrag möglich, der die Grundlage für weitere Aktionen wie den Kauf einer Immobilie bildet. Alles steht im Einklang mit dem Gesetz über die Vermittlung beim Kauf von Immobilien. Der Käufer zahlt eine gesetzliche Vermittlungsprovision in Höhe von 3% (+ MwSt.) des vereinbarten Preises, und zwar nur im Falle des Kaufs der Immobilie. Sollte der Kauf nicht zustande kommen, ist der Vertrag für Sie nicht bindend und wird annulliert. Wenn Sie ernsthaft an der Immobilie interessiert sind, senden wir Ihnen den Vertrag auf Anfrage zu.
Wir werden Ihnen innerhalb von 24 Stunden antworten.
Wir bieten nur geprüfte Immobilien an.
Wir garantieren eine hohe Servicequalität.
Wir können Ihnen bei der Vermittlung von Unterkünften während der Besichtigungen helfen.
- Ich habe eine Immobilie aus dem Angebot ausgewählt
- Ich kontaktiere den Makler
- Ich unterschreibe einen Vertretungsvertrag - Details hier! (die Unterzeichnung des Vertrags ist gesetzlich vorgeschrieben)
- Ich richte eine OIB ein - Details hier (die Einrichtung ist gesetzlich vorgeschrieben)
- Besichtigungen vor Ort
- Unterzeichnung der Reservierung, des Kaufvertrags