ISTRIEN, LABIN – Baugrundstück mit Genehmigung in bester Lage
| Registrationsnummer | DN-36853 |
| Art des Angebots | Verkauf |
| Kategorie | Bauland |
| Bezirk | Istarska |
| Gemeindeteil | Labin |
| Preis | 88 000 € |
| Preis pro m2 | 82 €/m² |
| Gesamtfläche | 1 068 m² |
| Bebaute Fläche und Hof | 1 070 m² |
| Gesamt bebaut fläche | 1 070 m² |
| Entfernung vom meer | 13 000 m |
| Strom |
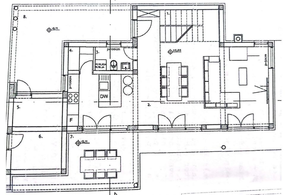
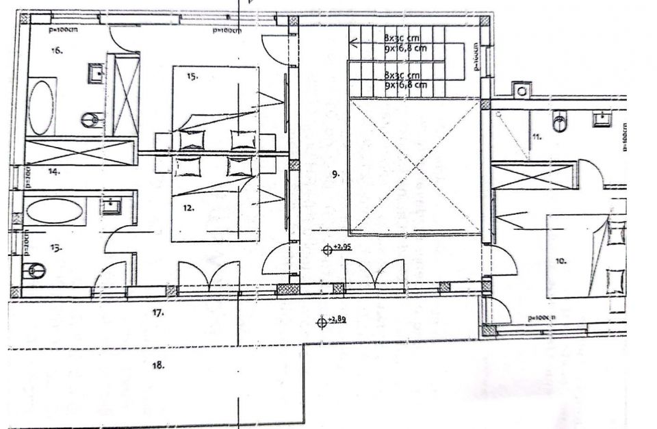
ISTRIEN, LABIN - Neu gebautes Haus in der Nähe der Stadt Auf einem Hügel oberhalb der Touristenstadt Rabac liegt die mittelalterliche Stadt Labin, deren alter Name Albona erstmals im Jahr 285 n. Chr. erwähnt wurde. Heute ist es ein Kultur- und Verwaltungszentrum, in dem sich der Reichtum an Architektur und kulturhistorischen Denkmälern selten so charmant mit zahlreichen Kunstateliers und dem Hauch der Jugend verbindet, der sich dort besonders abends in Cafés sammelt. Unweit von Labin wird bald mit dem Bau eines schönen zweistöckigen Hauses mit einer Bruttofläche von 210 m2, also 1920 m2 netto, begonnen. Das Erdgeschoss von 65 m2 besteht aus einem Eingangsbereich, einem Treppenhaus, einer großen Küche, einem Wohnzimmer und einem Esszimmer, die nach dem Open-Space-Konzept angeordnet sind, um den Raum optimal zu nutzen. Im Erdgeschoss gibt es eine kleine Toilette und einen Abstellraum. Im Außenbereich gibt es zwei weitere große Lagerräume zur Aufbewahrung persönlicher Gegenstände. Das Wohnzimmer bietet eine hervorragende Kommunikation mit einem schönen Garten mit Swimmingpool. Über die Innentreppe gelangen wir in den ersten Stock des Hauses, wo sich 3 geräumige Schlafzimmer mit jeweils eigenem Bad befinden. Eines der Zimmer verfügt über einen eigenen Kleiderschrank, was für Praktikabilität sorgt und dem Raum mehr Platz zum Dekorieren gibt. Zwei Zimmer haben Zugang zu einer großzügigen überdachten Terrasse, die einen Blick auf die Nachbarschaft bietet. Zusätzlich zu den Zimmern gibt es im Flur auch eine schöne Galerie, die der Eigentümer nach Belieben nutzen kann. Es können zusätzliche Betten aufgestellt, ein Kinderspielzimmer oder ähnliches geschaffen werden. Der 1.070 m² große Garten ist mit wunderschönen Zierpflanzen geschmückt. Der überdachte Bereich eignet sich hervorragend zum Entspannen mit der Familie, während der Pool ideal für warme Sommertage ist. Für Ihre Haustiere stehen überdachte Parkplätze zur Verfügung. Visualisierungen in Bearbeitung. Die Lage ist ideal für ein ruhiges Familienleben.
Bei allen unseren Angeboten sind die Preise identisch mit dem Direktkauf bei der Agentur/dem Entwickler in Kroatien, da wir der offizielle Vertreter dieser Agenturen auf dem tschechischen, slowakischen, deutschen und österreichischen Markt sind. Dies gilt ohne zusätzliche Zuschläge für deutschsprachige Dienstleistungen.
Sehr geehrte Kunden, die Besichtigung von Immobilien, die Mitteilung der Lage und andere detaillierte Informationen sind nur mit einem unterzeichneten Vermittlungsvertrag möglich, der die Grundlage für weitere Aktionen wie den Kauf einer Immobilie bildet. Alles steht im Einklang mit dem Gesetz über die Vermittlung beim Kauf von Immobilien. Der Käufer zahlt eine gesetzliche Vermittlungsprovision in Höhe von 3% (+ MwSt.) des vereinbarten Preises, und zwar nur im Falle des Kaufs der Immobilie. Sollte der Kauf nicht zustande kommen, ist der Vertrag für Sie nicht bindend und wird annulliert. Wenn Sie ernsthaft an der Immobilie interessiert sind, senden wir Ihnen den Vertrag auf Anfrage zu.
Wir werden Ihnen innerhalb von 24 Stunden antworten.
Wir bieten nur geprüfte Immobilien an.
Wir garantieren eine hohe Servicequalität.
Wir können Ihnen bei der Vermittlung von Unterkünften während der Besichtigungen helfen.
- Ich habe eine Immobilie aus dem Angebot ausgewählt
- Ich kontaktiere den Makler
- Ich unterschreibe einen Vertretungsvertrag - Details hier! (die Unterzeichnung des Vertrags ist gesetzlich vorgeschrieben)
- Ich richte eine OIB ein - Details hier (die Einrichtung ist gesetzlich vorgeschrieben)
- Besichtigungen vor Ort
- Unterzeichnung der Reservierung, des Kaufvertrags