ISTRIEN, LABIN - Haus mit Schwimmbad
| Registrationsnummer | DN-36838 |
| Art des Angebots | Verkauf |
| Kategorie | Häuser |
| Bezirk | Istarska |
| Gemeindeteil | Labin |
| Preis | 340 000 € |
| Gesamtfläche | 130 m² |
| Bebaute Fläche und Hof | 634 m² |
| Gesamt bebaut fläche | 634 m² |
| Entfernung vom meer | 8 000 m |
| Strom | |
| Energieintensität | X - Nicht ausgestellt |
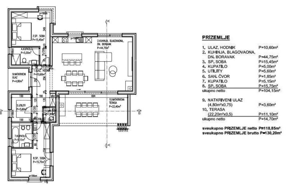
ISTRIEN, LABIN - Haus mit Schwimmbad An der südöstlichen Küste Istriens, dort, wo grüne Hügel auf das Meer treffen, wo Natur und Erbe zusammenkommen, liegen zwei Städte ähnlicher Größe, aber mit unterschiedlichem, sich aber gegenseitig ergänzendem Charakter – Labin und Rabac. Die malerische Stadt Labin erhebt sich auf einem 320 m hohen Hügel, nur fünf Kilometer von den weißen Kiesstränden in Rabac entfernt. Labin, das für kurze Zeit zur unabhängigen Republik erklärt wurde, ist eng mit der reichen Geschichte und dem Bergbau verbunden, die diese Region prägten, und ist heute eine faszinierende Stadt voller Widersprüche. alt und neu, Geschichte und Gegenwart, Tourismus und Kunst. In der Nähe der Stadt Labin steht ein Haus mit Schwimmbad zum Verkauf. Das Anwesen stellt eine Verschmelzung von moderner Architektur und natürlicher Umgebung dar und die Bauqualität garantiert langfristige Zufriedenheit und Wohnqualität. Das Haus ist als eine Wohneinheit konzipiert, die sich über eine Etage erstreckt und einen klar definierten Grundriss hat, der in Wohn- und Schlafbereiche unterteilt ist. Der Wohnbereich besteht aus einer Küche, einem Esszimmer und einem Wohnzimmer mit Zugang zu einer überdachten Terrasse mit Sommerküche, während der Nachtbereich aus zwei Schlafzimmern mit eigenen Badezimmern besteht. Ergänzt wird der Grundriss durch einen Flur, ein Gäste-WC und einen Abstellraum. Der angegebene Preis bezieht sich auf die hochwertige Errichtung des Wohngebäudes, die vorbereitende Arbeiten, Aushub und Installation von Fundamenten, Herstellung von Außen- und Trennwänden, Dach- und Blecharbeiten sowie Außenschreiner-, Fassaden- und Installationsarbeiten umfasst. Ausbauarbeiten im Innenbereich sind nicht im Preis inbegriffen. Die Möglichkeit, eine Immobilie in der letzten Bauphase ohne Möbel mit angelegtem Garten mit Preiskorrektur zu kaufen. Die hervorragende Lage und die räumliche Organisation des Innen- und Außenbereichs dieser Immobilie bieten die Möglichkeit für ein komfortables Familienleben oder eine Investitionsinvestition in ein touristisches Vermietungsunternehmen.
Bei allen unseren Angeboten sind die Preise identisch mit dem Direktkauf bei der Agentur/dem Entwickler in Kroatien, da wir der offizielle Vertreter dieser Agenturen auf dem tschechischen, slowakischen, deutschen und österreichischen Markt sind. Dies gilt ohne zusätzliche Zuschläge für deutschsprachige Dienstleistungen.
Sehr geehrte Kunden, die Besichtigung von Immobilien, die Mitteilung der Lage und andere detaillierte Informationen sind nur mit einem unterzeichneten Vermittlungsvertrag möglich, der die Grundlage für weitere Aktionen wie den Kauf einer Immobilie bildet. Alles steht im Einklang mit dem Gesetz über die Vermittlung beim Kauf von Immobilien. Der Käufer zahlt eine gesetzliche Vermittlungsprovision in Höhe von 3% (+ MwSt.) des vereinbarten Preises, und zwar nur im Falle des Kaufs der Immobilie. Sollte der Kauf nicht zustande kommen, ist der Vertrag für Sie nicht bindend und wird annulliert. Wenn Sie ernsthaft an der Immobilie interessiert sind, senden wir Ihnen den Vertrag auf Anfrage zu.
Wir werden Ihnen innerhalb von 24 Stunden antworten.
Wir bieten nur geprüfte Immobilien an.
Wir garantieren eine hohe Servicequalität.
Wir können Ihnen bei der Vermittlung von Unterkünften während der Besichtigungen helfen.
- Ich habe eine Immobilie aus dem Angebot ausgewählt
- Ich kontaktiere den Makler
- Ich unterschreibe einen Vertretungsvertrag - Details hier! (die Unterzeichnung des Vertrags ist gesetzlich vorgeschrieben)
- Ich richte eine OIB ein - Details hier (die Einrichtung ist gesetzlich vorgeschrieben)
- Besichtigungen vor Ort
- Unterzeichnung der Reservierung, des Kaufvertrags