ISTRIEN, LIŽNJAN – Exklusiver Neubau im Erdgeschoss mit Garten und Swimmingpool
| Registrationsnummer | DN-37532 |
| Art des Angebots | Verkauf |
| Kategorie | Appartements |
| Bezirk | Istarska |
| Gemeindeteil | Ližnjan |
| Preis | 315 000 € |
| Gesamtfläche | 75 m² |
| Wohnfläche (Wohnung) | 75 m² |
| Entfernung vom meer | 900 m |
| Strom | |
| Wasser | |
| Abfall | |
| Klimaanlage | |
| Heizung | ano |
| Energieintensität | A - extrem wirtschaftlich |
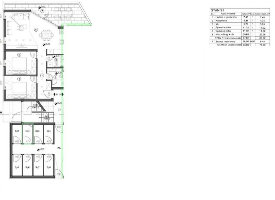
ISTRIEN, LIŽNJAN – Exklusiver Neubau im Erdgeschoss mit Garten, Swimmingpool und Meerblick Wir bieten ein Neubauprojekt mit 8 Wohneinheiten nahe dem Zentrum von Ližnjan. Das Gebäude verfügt über drei oberirdische Stockwerke, die Stockwerke P+2. Zu den Wohnungen gehören ein Abstellraum und ein Parkplatz, die Wohnungen im Erdgeschoss verfügen über einen Gartenanteil mit Swimmingpool. Die Lage dieses modernen und luxuriösen Projektes ist nur 800 m vom Meer und wunderschönen Naturstränden entfernt, während alles, was man zum täglichen Leben braucht, nur wenige Schritte von der Wohnung entfernt ist. WOHNUNGSBESCHREIBUNG: Die Wohnung befindet sich im Erdgeschoss dieses Luxusgebäudes. Es besteht aus einem Eingangsbereich mit Garderobe, der uns dann in den offen gestalteten Wohnbereich der Wohnung ohne Trennwände führt, der eine Küche, ein geräumiges Esszimmer und ein gemütliches Wohnzimmer umfasst. Was diesen Teil der Wohnung schmückt, sind die größeren Glaswände, durch die sich der Blick und Zugang zum Garten mit dem Swimmingpool und der überdachten Sommerterrasse erweitern. Der private Teil der Wohnung besteht aus zwei Schlafzimmern, einem Badezimmer und einem Gäste-WC. Zur Wohnung gehört ein zugeordneter PKW-Stellplatz im Hof des Gebäudes sowie ein Abstellraum im Erdgeschoss. Die Nettowohnfläche der Wohnung beträgt = 67,02 m2, der als (SP1) gekennzeichnete Abstellraum = 1,38 m2 und die reduzierte Parkfläche = 3 m2, was eine Gesamtfläche von 75,50 m2 ergibt. Zusätzlich zu all dem oben genannten verfügt diese hochwertige Wohnung auch über einen Swimmingpool im Hof. ZUSÄTZLICHE INFORMATIONEN: Der Bau dieses einzigartigen Projekts wird aus Materialien höchster Qualität unter Verwendung moderner Technologie durchgeführt! * 10 cm dicke Wärmedämmung (WDVS-System) an der Außenwand * Badezimmerausstattung (WC und WC-Sitz, Warmwasserbereiter, ebenerdige Dusche mit Mischbatterie, Waschbecken mit Unterbau, Waschmaschinenanschluss) * In jedem Schlafzimmer und Wohnzimmer werden Inverter-Klimaanlagen als Wärme- und Kühlenergiequelle installiert, zusätzlich verfügt die Wohnung über eine Fußbodenheizung in den Bädern. * Es werden hochwertige „Schüco“-Aluminiumfenster mit Dreifachglas eingebaut (mit Wärmedämmglas verglast) * Steckdosen und Schalter * Endanstrich Das Projekt stellt eine ideale Gelegenheit für ein ruhiges und komfortables Familienleben dar und ist aufgrund der Lage selbst auch eine perfekte Möglichkeit für die touristische Vermietung und eine vollständig gesicherte Kapitalrendite! Durch die mehrphasige Finanzierung während der Bauphase haben künftige Eigentümer die Sicherheit, eine der Immobilien im Rahmen des Projektes zu erwerben! Der Käufer zahlt keine Grunderwerbsteuer.
Bei allen unseren Angeboten sind die Preise identisch mit dem Direktkauf bei der Agentur/dem Entwickler in Kroatien, da wir der offizielle Vertreter dieser Agenturen auf dem tschechischen, slowakischen, deutschen und österreichischen Markt sind. Dies gilt ohne zusätzliche Zuschläge für deutschsprachige Dienstleistungen.
Sehr geehrte Kunden, die Besichtigung von Immobilien, die Mitteilung der Lage und andere detaillierte Informationen sind nur mit einem unterzeichneten Vermittlungsvertrag möglich, der die Grundlage für weitere Aktionen wie den Kauf einer Immobilie bildet. Alles steht im Einklang mit dem Gesetz über die Vermittlung beim Kauf von Immobilien. Der Käufer zahlt eine gesetzliche Vermittlungsprovision in Höhe von 3% (+ MwSt.) des vereinbarten Preises, und zwar nur im Falle des Kaufs der Immobilie. Sollte der Kauf nicht zustande kommen, ist der Vertrag für Sie nicht bindend und wird annulliert. Wenn Sie ernsthaft an der Immobilie interessiert sind, senden wir Ihnen den Vertrag auf Anfrage zu.
Wir werden Ihnen innerhalb von 24 Stunden antworten.
Wir bieten nur geprüfte Immobilien an.
Wir garantieren eine hohe Servicequalität.
Wir können Ihnen bei der Vermittlung von Unterkünften während der Besichtigungen helfen.
- Ich habe eine Immobilie aus dem Angebot ausgewählt
- Ich kontaktiere den Makler
- Ich unterschreibe einen Vertretungsvertrag - Details hier! (die Unterzeichnung des Vertrags ist gesetzlich vorgeschrieben)
- Ich richte eine OIB ein - Details hier (die Einrichtung ist gesetzlich vorgeschrieben)
- Besichtigungen vor Ort
- Unterzeichnung der Reservierung, des Kaufvertrags