Istrien, Medulin – Grundstück in Toplage für Investoren zu verkaufen
| Registrationsnummer | DN-45854 |
| Art des Angebots | Verkauf |
| Kategorie | Bauland |
| Bezirk | Istarska |
| Gemeindeteil | Medulin |
| Preis | 1 037 500 € |
| Preis pro m2 | 1 037 €/m² |
| Gesamtfläche | 1 000 m² |
| Entfernung vom meer | 220 m |
| Strom | |
| Abfall |
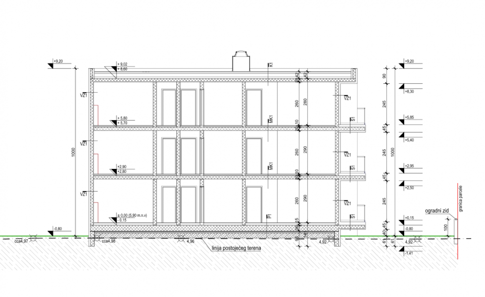
ISTRIEN, MEDULIN – Baugrundstück in Toplage für Investoren zu verkaufen In einer der begehrtesten Lagen von Medulin, nur 200 Meter vom Meer und gepflegten Stränden entfernt, steht ein attraktives 1000 m² großes Baugrundstück mit einem fertigen Rohbauprojekt für ein modernes Wohngebäude zum Verkauf. Dies ist eine außergewöhnliche Investitionsmöglichkeit, da das Projekt bereits ausgearbeitet ist und der zukünftige Investor somit deutlich schneller mit dem Bau beginnen kann. Das Projekt sieht den Bau eines Wohngebäudes mit Erdgeschoss und zwei Obergeschossen vor. Die Gesamtfläche beträgt 249,90 m², die Wohnfläche pro Etage 223,81 m². Das Gebäude ist als großzügige und luxuriöse Wohnung auf jeder Etage konzipiert, mit einem durchdachten Grundriss, der maximalen Komfort und Funktionalität bietet. Jede Etage umfasst: *4 geräumige Schlafzimmer, jeweils mit eigener Loggia *großes Wohnzimmer mit viel Tageslicht *Küche und Esszimmer mit Zugang zu einer weiteren Loggia *4 Badezimmer, die absolute Privatsphäre und Komfort gewährleisten Das Projekt beinhaltet außerdem 12 Parkplätze für Mieter und Gäste sowie einen Aufzug, was den Wert und die Attraktivität der Immobilie zusätzlich steigert. Die Lage macht diese Investition besonders wertvoll. Medulin ist eines der bekanntesten Touristenziele im südlichen Istrien und berühmt für seine langen Strandpromenaden, wunderschönen Strände, den Yachthafen, ein erstklassiges gastronomisches Angebot und ein vielfältiges touristisches Angebot. Die Nähe zum Meer, zum Stadtzentrum, zu Restaurants, Geschäften und allen notwendigen Einrichtungen macht diesen Standort ideal für luxuriöses Wohnen oder ein erstklassiges Tourismusprojekt. Diese Immobilie stellt eine seltene Gelegenheit auf dem Markt dar – ein Grundstück in Premiumlage mit einem bereits entwickelten Projekt, das sofort umgesetzt werden kann. Ideal für Investoren, die ein exklusives Wohn- oder Tourismusprojekt in einer der begehrtesten Gegenden von Medulin realisieren möchten. Nutzen Sie die Gelegenheit – Projekte an solchen Standorten sind äußerst selten. Wir stehen Ihnen gerne zur Verfügung.
Bei allen unseren Angeboten sind die Preise identisch mit dem Direktkauf bei der Agentur/dem Entwickler in Kroatien, da wir der offizielle Vertreter dieser Agenturen auf dem tschechischen, slowakischen, deutschen und österreichischen Markt sind. Dies gilt ohne zusätzliche Zuschläge für deutschsprachige Dienstleistungen.
Sehr geehrte Kunden, die Besichtigung von Immobilien, die Mitteilung der Lage und andere detaillierte Informationen sind nur mit einem unterzeichneten Vermittlungsvertrag möglich, der die Grundlage für weitere Aktionen wie den Kauf einer Immobilie bildet. Alles steht im Einklang mit dem Gesetz über die Vermittlung beim Kauf von Immobilien. Der Käufer zahlt eine gesetzliche Vermittlungsprovision in Höhe von 3% (+ MwSt.) des vereinbarten Preises, und zwar nur im Falle des Kaufs der Immobilie. Sollte der Kauf nicht zustande kommen, ist der Vertrag für Sie nicht bindend und wird annulliert. Wenn Sie ernsthaft an der Immobilie interessiert sind, senden wir Ihnen den Vertrag auf Anfrage zu.
Wir werden Ihnen innerhalb von 24 Stunden antworten.
Wir bieten nur geprüfte Immobilien an.
Wir garantieren eine hohe Servicequalität.
Wir können Ihnen bei der Vermittlung von Unterkünften während der Besichtigungen helfen.
- Ich habe eine Immobilie aus dem Angebot ausgewählt
- Ich kontaktiere den Makler
- Ich unterschreibe einen Vertretungsvertrag - Details hier! (die Unterzeichnung des Vertrags ist gesetzlich vorgeschrieben)
- Ich richte eine OIB ein - Details hier (die Einrichtung ist gesetzlich vorgeschrieben)
- Besichtigungen vor Ort
- Unterzeichnung der Reservierung, des Kaufvertrags