ISTRIEN, MEDULIN - Haus in erster Reihe zum Meer, einzigartiges Anwesen!
| Registrationsnummer | DN-32825 |
| Art des Angebots | Verkauf |
| Kategorie | Häuser |
| Bezirk | Istarska |
| Gemeindeteil | Medulin |
| Preis | 2 282 500 € |
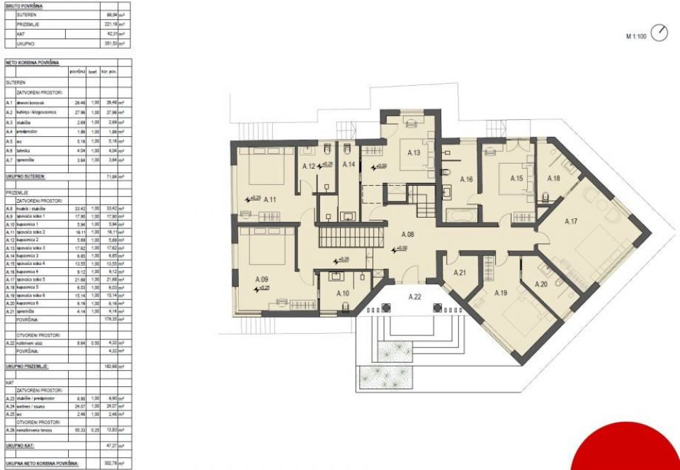
| Gesamtfläche | 348 m² |
| Bebaute Fläche und Hof | 6 594 m² |
| Gesamt bebaut fläche | 6 594 m² |
| Strom | |
| Energieintensität | X - Nicht ausgestellt |
ISTRIEN, MEDULIN - Haus in erster Reihe zum Meer, einzigartiges Anwesen! Die Gemeinde Medulin ist eine Küstengemeinde im äußersten Süden der Halbinsel Istrien mit einer Fläche von 29,35 km2 und etwa 6.500 Einwohnern in acht Siedlungen, die größtenteils entlang der Küste liegen. Dies sind Medulin, Premantura, Banjole, Pomer, Vinkuran, Vintijan, Valbonaša und Pješčana Uvala. Zum Verkauf steht ein Haus mit Swimmingpool in einzigartiger Lage, erste Reihe zum Meer, das absolute Privatsphäre garantiert. Das 348 m2 große Haus befindet sich auf einem großzügigen Grundstück von 6600 m2, wovon ca. 1900 m2 Bauland sind. Das bestehende Haus wurde im Jahr 2000 gebaut. Für die Renovierung eines Hauses mit 6 Schlafzimmern mit Bädern, einem Wellness/Sauna mit großer Terrasse auf dem Dach, einem geräumigen Wohnzimmer, einer Küche und einem Spielzimmer wurde eine gültige Baugenehmigung eingeholt. Es besteht die Möglichkeit, auf dem Grundstück ein weiteres Haus zu bauen.
Bei allen unseren Angeboten sind die Preise identisch mit dem Direktkauf bei der Agentur/dem Entwickler in Kroatien, da wir der offizielle Vertreter dieser Agenturen auf dem tschechischen, slowakischen, deutschen und österreichischen Markt sind. Dies gilt ohne zusätzliche Zuschläge für deutschsprachige Dienstleistungen.
Sehr geehrte Kunden, die Besichtigung von Immobilien, die Mitteilung der Lage und andere detaillierte Informationen sind nur mit einem unterzeichneten Vermittlungsvertrag möglich, der die Grundlage für weitere Aktionen wie den Kauf einer Immobilie bildet. Alles steht im Einklang mit dem Gesetz über die Vermittlung beim Kauf von Immobilien. Der Käufer zahlt eine gesetzliche Vermittlungsprovision in Höhe von 3% (+ MwSt.) des vereinbarten Preises, und zwar nur im Falle des Kaufs der Immobilie. Sollte der Kauf nicht zustande kommen, ist der Vertrag für Sie nicht bindend und wird annulliert. Wenn Sie ernsthaft an der Immobilie interessiert sind, senden wir Ihnen den Vertrag auf Anfrage zu.
Wir werden Ihnen innerhalb von 24 Stunden antworten.
Wir bieten nur geprüfte Immobilien an.
Wir garantieren eine hohe Servicequalität.
Wir können Ihnen bei der Vermittlung von Unterkünften während der Besichtigungen helfen.
- Ich habe eine Immobilie aus dem Angebot ausgewählt
- Ich kontaktiere den Makler
- Ich unterschreibe einen Vertretungsvertrag - Details hier! (die Unterzeichnung des Vertrags ist gesetzlich vorgeschrieben)
- Ich richte eine OIB ein - Details hier (die Einrichtung ist gesetzlich vorgeschrieben)
- Besichtigungen vor Ort
- Unterzeichnung der Reservierung, des Kaufvertrags