ISTRIEN, MOMJAN – AUTHENTISCHES STEINHAUS MIT RENOVIERUNGSPROJEKT
| Registrationsnummer | DN-42855 |
| Art des Angebots | Verkauf |
| Kategorie | Häuser |
| Bezirk | Istarska |
| Gemeindeteil | Buje |
| Preis | 130 000 € |
| Gesamtfläche | 106 m² |
| Bebaute Fläche und Hof | 344 m² |
| Gesamt bebaut fläche | 344 m² |
| Entfernung vom meer | 17 000 m |
| Strom |
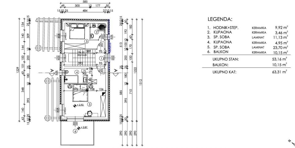
ISTRIEN, MOMJAN – AUTHENTISCHES STEINHAUS MIT RENOVIERUNGSPROJEKT Momjan, gelegen in den sanften Hügeln Nordwest-Istriens, ist ein malerisches und charmantes Städtchen, bekannt für seine üppigen Weinberge, jahrhundertealten Olivenhaine, historischen Mauern und erstklassigen Weingüter. Die Kombination aus authentischer istrischer Tradition, unberührter Natur und modernem Lebensstil macht es zu einem idealen Ort für ein ruhiges Leben, aber auch zu einem attraktiven Standort für touristische Investitionen. Die Nähe zur Adria, Poreč, Umag und der Grenze zu Slowenien unterstreicht seine Attraktivität zusätzlich. Ein attraktives Steinhaus mit Vorentwurf steht im schönen Momjan zum Verkauf. Die Baugenehmigung für das Objekt wird in Kürze erwartet, der Vorentwurf wurde bereits unter Auflagen genehmigt. Laut Projekt erstreckt sich das Haus über eine Fläche von 106,76 m², verteilt auf drei Etagen – Keller, Erdgeschoss und Obergeschoss – und verfügt über einen privaten Swimmingpool für puren Genuss und Entspannung. Die Gartenfläche beträgt 344 m². Die gesamte notwendige Infrastruktur – Strom, Wasser und Telefon – befindet sich direkt neben dem Grundstück, was einen einfachen und schnellen Anschluss an alle Versorgungssysteme ermöglicht. Die Zufahrt erfolgt über eine asphaltierte Straße, was die Zweckmäßigkeit und Benutzerfreundlichkeit zusätzlich erhöht. Es besteht die Möglichkeit, direkt nebenan ein weiteres antikes Steinhaus mit 200,21 m² zu erwerben, ebenfalls mit einem Projekt. Laut Projekt erstreckt es sich über drei Etagen und verfügt über einen Swimmingpool. Das Grundstück des zusätzlichen Hauses ist 517 m² groß. Diese Lage bietet eine perfekte Harmonie zwischen unberührter Natur, absoluter Ruhe und authentischem istrischen Lebensstil mit einem wunderschönen Blick über die Hügel und Weinberge bis hin zum blauen Meer in der Ferne. Es ist eine hervorragende Gelegenheit für alle, die luxuriöse Steinvillen mit einzigartiger Aussicht suchen, sei es als Eigenheim oder als Investition in eine touristische Vermietung. Momjan bietet mit seiner ursprünglichen Schönheit und dem authentischen Geist Istriens das Wertvollste: Ruhe, Eleganz und eine wahrhaft mediterrane Atmosphäre. Liebe Kunden, die Agenturprovision wird gemäß den Allgemeinen Geschäftsbedingungen berechnet: www.dux-nekretnine.hr/opci-uvjeti-poslovanja
Bei allen unseren Angeboten sind die Preise identisch mit dem Direktkauf bei der Agentur/dem Entwickler in Kroatien, da wir der offizielle Vertreter dieser Agenturen auf dem tschechischen, slowakischen, deutschen und österreichischen Markt sind. Dies gilt ohne zusätzliche Zuschläge für deutschsprachige Dienstleistungen.
Sehr geehrte Kunden, die Besichtigung von Immobilien, die Mitteilung der Lage und andere detaillierte Informationen sind nur mit einem unterzeichneten Vermittlungsvertrag möglich, der die Grundlage für weitere Aktionen wie den Kauf einer Immobilie bildet. Alles steht im Einklang mit dem Gesetz über die Vermittlung beim Kauf von Immobilien. Der Käufer zahlt eine gesetzliche Vermittlungsprovision in Höhe von 3% (+ MwSt.) des vereinbarten Preises, und zwar nur im Falle des Kaufs der Immobilie. Sollte der Kauf nicht zustande kommen, ist der Vertrag für Sie nicht bindend und wird annulliert. Wenn Sie ernsthaft an der Immobilie interessiert sind, senden wir Ihnen den Vertrag auf Anfrage zu.
Wir werden Ihnen innerhalb von 24 Stunden antworten.
Wir bieten nur geprüfte Immobilien an.
Wir garantieren eine hohe Servicequalität.
Wir können Ihnen bei der Vermittlung von Unterkünften während der Besichtigungen helfen.
- Ich habe eine Immobilie aus dem Angebot ausgewählt
- Ich kontaktiere den Makler
- Ich unterschreibe einen Vertretungsvertrag - Details hier! (die Unterzeichnung des Vertrags ist gesetzlich vorgeschrieben)
- Ich richte eine OIB ein - Details hier (die Einrichtung ist gesetzlich vorgeschrieben)
- Besichtigungen vor Ort
- Unterzeichnung der Reservierung, des Kaufvertrags