ISTRIEN, POREČ – Moderne Designervilla in der Nähe der Stadt
| Registrationsnummer | DN-21999 |
| Art des Angebots | Verkauf |
| Kategorie | Häuser |
| Bezirk | Istarska |
| Gemeindeteil | Poreč |
| Preis | 730 000 € |
| Gesamtfläche | 214 m² |
| Bebaute Fläche und Hof | 625 m² |
| Gesamt bebaut fläche | 625 m² |
| Entfernung vom meer | 5 000 m |
| Strom | |
| Wasser | |
| Abfall | |
| Klimaanlage | |
| Heizung | ano |
| Energieintensität | A - extrem wirtschaftlich |
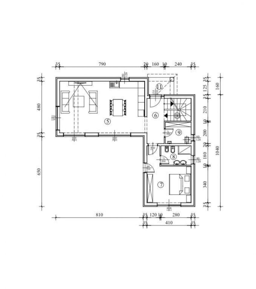
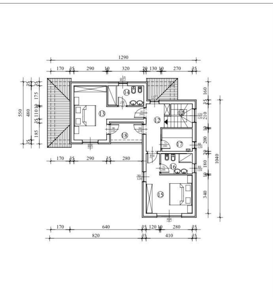
ISTRIEN, POREČ – Eine moderne Designervilla in der Nähe der Stadt Poreč liegt an der Westküste der Halbinsel Istrien. Aufgrund des mediterranen Klimas, der natürlichen Schönheit und des erhaltenen kulturellen Erbes ist es das ganze Jahr über ein idealer Aufenthaltsort. Die Stadt hat 53 umliegende Siedlungen, in denen es moderne Villen mit Schwimmbädern und Apartmentkomplexe gibt, während im Zentrum eine Vielzahl von Apartments und Wohnungen zum Verkauf stehen, von rustikalen Steinhäusern bis hin zu luxuriösen Neubauten. Diese moderne, geräumige Villa mit Swimmingpool liegt in einer ruhigen Gegend in der Nähe von Poreč. Die Villa erstreckt sich über drei Etagen und wird 214 m² groß sein. Die Villa besteht aus einem Keller, Erdgeschoss und erstem Stock. Im Untergeschoss wird es einen Wellnessbereich mit Sauna, Fitnessraum und Whirlpool geben, während im Erdgeschoss ein großzügiges Wohnzimmer entsteht, das nach dem Open-Space-Konzept mit der Küche und dem Esszimmer verbunden ist. Im gesamten Wohn- und Esszimmer werden große Glaswände installiert, die einen großen Sonnenlichteinfall ermöglichen und dem Raum selbst eine große Lichtquelle, ein Schlafzimmer mit eigenem Bad und einen Abstellraum verleihen. Die Innentreppe führt in den ersten Stock, wo sich zwei komfortable Schlafzimmer befinden, jedes mit eigenem Bad und einer Terrasse mit Blick auf die Natur, die die Villa umgibt. Das Wohnzimmer und das Esszimmer führen direkt auf die überdachte Terrasse, wo sich ein Swimmingpool mit Sonnendeck befindet. Das Haus wird über eine Fußbodenheizung mit Wärmepumpe beheizt und verfügt gleichzeitig über eine Heizung und Kühlung der Wände, eine Isolierung von 10 cm und eine Klimaanlage in jedem Raum. Die Villa wird für eine Videoüberwachung vorbereitet. Der Garten vor dem Haus wird mit mediterranen Pflanzen bepflanzt und dekoriert und bewässert. Den zentralen Platz im Garten nimmt ein großer Swimmingpool mit Liegewiese ein, der an heißen Sommertagen vollen Genuss bietet. Es gibt auch einen Parkplatz im Hof und die Villa wird über ein Tor verfügen, das zentral per Fernbedienung geöffnet und geschlossen werden kann. Unweit des Dorfes gibt es Restaurants, eine Schule und einen Kindergarten, ein Postamt, ein Geschäft, eine Apotheke, eine Klinik und Wege für einen angenehmen Spaziergang in der Natur. Dies ist eine ideale Gelegenheit für eine Investition mit der Möglichkeit der Vermietung während der Touristensaison oder für die Schaffung eines warmen Zuhauses für eine Familie. Geplante Fertigstellung Ende 2023
Bei allen unseren Angeboten sind die Preise identisch mit dem Direktkauf bei der Agentur/dem Entwickler in Kroatien, da wir der offizielle Vertreter dieser Agenturen auf dem tschechischen, slowakischen, deutschen und österreichischen Markt sind. Dies gilt ohne zusätzliche Zuschläge für deutschsprachige Dienstleistungen.
Sehr geehrte Kunden, die Besichtigung von Immobilien, die Mitteilung der Lage und andere detaillierte Informationen sind nur mit einem unterzeichneten Vermittlungsvertrag möglich, der die Grundlage für weitere Aktionen wie den Kauf einer Immobilie bildet. Alles steht im Einklang mit dem Gesetz über die Vermittlung beim Kauf von Immobilien. Der Käufer zahlt eine gesetzliche Vermittlungsprovision in Höhe von 3% (+ MwSt.) des vereinbarten Preises, und zwar nur im Falle des Kaufs der Immobilie. Sollte der Kauf nicht zustande kommen, ist der Vertrag für Sie nicht bindend und wird annulliert. Wenn Sie ernsthaft an der Immobilie interessiert sind, senden wir Ihnen den Vertrag auf Anfrage zu.
Wir werden Ihnen innerhalb von 24 Stunden antworten.
Wir bieten nur geprüfte Immobilien an.
Wir garantieren eine hohe Servicequalität.
Wir können Ihnen bei der Vermittlung von Unterkünften während der Besichtigungen helfen.
- Ich habe eine Immobilie aus dem Angebot ausgewählt
- Ich kontaktiere den Makler
- Ich unterschreibe einen Vertretungsvertrag - Details hier! (die Unterzeichnung des Vertrags ist gesetzlich vorgeschrieben)
- Ich richte eine OIB ein - Details hier (die Einrichtung ist gesetzlich vorgeschrieben)
- Besichtigungen vor Ort
- Unterzeichnung der Reservierung, des Kaufvertrags