ISTRIEN, PULA - 1-Zimmer-Wohnung im 2. Stock eines neuen Gebäudes
| Registrationsnummer | DN-28114 |
| Art des Angebots | Verkauf |
| Kategorie | Appartements |
| Bezirk | Istarska |
| Gemeindeteil | Pula |
| Preis | 174 500 € |
| Gesamtfläche | 46 m² |
| Wohnfläche (Wohnung) | 46 m² |
| Entfernung vom meer | 3 500 m |
| Strom | |
| Wasser | |
| Abfall | |
| Klimaanlage | |
| Heizung | ano |
| Energieintensität | A - extrem wirtschaftlich |
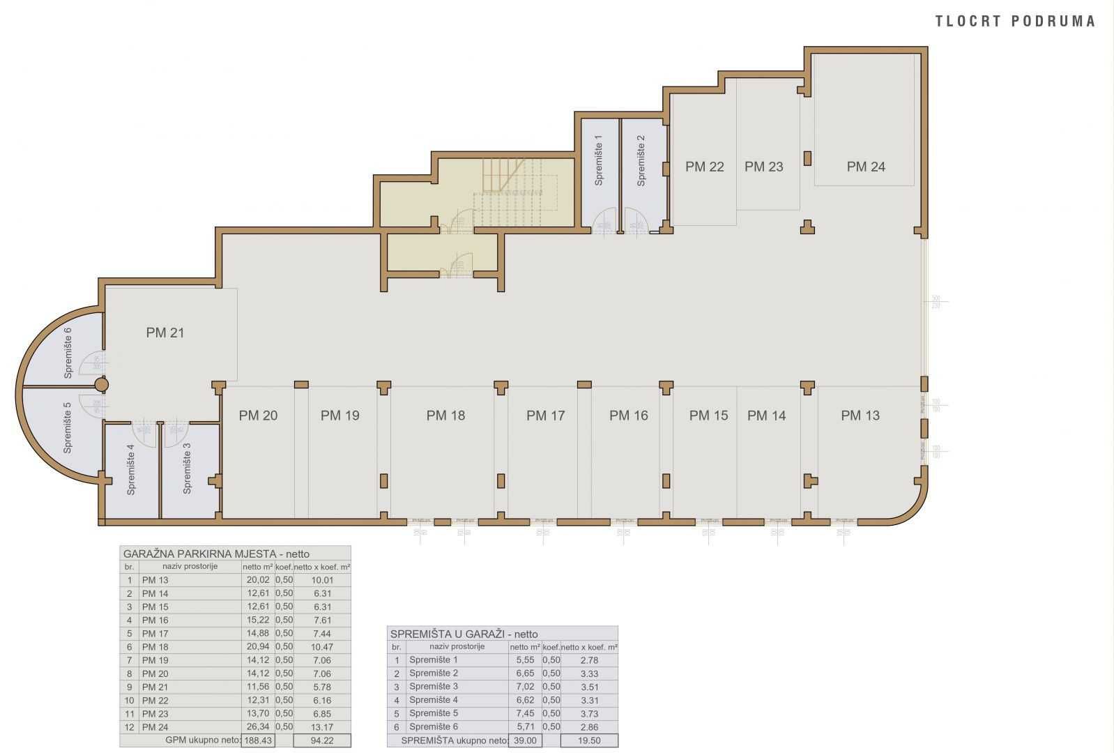
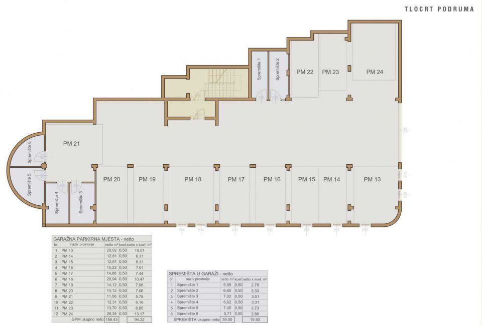
ISTRIEN, PULA – Nicht weit vom Stadtzentrum und der berühmten Veruda entfernt befindet sich in einer ruhigen Straße ein hochwertiges neues Gebäude. Wir sind stolz, Ihnen ein neues Bauprojekt an einem interessanten Ort in der Stadt Pula vorstellen zu können. Das Gebäude liegt nämlich nur 3 Autominuten vom Stadtzentrum entfernt und auch nur 5 Autominuten vom berühmten Touristenort Verudela. Das Gebäude befindet sich in ruhiger Lage, ohne viel Verkehr in der Nähe seiner für den täglichen Bedarf notwendigen Inhalte. Das Gebäude besteht aus mehreren Wohneinheiten, die sich vom Erdgeschoss des Gebäudes bis zum 3. Obergeschoss erstrecken. Neben dem Gebäude gibt es Parkplätze im Garten des Gebäudes sowie in der Garage des Gebäudes. Zukünftige Wohnungseigentümer haben die Möglichkeit, einen Parkplatz für ihre Haustiere zu wählen. BESCHREIBUNG DER WOHNUNG; Somit sind wir stolz, Ihnen in diesem Gebäude eine Wohnung im 2. Obergeschoss präsentieren zu können, die insgesamt über 46,53m2 Nettonutzfläche verfügt. Die Wohnung ist so organisiert, dass der Eingang zur Wohnung über einen Flur verfügt, der den Wohnungsraum in einen privaten Raum und einen Raum für das tägliche Leben und Unterhaltung trennt. So befinden sich im privaten Bereich der Wohnung 1 geräumiges Schlafzimmer, ein größeres Badezimmer und ein kleinerer Abstellraum. Der Raum für das tägliche Leben ist als größerer „Open Space“-Raum konzipiert und verfügt über eine geräumige Küche, ein gemütliches Esszimmer und ein größeres Wohnzimmer. Der gesamte Raum ist mit natürlichem Licht durchflutet, das durch große Glaswände in die Wohnung eindringt. Vom Wohnzimmer gibt es einen Ausgang zur Außenterrasse. * Kunden haben die Möglichkeit, einen Parkplatz entweder im Garten des Gebäudes oder im Garten des Gebäudes zu kaufen; - Parkplatz im Garten des Gebäudes; 8.290,00 € - Parkplatz im Garten je nach Quadratmeterzahl: von 21.670,00 € bis 49.390,00 € - Abstellraum je nach Quadratmeterzahl; von 10.430,00 € bis 13.990,00 € TECHNISCHE UND WEITERE DATEN; * Jede Wohnung im Gebäude wird mit einer elektrischen Fußbodenheizung ausgestattet. * Hochwertige PVC-Tischlerei wird installiert. * Fassadendämmung 10 cm. * Das Gebäude verfügt über einen Aufzug, der die Garage mit jeder Etage des Gebäudes verbindet. * Hochwertige Keramik wird installiert auf den Böden installiert (Kunden haben vorerst die Möglichkeit, Einfluss zu nehmen!) * Einzugsmöglichkeit ist für Anfang 2025 geplant. STANDORTBESCHREIBUNG; Das Gebäude befindet sich in ruhiger Lage in der Stadt Pula, nur 3 Autominuten vom Stadtzentrum und nur 5 Autominuten vom berühmten Touristenort Verudela entfernt. Auf Verudela finden Sie zahlreiche Fels- und Steinstrände mit kristallklarem Meer, und in unmittelbarer Nähe des Gebäudes gibt es zahlreiche Restaurants, Cafés, sowie einen Markt, neben dem Gebäude gibt es auch einen kleinen Laden, sowie alles, was Sie für einen sicheren und ruhigen Alltag des modernen Menschen benötigen. Kurz gesagt, es handelt sich um eine Immobilie, die Ihre Aufmerksamkeit verdient und als ideale Option für eine private Investition oder als Option für ein echtes Einfamilienhaus dienen kann. Für weitere Fragen, notwendige Informationen oder den Wunsch, einen Termin zur Besichtigung des Standortes und des aktuellen Baustatus zu vereinbaren, nehmen Sie gerne Kontakt mit uns auf!
Bei allen unseren Angeboten sind die Preise identisch mit dem Direktkauf bei der Agentur/dem Entwickler in Kroatien, da wir der offizielle Vertreter dieser Agenturen auf dem tschechischen, slowakischen, deutschen und österreichischen Markt sind. Dies gilt ohne zusätzliche Zuschläge für deutschsprachige Dienstleistungen.
Sehr geehrte Kunden, die Besichtigung von Immobilien, die Mitteilung der Lage und andere detaillierte Informationen sind nur mit einem unterzeichneten Vermittlungsvertrag möglich, der die Grundlage für weitere Aktionen wie den Kauf einer Immobilie bildet. Alles steht im Einklang mit dem Gesetz über die Vermittlung beim Kauf von Immobilien. Der Käufer zahlt eine gesetzliche Vermittlungsprovision in Höhe von 3% (+ MwSt.) des vereinbarten Preises, und zwar nur im Falle des Kaufs der Immobilie. Sollte der Kauf nicht zustande kommen, ist der Vertrag für Sie nicht bindend und wird annulliert. Wenn Sie ernsthaft an der Immobilie interessiert sind, senden wir Ihnen den Vertrag auf Anfrage zu.
Wir werden Ihnen innerhalb von 24 Stunden antworten.
Wir bieten nur geprüfte Immobilien an.
Wir garantieren eine hohe Servicequalität.
Wir können Ihnen bei der Vermittlung von Unterkünften während der Besichtigungen helfen.
- Ich habe eine Immobilie aus dem Angebot ausgewählt
- Ich kontaktiere den Makler
- Ich unterschreibe einen Vertretungsvertrag - Details hier! (die Unterzeichnung des Vertrags ist gesetzlich vorgeschrieben)
- Ich richte eine OIB ein - Details hier (die Einrichtung ist gesetzlich vorgeschrieben)
- Besichtigungen vor Ort
- Unterzeichnung der Reservierung, des Kaufvertrags