ISTRIEN, RABAC - Grundstück mit Baugenehmigung und Meerblick
| Registrationsnummer | DN-47370 |
| Art des Angebots | Verkauf |
| Kategorie | Bauland |
| Bezirk | Istarska |
| Gemeindeteil | Labin |
| Preis | 230 000 € |
| Preis pro m2 | 220 €/m² |
| Gesamtfläche | 1 041 m² |
| Entfernung vom meer | 950 m |
| Strom |
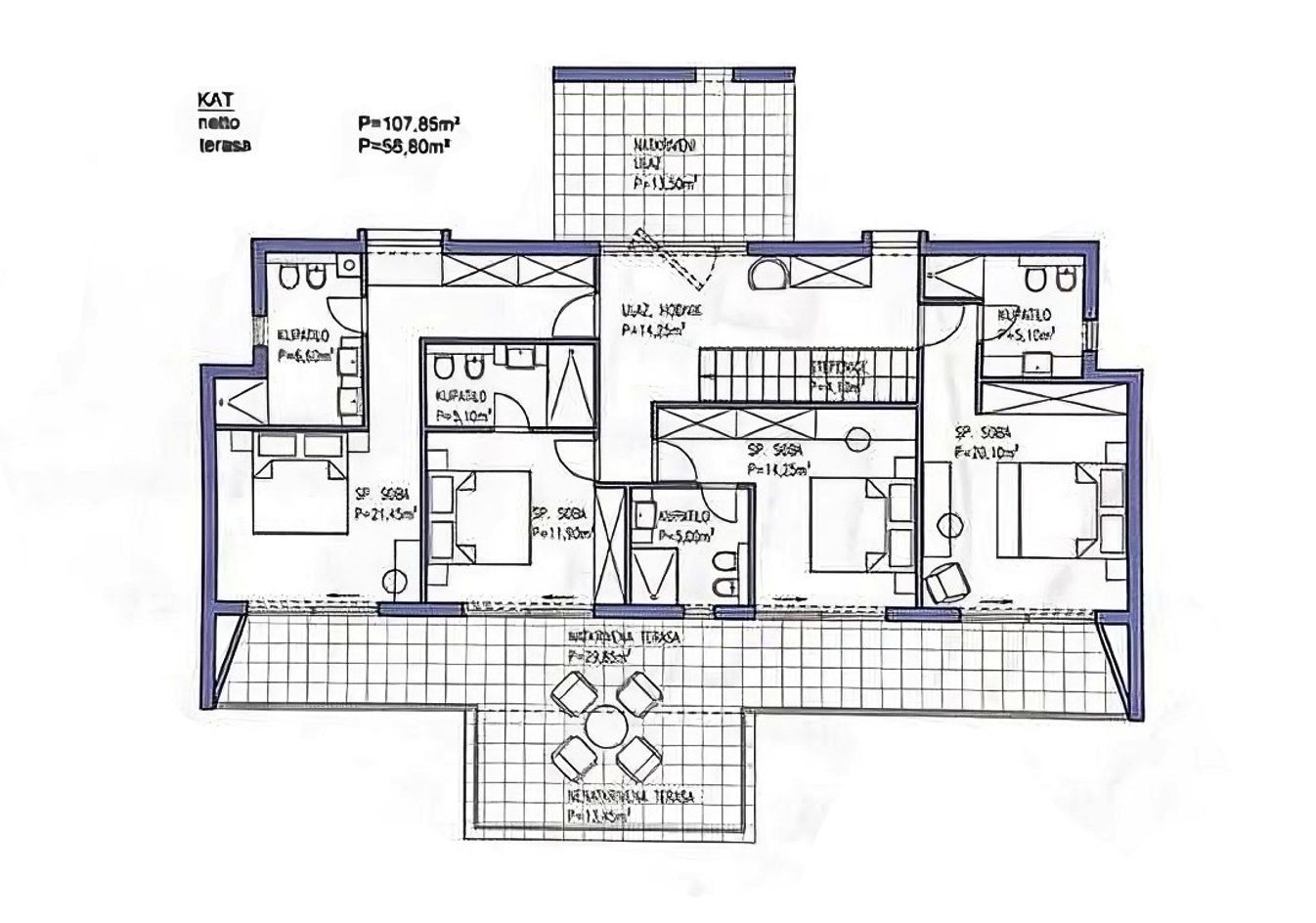
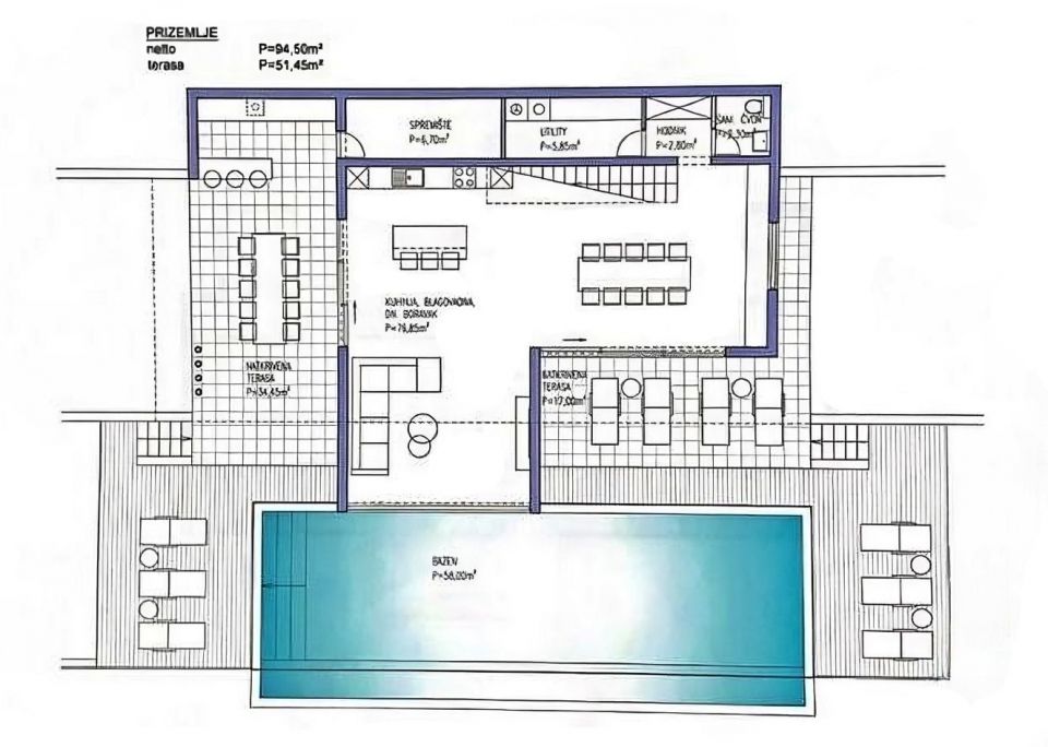
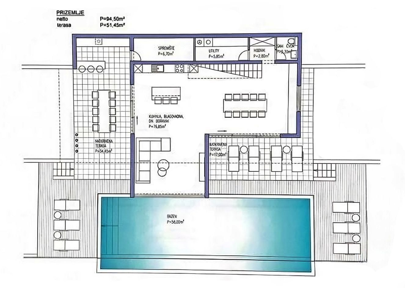
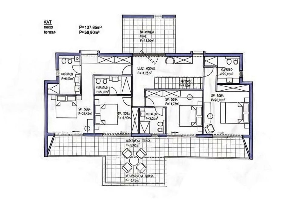
ISTRIEN, RABAC – Grundstück mit Baugenehmigung und Blick auf das Meer An der südöstlichen Küste Istriens, wo grüne Hügel auf das Meer treffen, wo Natur und Erbe zusammenkommen, gibt es zwei kleine Städte mit unterschiedlichen, sich aber gegenseitig ergänzenden Charakteren, nur fünf Kilometer voneinander entfernt - Labin und Rabac. Rabac wird wegen seiner weißen Kiesstrände, der üppigen mediterranen Vegetation und dem kristallklaren Meer auch die Perle der Kvarner-Bucht genannt. Einst ein kleines Fischerdorf, ist Rabac heute ein attraktives Touristenziel, das in einem Netz farbenfroher Straßen eine Fülle kultureller Veranstaltungen verbirgt. Die grüne Umgebung von Rabac und das malerische Hinterland laden das ganze Jahr über zu Abenteuern, Forschung und Erholung ein. Unweit von Rabac und Labin, in einem ruhigen Dorf auf einem Hügel, steht ein Grundstück mit Baugenehmigung und Blick auf das Meer zum Verkauf. Das Land hält den Kvarner in Ihrer Hand – Rijeka auf der linken Seite, Cres vor Ihnen und die Inseln Zeča und Unije auf der rechten Seite sowie die gegliederte Küste Ostistriens. Das Katastergrundstück hat eine relativ regelmäßige Form, das Gelände ist leicht abschüssig, die Zufahrt erfolgt über eine asphaltierte Straße und Wasser-, Strom- und Telefonanschlüsse befinden sich in der Nähe des Grundstücks. Das Grundstück verfügt über eine gültige Baugenehmigung für den Bau eines Wohngebäudes und eines Schwimmbades mit bezahlten Stromrechnungen. Das Hauptprojekt sieht den Bau einer attraktiven Villa mit einer Nettofläche von 260 m², die sich über zwei Etagen erstreckt, und einer Poolfläche von 58 m² vor. Aufgrund seiner Mikrolage, Konfiguration, ordnungsgemäßen Eigentümerschaft und Dokumentation bietet dieses Grundstück mit bezauberndem Blick auf das Meer eine außergewöhnliche Gelegenheit für den Bau eines Einfamilienhauses oder Ferienhauses.
Bei allen unseren Angeboten sind die Preise identisch mit dem Direktkauf bei der Agentur/dem Entwickler in Kroatien, da wir der offizielle Vertreter dieser Agenturen auf dem tschechischen, slowakischen, deutschen und österreichischen Markt sind. Dies gilt ohne zusätzliche Zuschläge für deutschsprachige Dienstleistungen.
Sehr geehrte Kunden, die Besichtigung von Immobilien, die Mitteilung der Lage und andere detaillierte Informationen sind nur mit einem unterzeichneten Vermittlungsvertrag möglich, der die Grundlage für weitere Aktionen wie den Kauf einer Immobilie bildet. Alles steht im Einklang mit dem Gesetz über die Vermittlung beim Kauf von Immobilien. Der Käufer zahlt eine gesetzliche Vermittlungsprovision in Höhe von 3% (+ MwSt.) des vereinbarten Preises, und zwar nur im Falle des Kaufs der Immobilie. Sollte der Kauf nicht zustande kommen, ist der Vertrag für Sie nicht bindend und wird annulliert. Wenn Sie ernsthaft an der Immobilie interessiert sind, senden wir Ihnen den Vertrag auf Anfrage zu.
Wir werden Ihnen innerhalb von 24 Stunden antworten.
Wir bieten nur geprüfte Immobilien an.
Wir garantieren eine hohe Servicequalität.
Wir können Ihnen bei der Vermittlung von Unterkünften während der Besichtigungen helfen.
- Ich habe eine Immobilie aus dem Angebot ausgewählt
- Ich kontaktiere den Makler
- Ich unterschreibe einen Vertretungsvertrag - Details hier! (die Unterzeichnung des Vertrags ist gesetzlich vorgeschrieben)
- Ich richte eine OIB ein - Details hier (die Einrichtung ist gesetzlich vorgeschrieben)
- Besichtigungen vor Ort
- Unterzeichnung der Reservierung, des Kaufvertrags