ISTRIEN, SAVUDRIJA - Erdgeschoss in der ROH BAU-Phase unweit des Meeres! GELEGENHEIT!
| Registrationsnummer | DN-34658 |
| Art des Angebots | Verkauf |
| Kategorie | Häuser |
| Bezirk | Istarska |
| Gemeindeteil | Umag |
| Preis | 195 000 € |
| Gesamtfläche | 86 m² |
| Bebaute Fläche und Hof | 330 m² |
| Gesamt bebaut fläche | 330 m² |
| Entfernung vom meer | 2 000 m |
| Abfall | |
| Heizung | ano |
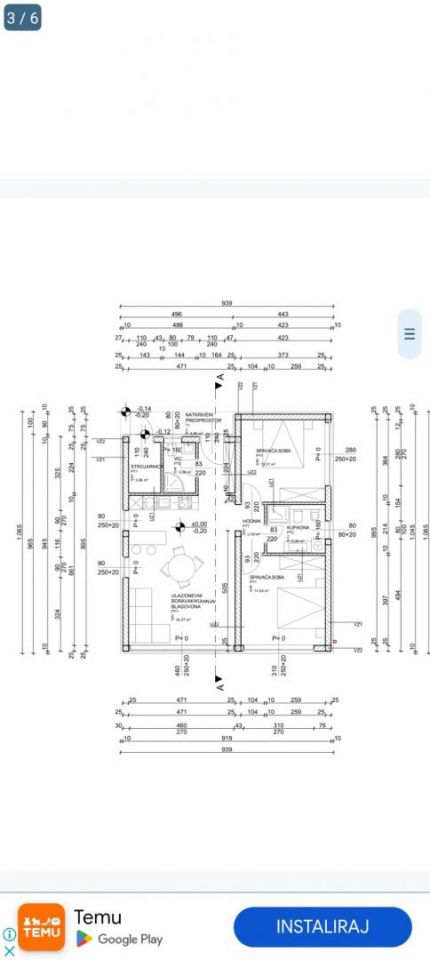
ISTRIEN, SAVUDRIJA - Erdgeschoss in der ROH BAU-Phase unweit des Meeres! GELEGENHEIT! Im Angebot von Real Estate bieten wir eine Erdgeschosswohnung in einer ruhigen Straße, 4 Autominuten vom ersten Strand (Kanegra) entfernt! Dies ist eine großartige Gelegenheit für alle, die ein Zuhause mit geringem Wartungsaufwand und dennoch Privatsphäre suchen! Das Erdgeschoss bietet 86 m2 Nettowohnfläche und besteht aus einer Eingangshalle, einem offenen Wohnzimmer mit Küche und Esszimmer, zwei Schlafzimmern, zwei Badezimmern und einem Technikraum. Es wird in dem auf den Fotos sichtbaren Zustand verkauft, sodass zukünftige Eigentümer die Möglichkeit haben, das Äußere und Innere nach ihren Wünschen zu gestalten. Für Kühlung und Heizung sorgt eine Klimaanlage. Der Hof bietet Platz für zwei Parkplätze. INTERESSANT! Die zukünftigen Eigentümer können die Baugenehmigung ändern und zwei weitere Etagen des Hauses bauen, und im ersten Stock haben Sie einen Blick auf das Meer! Die Lage bietet viel Ruhe und Privatsphäre, die Strände sind 4 Autominuten vom Haus entfernt und größere Geschäfte befinden sich im Zentrum von Umag. Diese Immobilie ist ideal für eine Familie, die lieber im Haus wohnen möchte, aber auch als gutes touristisches Produkt zur Miete geeignet, da die Pflege des Gartens auf ein Minimum reduziert ist. DOKUMENTATION: - Eigentum 1/1 - Keine Belastung Tolle Gelegenheit! Für alle weiteren Informationen kontaktieren Sie uns und vereinbaren Sie einen Besichtigungstermin für diese tolle Immobilie!
Bei allen unseren Angeboten sind die Preise identisch mit dem Direktkauf bei der Agentur/dem Entwickler in Kroatien, da wir der offizielle Vertreter dieser Agenturen auf dem tschechischen, slowakischen, deutschen und österreichischen Markt sind. Dies gilt ohne zusätzliche Zuschläge für deutschsprachige Dienstleistungen.
Sehr geehrte Kunden, die Besichtigung von Immobilien, die Mitteilung der Lage und andere detaillierte Informationen sind nur mit einem unterzeichneten Vermittlungsvertrag möglich, der die Grundlage für weitere Aktionen wie den Kauf einer Immobilie bildet. Alles steht im Einklang mit dem Gesetz über die Vermittlung beim Kauf von Immobilien. Der Käufer zahlt eine gesetzliche Vermittlungsprovision in Höhe von 3% (+ MwSt.) des vereinbarten Preises, und zwar nur im Falle des Kaufs der Immobilie. Sollte der Kauf nicht zustande kommen, ist der Vertrag für Sie nicht bindend und wird annulliert. Wenn Sie ernsthaft an der Immobilie interessiert sind, senden wir Ihnen den Vertrag auf Anfrage zu.
Wir werden Ihnen innerhalb von 24 Stunden antworten.
Wir bieten nur geprüfte Immobilien an.
Wir garantieren eine hohe Servicequalität.
Wir können Ihnen bei der Vermittlung von Unterkünften während der Besichtigungen helfen.
- Ich habe eine Immobilie aus dem Angebot ausgewählt
- Ich kontaktiere den Makler
- Ich unterschreibe einen Vertretungsvertrag - Details hier! (die Unterzeichnung des Vertrags ist gesetzlich vorgeschrieben)
- Ich richte eine OIB ein - Details hier (die Einrichtung ist gesetzlich vorgeschrieben)
- Besichtigungen vor Ort
- Unterzeichnung der Reservierung, des Kaufvertrags