ISTRIEN, SKITAČA – Einzigartiges Baugrundstück mit Baugenehmigung und Meerblick
| Registrationsnummer | DN-40449 |
| Art des Angebots | Verkauf |
| Kategorie | Bauland |
| Bezirk | Istarska |
| Gemeindeteil | Labin |
| Preis | 166 040 € |
| Preis pro m2 | 140 €/m² |
| Gesamtfläche | 1 186 m² |
| Strom |
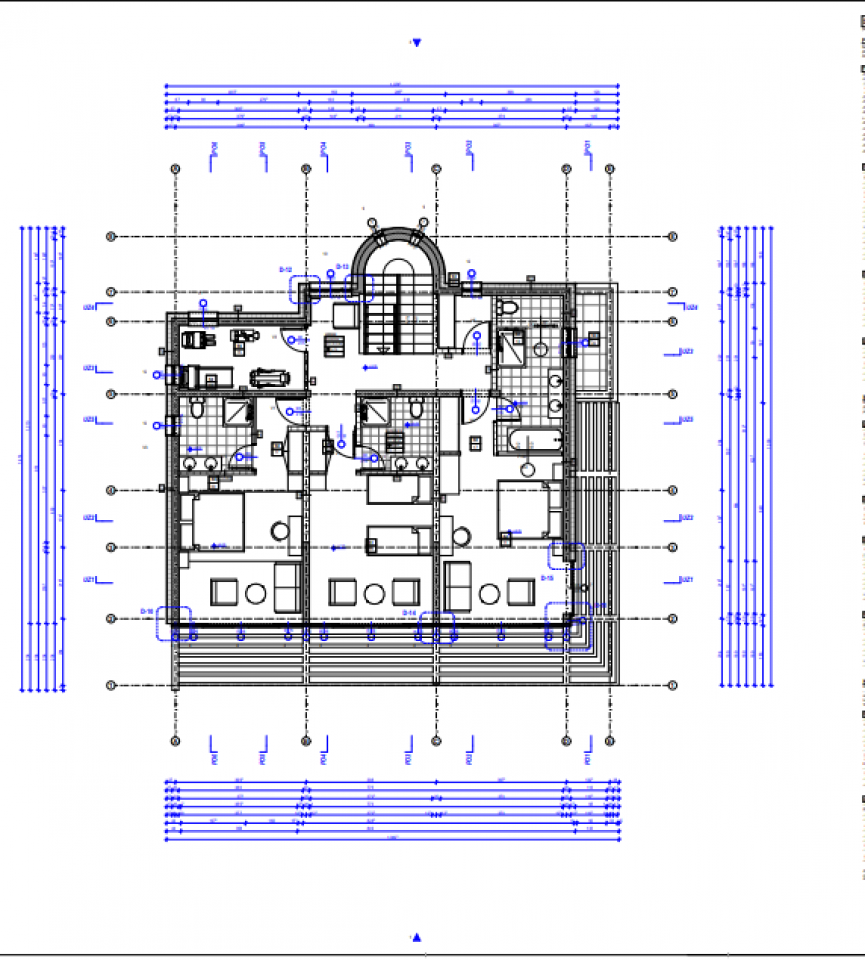
ISTRIEN, SKITAČA – Einzigartiges Baugrundstück mit Baugenehmigung für zwei moderne Villen Die Stadt Skitača liegt im südlichsten Teil der Halbinsel Labin, auf einer 425 Meter hohen Lichtung und ist von den vier Hügeln Goli, Oštri, Brdo und Orlić umgeben. Sie schützen das Dorf vor den heftigen Sturmböen, die in dieser Gegend häufig vorkommen. Skitača wurde im 15. Jahrhundert gegründet, als Flüchtlinge vor den Türken flohen, und der Name, der wahrscheinlich vlachischen Ursprungs ist, bedeutet Menschen, die umziehen – Landstreicher. An diesem einzigartigen Ort in bester Lage steht ein Grundstück mit Baugenehmigung für eine moderne Villa zum Verkauf. Die Grundstücksfläche beträgt 1200 m2. Dem Projekt zufolge ist der Bau einer modernen Villa mit Swimmingpool geplant. Die Villa hat eine Bruttofläche von 260 m2 mit einem Swimmingpool von 50 m2. Im Erdgeschoss gibt es ein Wohnzimmer und ein Esszimmer, eine separate Küche mit Doppelservice und Zugang zur Außenterrasse mit Esstisch, einen separaten Bereich für die Sauna, eine Toilette mit separatem Eingang außerdem ein Badezimmer mit Waschmaschine und ein Technikraum. Im Obergeschoss befinden sich drei Schlafzimmer, jeweils mit eigenem Bad, Sauna, Zierschrank. Es gibt einen Infinity-Pool von 50 m2, einen Kinderspielplatz und Parkplätze für 3 Autos im Garten. Die Villa ist in allen Räumen mit Fußbodenheizung und Klimaanlage ausgestattet. Die Ausrichtung der Villa ist Nord-Süd, sodass alle Räume nach Süden ausgerichtet sind und einen freien Blick auf das Meer bieten. Das Grundstück ist sanft abfallend und bietet einen schönen Blick auf das Meer. Es verfügt über eine eigene Zufahrtsstraße und die gesamte notwendige Infrastruktur . Das Grundstück auf der Südseite grenzt an Grundstücke, die nicht im Baugebiet liegen und bietet einen freien Blick auf das Meer. Auf dem Grundstück besteht ein Anschluss mit Genehmigung für den Anschluss eines 15-kW-Solarkraftwerks. Für Wasser ist ein Tank mit einem Volumen von 30.000 Litern geplant, die Möglichkeit, in 150 m Tiefe einen Brunnen zu bohren – eine Quelle von 250 Litern pro Minute. Das Gebäude verfügt über eine gültige Baugenehmigung, Haupt- und Ausführungsprojekt. Das Land liegt auf einer Höhe von 420 Metern. Eigentum in Ordnung.
Bei allen unseren Angeboten sind die Preise identisch mit dem Direktkauf bei der Agentur/dem Entwickler in Kroatien, da wir der offizielle Vertreter dieser Agenturen auf dem tschechischen, slowakischen, deutschen und österreichischen Markt sind. Dies gilt ohne zusätzliche Zuschläge für deutschsprachige Dienstleistungen.
Sehr geehrte Kunden, die Besichtigung von Immobilien, die Mitteilung der Lage und andere detaillierte Informationen sind nur mit einem unterzeichneten Vermittlungsvertrag möglich, der die Grundlage für weitere Aktionen wie den Kauf einer Immobilie bildet. Alles steht im Einklang mit dem Gesetz über die Vermittlung beim Kauf von Immobilien. Der Käufer zahlt eine gesetzliche Vermittlungsprovision in Höhe von 3% (+ MwSt.) des vereinbarten Preises, und zwar nur im Falle des Kaufs der Immobilie. Sollte der Kauf nicht zustande kommen, ist der Vertrag für Sie nicht bindend und wird annulliert. Wenn Sie ernsthaft an der Immobilie interessiert sind, senden wir Ihnen den Vertrag auf Anfrage zu.
Wir werden Ihnen innerhalb von 24 Stunden antworten.
Wir bieten nur geprüfte Immobilien an.
Wir garantieren eine hohe Servicequalität.
Wir können Ihnen bei der Vermittlung von Unterkünften während der Besichtigungen helfen.
- Ich habe eine Immobilie aus dem Angebot ausgewählt
- Ich kontaktiere den Makler
- Ich unterschreibe einen Vertretungsvertrag - Details hier! (die Unterzeichnung des Vertrags ist gesetzlich vorgeschrieben)
- Ich richte eine OIB ein - Details hier (die Einrichtung ist gesetzlich vorgeschrieben)
- Besichtigungen vor Ort
- Unterzeichnung der Reservierung, des Kaufvertrags