ISTRIEN, VIŠNJAN - Grundstück mit Baugenehmigung
| Registrationsnummer | DN-45976 |
| Art des Angebots | Verkauf |
| Kategorie | Bauland |
| Bezirk | Istarska |
| Gemeindeteil | Višnjan |
| Preis | 130 000 € |
| Preis pro m2 | 180 €/m² |
| Gesamtfläche | 720 m² |
| Strom | |
| Wasser |
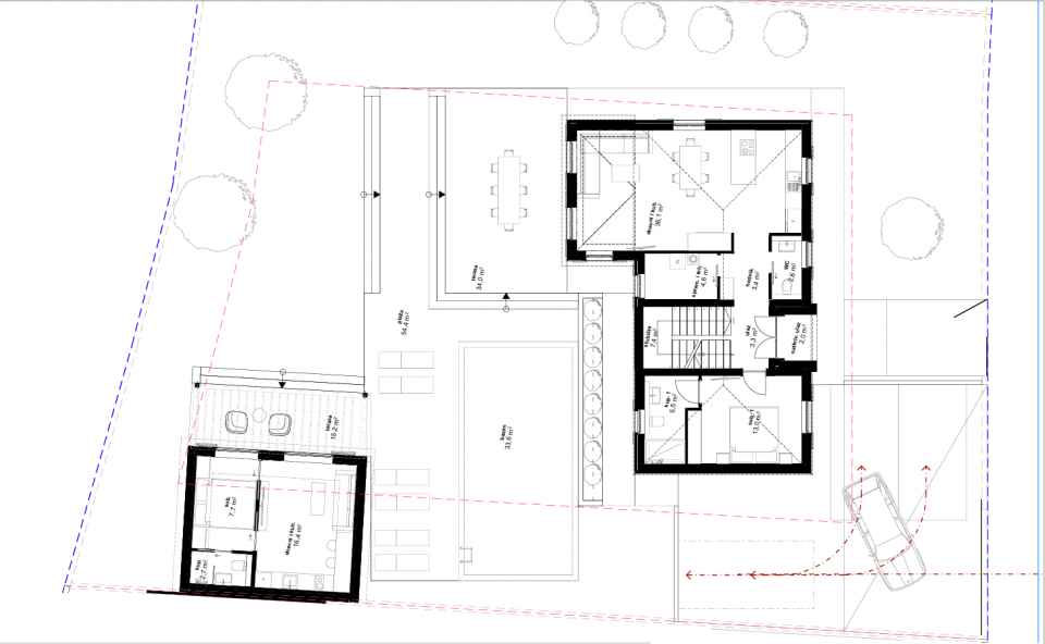
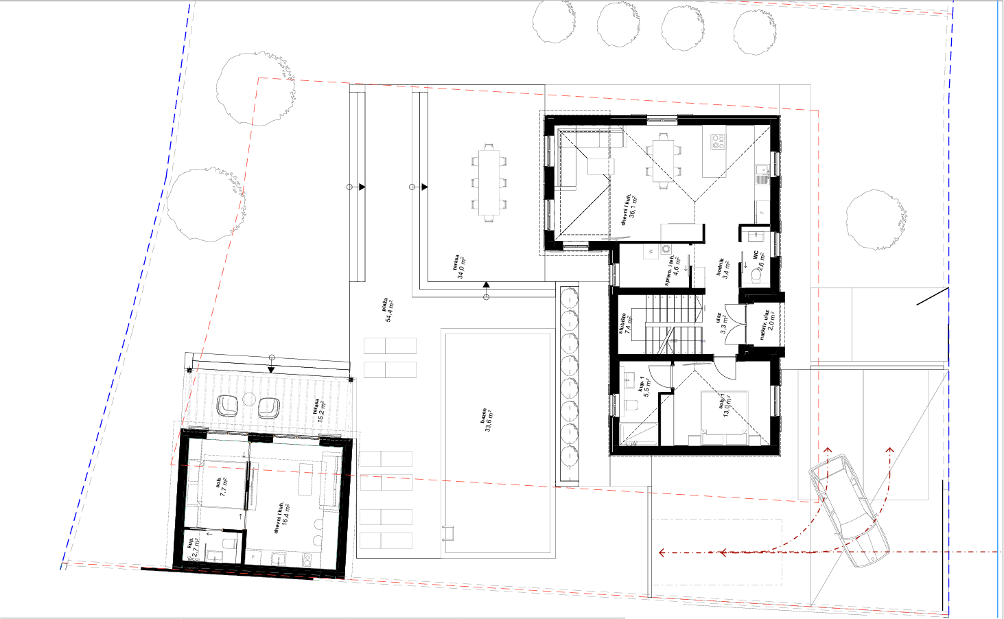
ISTRIEN, VIŠNJAN – Baugrundstück mit Baugenehmigung Višnjan ist eine malerische und lebendige Stadt und Gemeinde im Westen Istriens. Die Gemeinde Višnjan umfasst 56 Ortschaften und liegt zwischen dem Fluss Mirna im Norden und dem Lim-Kanal im Süden. Das romantische Višnjan schmiegt sich an einen sanften Hügel von 244 m ü. d. M., umgeben von Wiesen, Ackerland und Wäldern aus Steineichen und Weißbuchen. Heute ist Višnjan vor allem für seine einzigartige Sternwarte bekannt, die gemessen an der Anzahl der entdeckten Asteroiden zu den zwölf produktivsten Sternwarten der Welt zählt. Ein attraktives Baugrundstück von 720 m² mit gültiger Baugenehmigung und einem fertigen Entwurf für ein modernes Einfamilienhaus mit Swimmingpool steht zum Verkauf. Dieses Grundstück bietet eine hervorragende Gelegenheit für alle, die sofort mit dem Bau beginnen möchten, ohne sich mit langwierigen Genehmigungsverfahren und Planungsarbeiten herumschlagen zu müssen. Das Projekt präsentiert sich in einem modernen Architekturstil und bietet eine funktionale Raumaufteilung, großzügige Glasflächen, eine Terrasse und einen privaten Pool – ideal für ein komfortables Familienleben oder ein luxuriöses Ferienhaus. Das 720 m² große Grundstück bietet ausreichend Platz für ein Haus, einen Hof, einen Garten und weitere Annehmlichkeiten. Ein Nebengebäude kann je nach Bedarf des zukünftigen Eigentümers als Abstellraum, Werkstatt oder zusätzlicher Nutzraum genutzt werden. Das Projekt wurde sorgfältig geplant, um das Grundstück optimal zu nutzen und Privatsphäre sowie einen hochwertigen Außenbereich zu gewährleisten. Die Versorgungsinfrastruktur ist vorhanden, Wasser- und Stromanschlüsse sind auf dem Grundstück verfügbar, was den Baubeginn zusätzlich erleichtert und beschleunigt.
Bei allen unseren Angeboten sind die Preise identisch mit dem Direktkauf bei der Agentur/dem Entwickler in Kroatien, da wir der offizielle Vertreter dieser Agenturen auf dem tschechischen, slowakischen, deutschen und österreichischen Markt sind. Dies gilt ohne zusätzliche Zuschläge für deutschsprachige Dienstleistungen.
Sehr geehrte Kunden, die Besichtigung von Immobilien, die Mitteilung der Lage und andere detaillierte Informationen sind nur mit einem unterzeichneten Vermittlungsvertrag möglich, der die Grundlage für weitere Aktionen wie den Kauf einer Immobilie bildet. Alles steht im Einklang mit dem Gesetz über die Vermittlung beim Kauf von Immobilien. Der Käufer zahlt eine gesetzliche Vermittlungsprovision in Höhe von 3% (+ MwSt.) des vereinbarten Preises, und zwar nur im Falle des Kaufs der Immobilie. Sollte der Kauf nicht zustande kommen, ist der Vertrag für Sie nicht bindend und wird annulliert. Wenn Sie ernsthaft an der Immobilie interessiert sind, senden wir Ihnen den Vertrag auf Anfrage zu.
Wir werden Ihnen innerhalb von 24 Stunden antworten.
Wir bieten nur geprüfte Immobilien an.
Wir garantieren eine hohe Servicequalität.
Wir können Ihnen bei der Vermittlung von Unterkünften während der Besichtigungen helfen.
- Ich habe eine Immobilie aus dem Angebot ausgewählt
- Ich kontaktiere den Makler
- Ich unterschreibe einen Vertretungsvertrag - Details hier! (die Unterzeichnung des Vertrags ist gesetzlich vorgeschrieben)
- Ich richte eine OIB ein - Details hier (die Einrichtung ist gesetzlich vorgeschrieben)
- Besichtigungen vor Ort
- Unterzeichnung der Reservierung, des Kaufvertrags