ISTRIEN, ŽMINJ - Baugrundstück mit Genehmigung und Projekt
| Registrationsnummer | DN-45108 |
| Art des Angebots | Verkauf |
| Kategorie | Bauland |
| Bezirk | Istarska |
| Gemeindeteil | Žminj |
| Preis | 98 700 € |
| Preis pro m2 | 148 €/m² |
| Gesamtfläche | 665 m² |
| Entfernung vom meer | 20 000 m |
| Wasser |
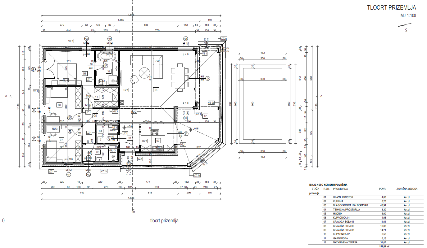
ISTRIEN, ŽMINJ – Baugrundstück mit Baugenehmigung und Projekt In einem kleinen, ruhigen istrischen Dorf, nur 6 Kilometer von Žminj entfernt, bietet dieses 665 m² große Grundstück eine außergewöhnliche Gelegenheit für alle, die ein fertiges Projekt mit Baugenehmigung suchen. Für das Baugrundstück liegt eine Baugenehmigung vor, und es existiert ein fertiges Projekt für ein modernes Haus mit Außenpool. Die Netto-Nutzfläche der Gebäude beträgt 151 m². Die Gebühren für Strom, Wasser und Gas sind vollständig bezahlt, sodass der Bau sofort beginnen kann. Die Lage ist einer der größten Vorteile dieser Immobilie. Die Umgebung von Žminj ist bekannt für ihre Ruhe, die authentische istrische Atmosphäre und die wunderschöne Landschaft. Die Nähe zu Rovinj, Bale, Pazin und anderen beliebten Orten macht dieses Grundstück zur perfekten Wahl für Investoren, die eine sichere und rentable Anlage suchen, aber auch für Familien, die sich ein eigenes Zuhause in Istrien inmitten der Natur wünschen. Für weitere Informationen und zur Vereinbarung einer Tour kontaktieren Sie uns bitte.
Bei allen unseren Angeboten sind die Preise identisch mit dem Direktkauf bei der Agentur/dem Entwickler in Kroatien, da wir der offizielle Vertreter dieser Agenturen auf dem tschechischen, slowakischen, deutschen und österreichischen Markt sind. Dies gilt ohne zusätzliche Zuschläge für deutschsprachige Dienstleistungen.
Sehr geehrte Kunden, die Besichtigung von Immobilien, die Mitteilung der Lage und andere detaillierte Informationen sind nur mit einem unterzeichneten Vermittlungsvertrag möglich, der die Grundlage für weitere Aktionen wie den Kauf einer Immobilie bildet. Alles steht im Einklang mit dem Gesetz über die Vermittlung beim Kauf von Immobilien. Der Käufer zahlt eine gesetzliche Vermittlungsprovision in Höhe von 3% (+ MwSt.) des vereinbarten Preises, und zwar nur im Falle des Kaufs der Immobilie. Sollte der Kauf nicht zustande kommen, ist der Vertrag für Sie nicht bindend und wird annulliert. Wenn Sie ernsthaft an der Immobilie interessiert sind, senden wir Ihnen den Vertrag auf Anfrage zu.
Wir werden Ihnen innerhalb von 24 Stunden antworten.
Wir bieten nur geprüfte Immobilien an.
Wir garantieren eine hohe Servicequalität.
Wir können Ihnen bei der Vermittlung von Unterkünften während der Besichtigungen helfen.
- Ich habe eine Immobilie aus dem Angebot ausgewählt
- Ich kontaktiere den Makler
- Ich unterschreibe einen Vertretungsvertrag - Details hier! (die Unterzeichnung des Vertrags ist gesetzlich vorgeschrieben)
- Ich richte eine OIB ein - Details hier (die Einrichtung ist gesetzlich vorgeschrieben)
- Besichtigungen vor Ort
- Unterzeichnung der Reservierung, des Kaufvertrags