KASTAV, ZENTRUM - Baugrundstück 805m2 MIT BAUGENEHMIGUNG!!! mit Meerblick für Wohngebäude - Appartements/Appartements/Familienvilla oder Villa zu vermieten - Urlaub mit Schwimmbad
| Registrationsnummer | DN-34913 |
| Art des Angebots | Verkauf |
| Kategorie | Bauland |
| Bezirk | Primorsko-goranska |
| Gemeindeteil | Kastav |
| Preis | 225 000 € |
| Preis pro m2 | 279 €/m² |
| Gesamtfläche | 805 m² |
| Strom |
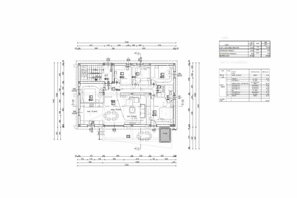
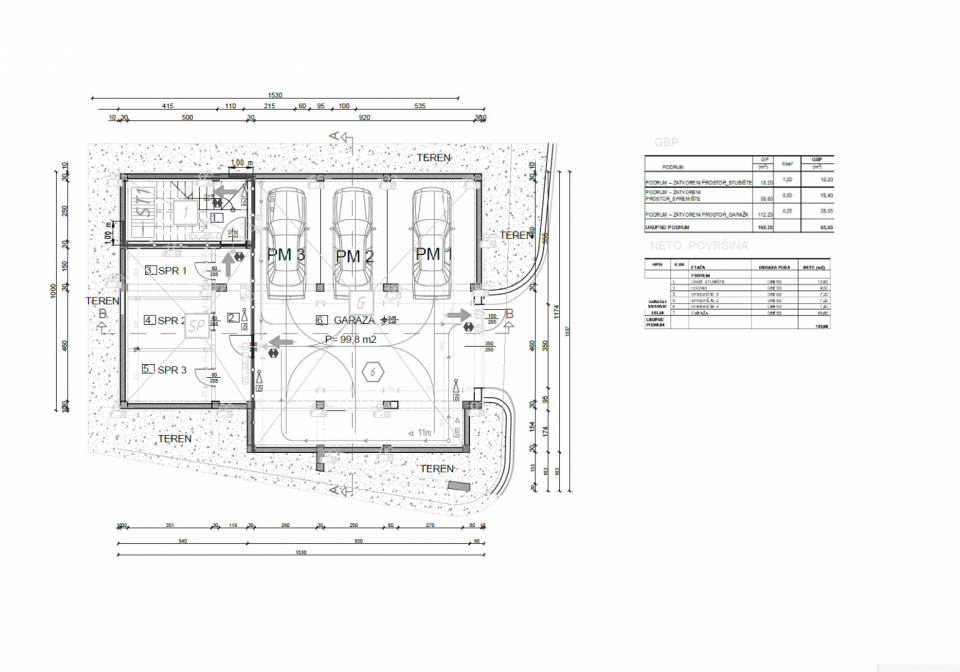
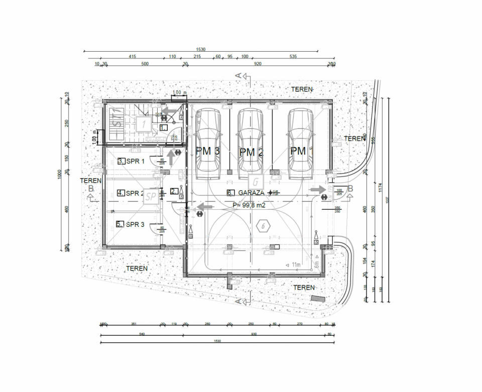
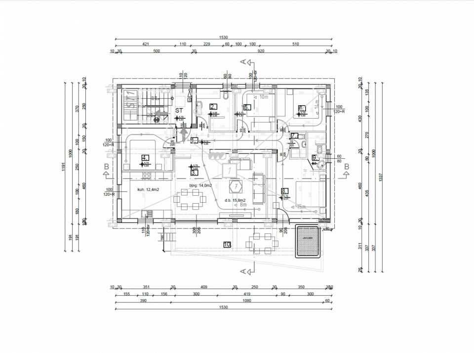
KASTAV, ZENTRUM - Baugrundstück 805m2 MIT BAUGENEHMIGUNG!!! mit Meerblick für Wohngebäude - Appartements/Appartements/Familienvilla oder Villa zu vermieten - Urlaub mit Schwimmbad. Das Baugrundstück hat einen freien Blick auf das Meer und eine südliche Ausrichtung Für das Grundstück liegt eine Baugenehmigung für ein Gebäude mit 3 Wohneinheiten vor – alle Beiträge für Nebenkosten, Wasser, Strom, Telefon und Internet sind bezahlt. Der Baubeginn ist angekündigt, Sie können sofort mit dem Hausbau beginnen! Das Feld liegt in einer ruhigen und friedlichen Lage und direkt neben der asphaltierten Straße. Alle Versorgungseinrichtungen vor Ort. Sauberes und ordentliches Anwesen. Das zukünftige Baugrundstück auf diesem Grundstück hätte bereits vom Erdgeschoss aus einen offenen Panoramablick auf das Meer, die gesamte Kvarner-Bucht und die Inseln! Hervorragende Infrastruktur im Umkreis von 150m bis 750m: Ausfahrt/Einfahrt zur Ringstraße, Busbahnhof, Post, Bank, Sportzentrum, Klinik, Apotheke, Restaurant, Schule, Kindergarten, Einkaufszentrum, Tankstelle... Eine gute Gelegenheit für Investoren, die sich mit dem Bau von Wohngebäuden – Wohnungen – befassen, aber auch für diejenigen, die ein Einfamilienhaus in einer ruhigen, friedlichen Umgebung bauen möchten. EINE EINZIGARTIGE IMMOBILIE IN TOLLER LAGE, DIE IHRE AUFMERKSAMKEIT AUF jeden Fall wert ist!!! KASTAV Die Stadt Kastav mit der Region Kastav steht für reiche Geschichte, geografische Vielfalt, interessante Architektur und ein einzigartiges touristisches Angebot! „Über dem Meer gelegen, Kanu-Soko“, wie der Dichter sagt, ähnlich wie alle Küstenstädte und doch anders; mit einer Seele in einem steinernen Nest, breit genug für alle, die bereit sind, es in seiner Gesamtheit zu erleben. Wie viele Städte am Schnittpunkt von Mitteleuropa und dem Mittelmeerraum verfügt Kastav über eine reiche Tradition und eine erkennbare Identität. Kastav war im Laufe seiner Geschichte das Verwaltungs-, Wirtschafts- und Kulturzentrum Istriens und der Region Primorje. Es war und bleibt eine Kinderstube des Volksbewusstseins, und selbst als sich in der Umgebung Städte zu entwickeln begannen, die viel größer waren als heute, gelang es ihm, seine Autonomie, Sprache und Bräuche zu bewahren.
Bei allen unseren Angeboten sind die Preise identisch mit dem Direktkauf bei der Agentur/dem Entwickler in Kroatien, da wir der offizielle Vertreter dieser Agenturen auf dem tschechischen, slowakischen, deutschen und österreichischen Markt sind. Dies gilt ohne zusätzliche Zuschläge für deutschsprachige Dienstleistungen.
Sehr geehrte Kunden, die Besichtigung von Immobilien, die Mitteilung der Lage und andere detaillierte Informationen sind nur mit einem unterzeichneten Vermittlungsvertrag möglich, der die Grundlage für weitere Aktionen wie den Kauf einer Immobilie bildet. Alles steht im Einklang mit dem Gesetz über die Vermittlung beim Kauf von Immobilien. Der Käufer zahlt eine gesetzliche Vermittlungsprovision in Höhe von 3% (+ MwSt.) des vereinbarten Preises, und zwar nur im Falle des Kaufs der Immobilie. Sollte der Kauf nicht zustande kommen, ist der Vertrag für Sie nicht bindend und wird annulliert. Wenn Sie ernsthaft an der Immobilie interessiert sind, senden wir Ihnen den Vertrag auf Anfrage zu.
Wir werden Ihnen innerhalb von 24 Stunden antworten.
Wir bieten nur geprüfte Immobilien an.
Wir garantieren eine hohe Servicequalität.
Wir können Ihnen bei der Vermittlung von Unterkünften während der Besichtigungen helfen.
- Ich habe eine Immobilie aus dem Angebot ausgewählt
- Ich kontaktiere den Makler
- Ich unterschreibe einen Vertretungsvertrag - Details hier! (die Unterzeichnung des Vertrags ist gesetzlich vorgeschrieben)
- Ich richte eine OIB ein - Details hier (die Einrichtung ist gesetzlich vorgeschrieben)
- Besichtigungen vor Ort
- Unterzeichnung der Reservierung, des Kaufvertrags