KVARNER, KOLAVIĆI - Baugrundstück mit Meerblick, 751 m²
| Registrationsnummer | DN-47020 |
| Art des Angebots | Verkauf |
| Kategorie | Bauland |
| Bezirk | Primorsko-goranska |
| Gemeindeteil | Opatija |
| Preis | 310 000 € |
| Preis pro m2 | 412 €/m² |
| Gesamtfläche | 751 m² |
| Entfernung vom meer | 5 000 m |
| Strom | |
| Wasser | |
| Klimaanlage |
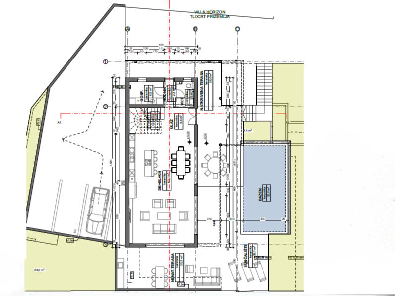
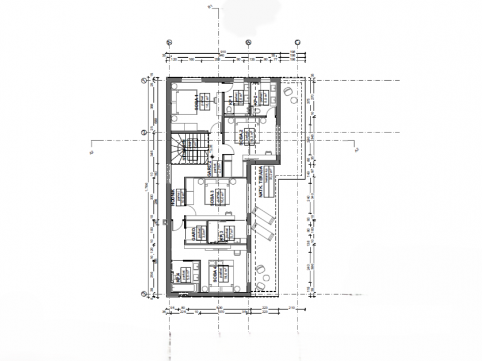
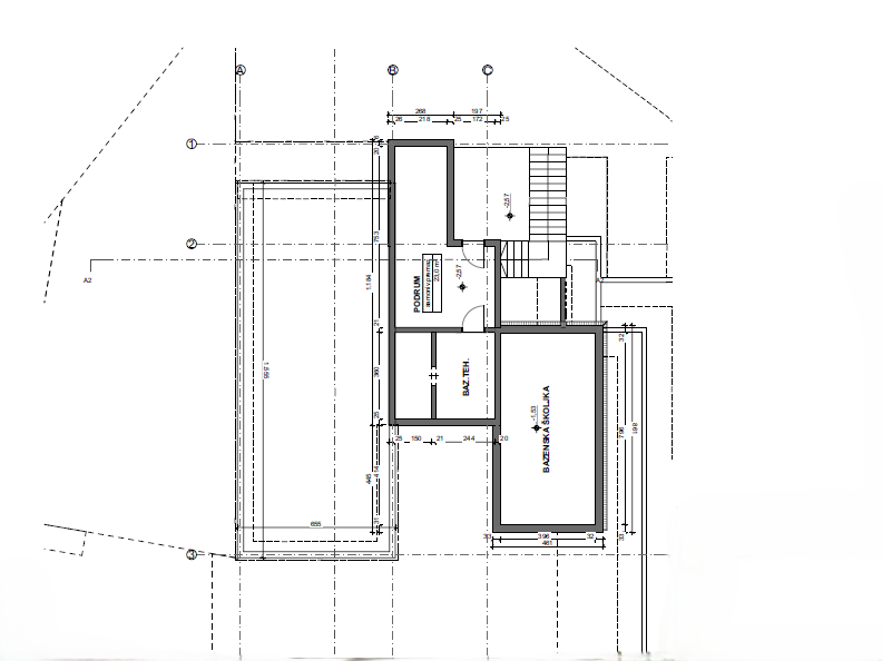
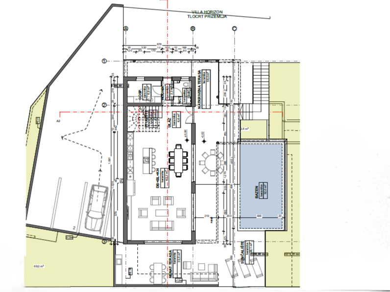
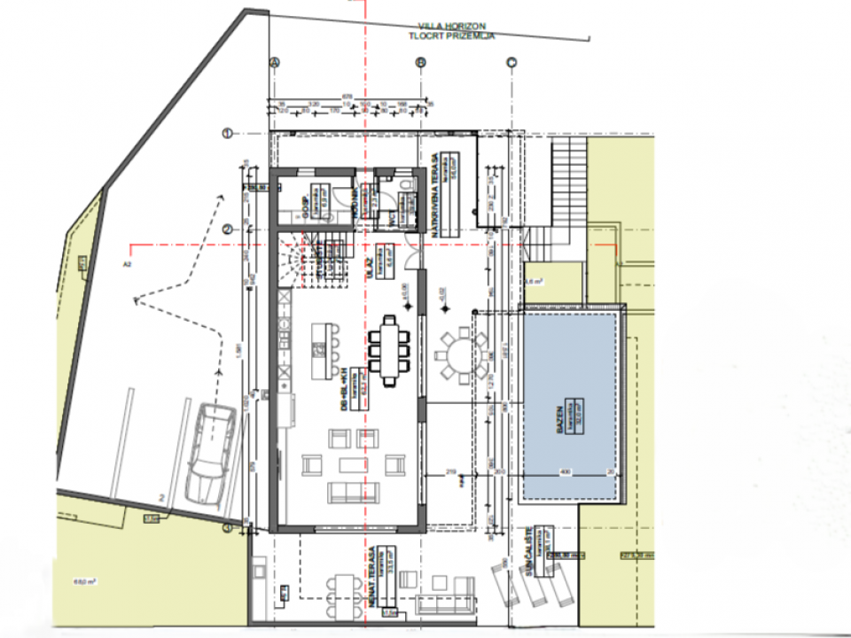
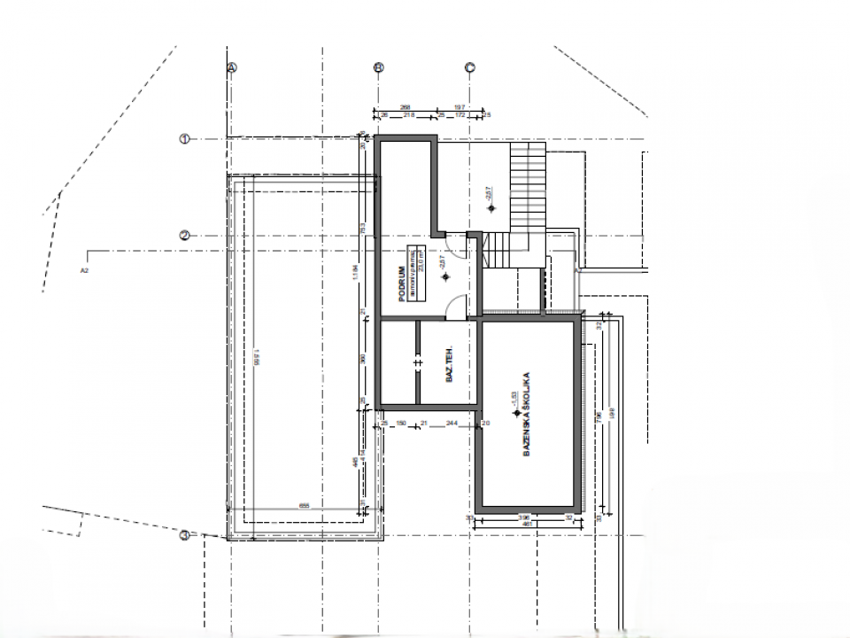
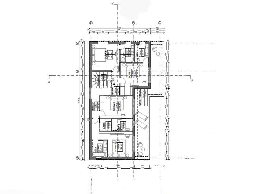
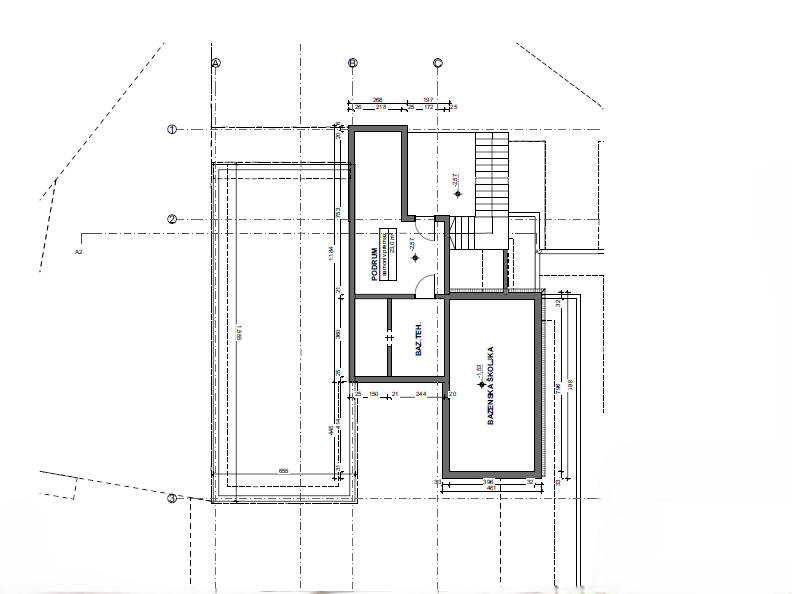
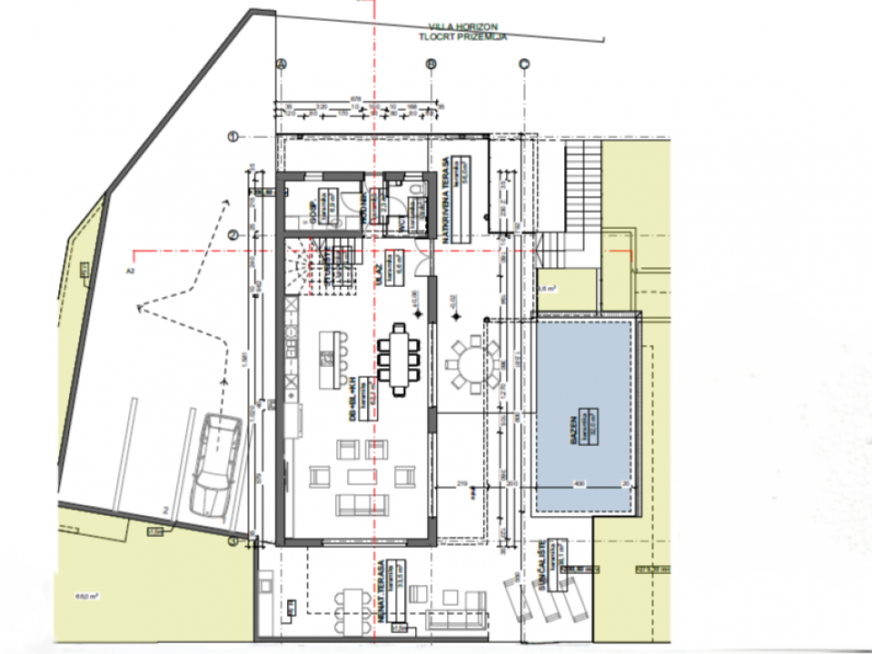
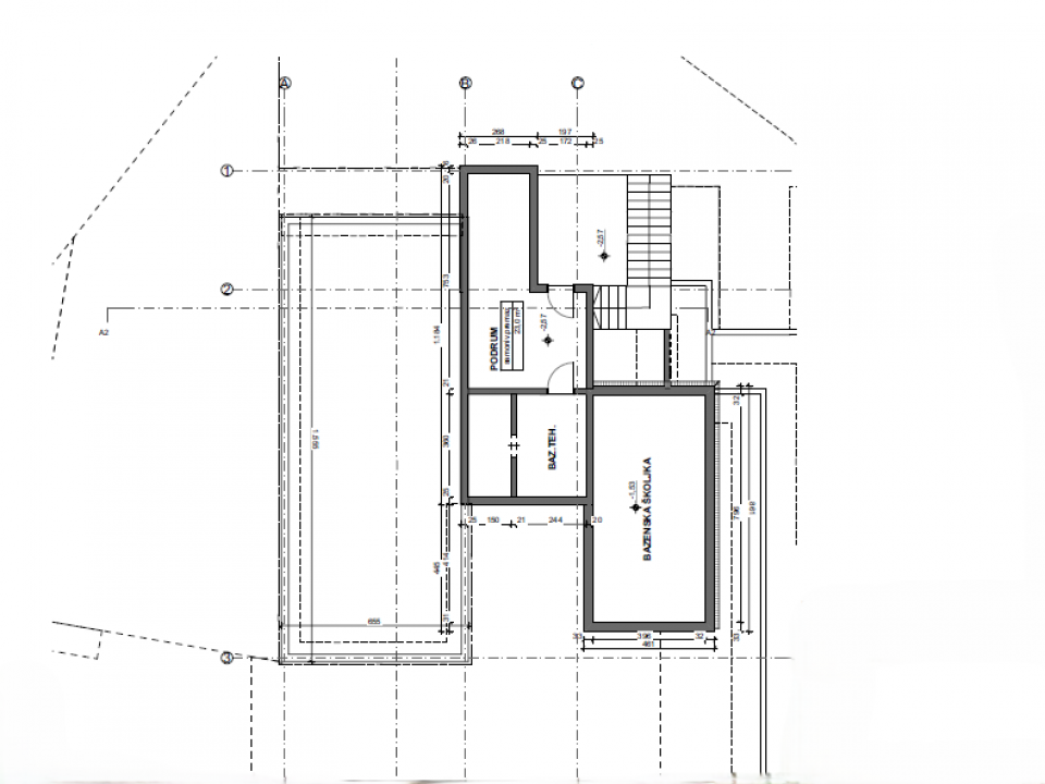
KVARNER, KOLAVIĆI – Baugrundstück mit Meerblick, 751 m² DUX Sales präsentiert eine einmalige Gelegenheit! Zum Verkauf steht ein exklusives Baugrundstück mit Projekt und gültiger Baugenehmigung für eine Luxusvilla. Es befindet sich in einer außergewöhnlich ruhigen und attraktiven Lage oberhalb von Opatija, in der Ortschaft Kolavići. Diese exklusive Mikrolage mit nur etwa zwanzig Häusern bietet absolute Privatsphäre und Ruhe und liegt gleichzeitig nur 1 km Luftlinie vom Zentrum von Opatija entfernt (ca. 9 km mit dem Auto). Die Zufahrt erfolgt über den Tunnel Rijeka-Učka, zukünftige Verkehrsverbindungen ins Zentrum von Opatija sind geplant. Das 751 m² große Grundstück ist nach Südosten ausgerichtet und bietet einen freien Panoramablick auf das Meer, Opatija, Rijeka und die gesamte Kvarner Bucht. Das leicht abfallende Gelände ermöglicht eine ideale Positionierung des Gebäudes und optimale Nutzung des natürlichen Lichts. Auf dem Grundstück soll eine moderne Stadtvilla mit einer Bruttogeschossfläche von 242,60 m², zusätzlichen 144,25 m² Terrassen und einem 32,00 m² großen Infinity-Pool entstehen. Das Haus erstreckt sich über drei Etagen (Untergeschoss, Erdgeschoss und Obergeschoss) und erfüllt die Kriterien für eine 5-Sterne-Kategorisierung. Im Erdgeschoss befindet sich ein großzügiger, offener Wohnbereich mit Wohnzimmer, Küche und Esszimmer, der direkten Zugang zu den Terrassen, der Sonnenterrasse und dem beheizten Infinity-Pool mit Blick auf die Kvarner Bucht bietet. Große Glaswände sorgen für viel Licht und eine fließende Verbindung zwischen Innen- und Außenbereich. Auf der Terrasse ist außerdem eine Sommerküche mit angrenzendem Aufenthaltsbereich geplant. Im Obergeschoss befinden sich vier luxuriöse Schlafzimmer, jeweils mit eigenem Bad. Drei der Schlafzimmer bieten Zugang zu einer überdachten Terrasse mit Panoramablick auf das Meer. Das Untergeschoss dient als Lager- und Technikraum und beherbergt unter anderem einen Raum für die Poolausrüstung. Das Haus liegt zentral auf dem Grundstück, umgeben von Grün, mit gesichertem Parkplatz im unteren Bereich und direktem Zugang zum Haus. Die gesamte Infrastruktur (Wasser, Strom, Abwasser, Telefon) ist bereits vorhanden, und die Zufahrtsstraße ist asphaltiert. Diese Immobilie stellt eine seltene Gelegenheit auf dem Markt dar – sie ist ideal für Käufer, die eine Luxusvilla in einer der begehrtesten Lagen der Kvarner-Region suchen, aber auch für Investoren, die ein hochwertiges Projekt mit großem Marktpotenzial realisieren möchten. Die kommunalen Abgaben sind bezahlt, und der Bau kann morgen beginnen. Um eine Besichtigung zu vereinbaren, kontaktieren Sie einen vertrauenswürdigen Makler – eine Beratung auf Deutsch ist möglich.
Bei allen unseren Angeboten sind die Preise identisch mit dem Direktkauf bei der Agentur/dem Entwickler in Kroatien, da wir der offizielle Vertreter dieser Agenturen auf dem tschechischen, slowakischen, deutschen und österreichischen Markt sind. Dies gilt ohne zusätzliche Zuschläge für deutschsprachige Dienstleistungen.
Sehr geehrte Kunden, die Besichtigung von Immobilien, die Mitteilung der Lage und andere detaillierte Informationen sind nur mit einem unterzeichneten Vermittlungsvertrag möglich, der die Grundlage für weitere Aktionen wie den Kauf einer Immobilie bildet. Alles steht im Einklang mit dem Gesetz über die Vermittlung beim Kauf von Immobilien. Der Käufer zahlt eine gesetzliche Vermittlungsprovision in Höhe von 3% (+ MwSt.) des vereinbarten Preises, und zwar nur im Falle des Kaufs der Immobilie. Sollte der Kauf nicht zustande kommen, ist der Vertrag für Sie nicht bindend und wird annulliert. Wenn Sie ernsthaft an der Immobilie interessiert sind, senden wir Ihnen den Vertrag auf Anfrage zu.
Wir werden Ihnen innerhalb von 24 Stunden antworten.
Wir bieten nur geprüfte Immobilien an.
Wir garantieren eine hohe Servicequalität.
Wir können Ihnen bei der Vermittlung von Unterkünften während der Besichtigungen helfen.
- Ich habe eine Immobilie aus dem Angebot ausgewählt
- Ich kontaktiere den Makler
- Ich unterschreibe einen Vertretungsvertrag - Details hier! (die Unterzeichnung des Vertrags ist gesetzlich vorgeschrieben)
- Ich richte eine OIB ein - Details hier (die Einrichtung ist gesetzlich vorgeschrieben)
- Besichtigungen vor Ort
- Unterzeichnung der Reservierung, des Kaufvertrags