OPATIJA, IČIĆI - Grundstück für eine Villa mit Baugenehmigung 300m2 in Strandnähe und Opatija
| Registrationsnummer | DN-25359 |
| Art des Angebots | Verkauf |
| Kategorie | Bauland |
| Bezirk | Primorsko-goranska |
| Gemeindeteil | Opatija - Okolica |
| Preis | 300 000 € |
| Preis pro m2 | 219 €/m² |
| Gesamtfläche | 1 368 m² |
| Entfernung vom meer | 1 800 m |
| Strom | |
| Wasser | |
| Abfall |
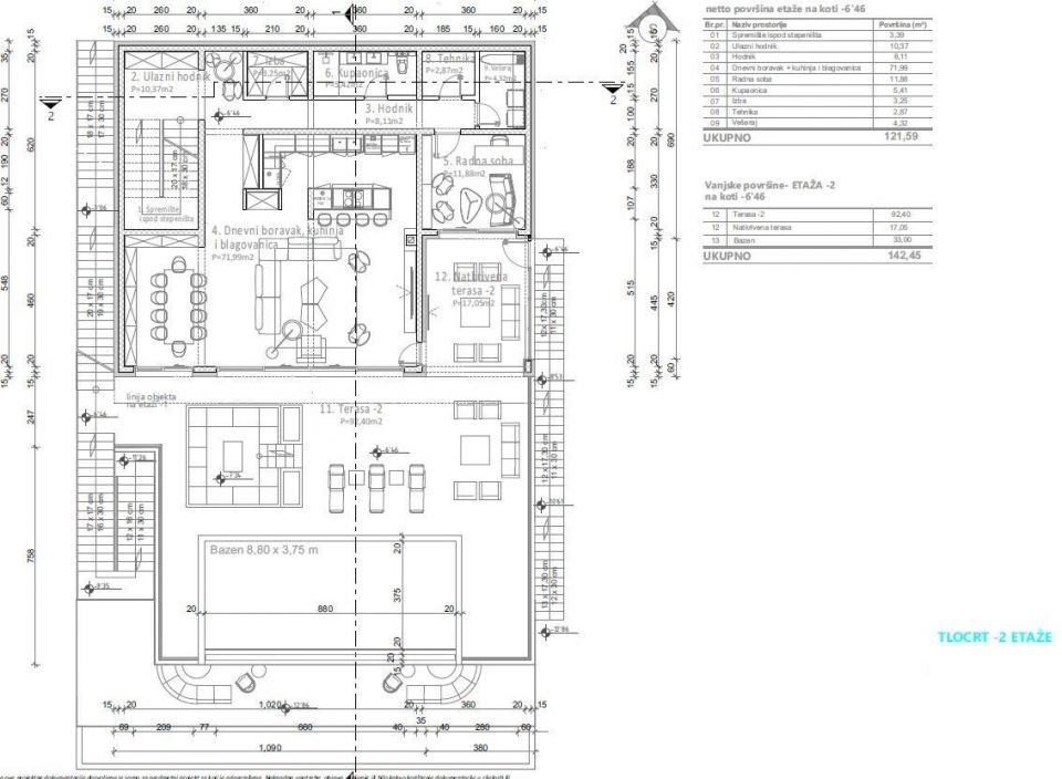
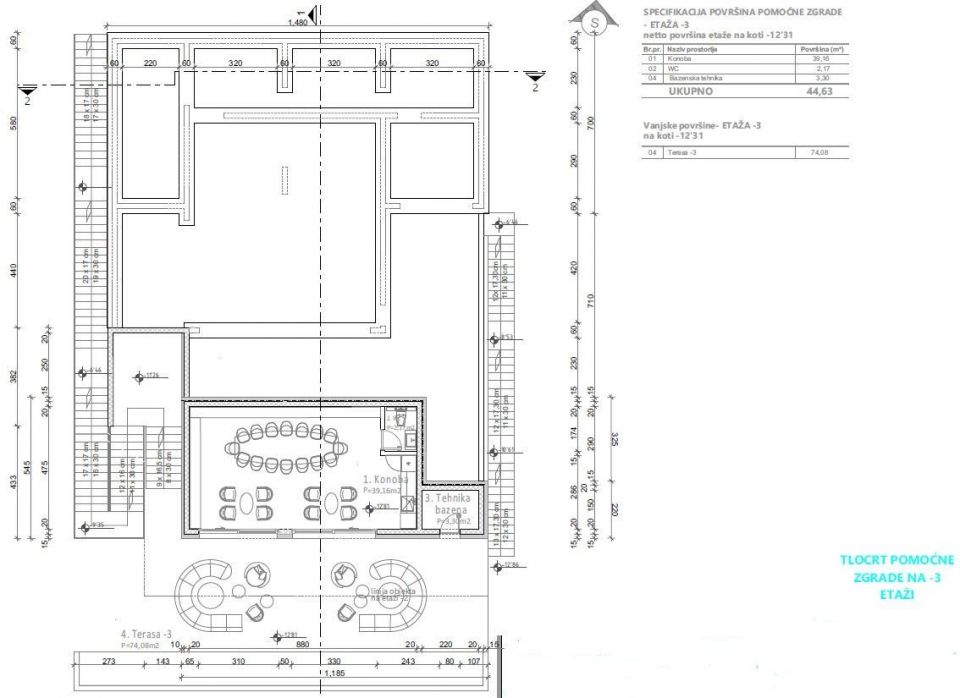
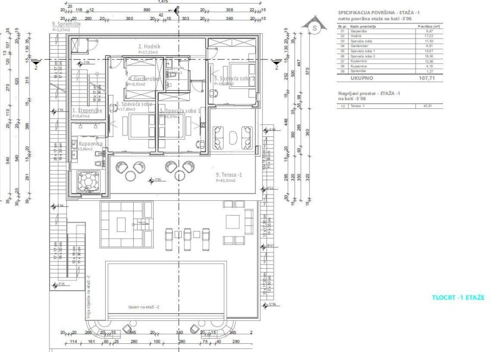
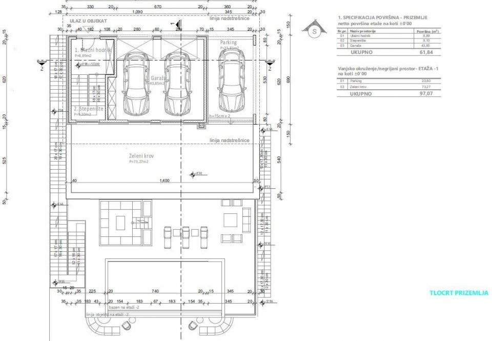
OPATIJA, IČIĆI – Grundstück für eine Villa mit einer Baugenehmigung von 300 m2 in der Nähe des Strandes und von Opatija. Im DUX-Angebot heben wir ein wunderschönes Grundstück in der Nähe von Opatija mit einer Baugenehmigung für eine Villa von 300 m2 hervor. Das Baugrundstück liegt leicht bergauf über dem Strand von Ičići, nur 3 Autominuten vom Strand entfernt. Das Baugrundstück ist 1386 m2 groß und es wurde eine Baugenehmigung für eine Villa auf 3 Etagen mit einer Nettowohnfläche von 287,75 m2 und einer Bruttofläche von 363,31 m2 erteilt. Der Eingang zur geplanten Villa erfolgt von oben, da das Gelände bergab verläuft, sodass sich der Eingang im Erdgeschoss befindet, weiter auf Etage -1 und Etage -2 + Keller. Das Haus besteht aus: Eingang – Erdgeschoss, Flur 75 m2, Etage – 1 – 3 Schlafzimmer, Badezimmer + Terrasse 135 m2, Etage – 2 – offenes Wohnzimmer 154 m2 + Pool und Umgebung 65 m2. Keller mit Taverne und Poolausstattung 45 m2. Die Lage des zukünftigen Hauses ist ideal für eine Villa, hochwertige und ruhige Umgebung, Luxushäuser in der Nachbarschaft, umgeben vom Grün von Učka und SCHÖNER DIREKTER BLICK AUF DAS MEER und die gesamte Kvarner-Bucht. Um das Land herum verläuft ein Grüngürtel. Der Fußweg bergab zum Meer dauert 10 Minuten, bergauf 15 Minuten. Die Fahrt zum Strand dauert 3 Minuten und das Zentrum von Opatija ist nur 8 Minuten mit dem Auto entfernt. Das Projekt wurde sehr exklusiv konzipiert, für eine hochwertige Wohnnutzung mit hochwertigen Materialien. Es gibt Strom, Wasser und eine ausgezeichnete Straße zum Land. Der Bau kann morgen beginnen!
Bei allen unseren Angeboten sind die Preise identisch mit dem Direktkauf bei der Agentur/dem Entwickler in Kroatien, da wir der offizielle Vertreter dieser Agenturen auf dem tschechischen, slowakischen, deutschen und österreichischen Markt sind. Dies gilt ohne zusätzliche Zuschläge für deutschsprachige Dienstleistungen.
Sehr geehrte Kunden, die Besichtigung von Immobilien, die Mitteilung der Lage und andere detaillierte Informationen sind nur mit einem unterzeichneten Vermittlungsvertrag möglich, der die Grundlage für weitere Aktionen wie den Kauf einer Immobilie bildet. Alles steht im Einklang mit dem Gesetz über die Vermittlung beim Kauf von Immobilien. Der Käufer zahlt eine gesetzliche Vermittlungsprovision in Höhe von 3% (+ MwSt.) des vereinbarten Preises, und zwar nur im Falle des Kaufs der Immobilie. Sollte der Kauf nicht zustande kommen, ist der Vertrag für Sie nicht bindend und wird annulliert. Wenn Sie ernsthaft an der Immobilie interessiert sind, senden wir Ihnen den Vertrag auf Anfrage zu.
Wir werden Ihnen innerhalb von 24 Stunden antworten.
Wir bieten nur geprüfte Immobilien an.
Wir garantieren eine hohe Servicequalität.
Wir können Ihnen bei der Vermittlung von Unterkünften während der Besichtigungen helfen.
- Ich habe eine Immobilie aus dem Angebot ausgewählt
- Ich kontaktiere den Makler
- Ich unterschreibe einen Vertretungsvertrag - Details hier! (die Unterzeichnung des Vertrags ist gesetzlich vorgeschrieben)
- Ich richte eine OIB ein - Details hier (die Einrichtung ist gesetzlich vorgeschrieben)
- Besichtigungen vor Ort
- Unterzeichnung der Reservierung, des Kaufvertrags