OPATIJA, MOŠĆENIČKA DRAGA – Baugrundstück 970 m² MIT BAUGENEHMIGUNG!! für eine Villa mit Pool und Meerblick
| Registrationsnummer | DN-36916 |
| Art des Angebots | Verkauf |
| Kategorie | Bauland |
| Bezirk | Primorsko-goranska |
| Gemeindeteil | Mošćenička Draga |
| Preis | 325 000 € |
| Preis pro m2 | 335 €/m² |
| Gesamtfläche | 970 m² |
| Strom | |
| Wasser |
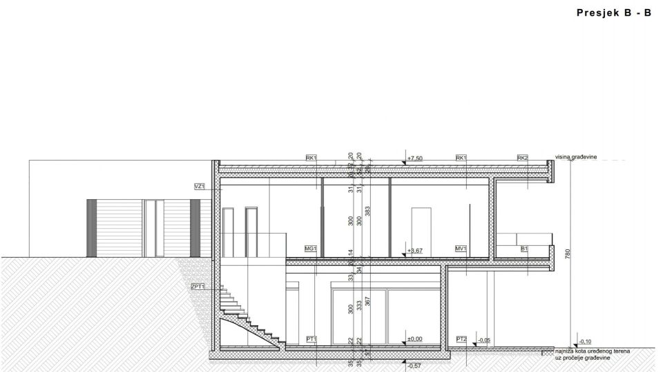
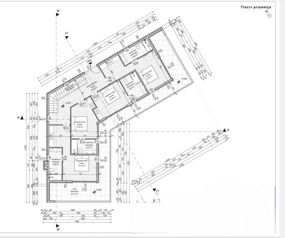
OPATIJA RIVIERA – Grundstück mit bestehender Baugenehmigung für den Bau einer Luxusvilla mit Swimmingpool und Meerblick Zum Verkauf steht ein attraktives Baugrundstück von 970 m² in Mošćenička Draga, ideal für den Bau einer Luxusvilla mit Swimmingpool. Das Grundstück wird mit vollständiger Projektdokumentation und einer gültigen Baugenehmigung verkauft. Die Nebenkosten- und Wassergebühren sind bereits bezahlt, sodass mit dem Bau sofort begonnen werden kann. Das Grundstück befindet sich in ruhiger Lage, umgeben von Grün und ist nur 1 km vom Zentrum von Mošćenička Draga und den schönsten Stränden der Riviera von Opatija entfernt. Die Villa wird sich über zwei Etagen erstrecken, mit einer Gesamtfläche von 250 m², mit einer 53 m² großen Loggia und einer 71 m² großen überdachten Terrasse. Das Erdgeschoss der Villa verfügt über ein Wohnzimmer, eine Küche mit Esszimmer, eine Sauna, ein Badezimmer, eine Waschküche, einen Maschinenraum und eine überdachte Terrasse, während sich im Obergeschoss vier Schlafzimmer mit jeweils eigenem Badezimmer befinden. Vor dem Haus entsteht ein 50 m² großer Swimmingpool. Die Villa ist so konzipiert, dass sie alle Kriterien einer 5-Sterne-Kategorisierung erfüllt. Zum Heizen ist eine Fußbodenheizung mittels elektrischer Wärmepumpe vorgesehen, für die Kühlung sorgt eine autarke Multisplit-Klimaanlage. Das Gelände ist komplett geräumt und bebaubar, das Grundstück sauber und ordentlich. Sämtliche Versorgungsanschlüsse sind bis auf das Gelände geführt, die Zufahrt zum Grundstück erfolgt über eine Asphaltstraße. Das Grundstück bietet einen wunderschönen Blick auf das Meer und die Insel Cres und befindet sich in einer ruhigen und friedlichen Lage, was es ideal für den Bau eines luxuriösen Ferienhauses oder einer Familienvilla macht. Es besteht die Möglichkeit, ein Nachbargrundstück zu erwerben, für das ebenfalls eine Baugenehmigung für ein identisches Gebäude vorliegt, was eine hervorragende Gelegenheit für Investoren darstellt, die Luxusvillen zur Miete bauen möchten. Das Anwesen liegt 1,2 km Luftlinie vom Meer entfernt und 1,4 km mit dem Auto (ca. 4 Autominuten), was diesen Standort für eine Investition sehr attraktiv macht. Vereinbaren Sie zur Objektbesichtigung einen telefonischen Termin mit einem Makler Ihres Vertrauens - Beratung auch auf Deutsch möglich.
Bei allen unseren Angeboten sind die Preise identisch mit dem Direktkauf bei der Agentur/dem Entwickler in Kroatien, da wir der offizielle Vertreter dieser Agenturen auf dem tschechischen, slowakischen, deutschen und österreichischen Markt sind. Dies gilt ohne zusätzliche Zuschläge für deutschsprachige Dienstleistungen.
Sehr geehrte Kunden, die Besichtigung von Immobilien, die Mitteilung der Lage und andere detaillierte Informationen sind nur mit einem unterzeichneten Vermittlungsvertrag möglich, der die Grundlage für weitere Aktionen wie den Kauf einer Immobilie bildet. Alles steht im Einklang mit dem Gesetz über die Vermittlung beim Kauf von Immobilien. Der Käufer zahlt eine gesetzliche Vermittlungsprovision in Höhe von 3% (+ MwSt.) des vereinbarten Preises, und zwar nur im Falle des Kaufs der Immobilie. Sollte der Kauf nicht zustande kommen, ist der Vertrag für Sie nicht bindend und wird annulliert. Wenn Sie ernsthaft an der Immobilie interessiert sind, senden wir Ihnen den Vertrag auf Anfrage zu.
Wir werden Ihnen innerhalb von 24 Stunden antworten.
Wir bieten nur geprüfte Immobilien an.
Wir garantieren eine hohe Servicequalität.
Wir können Ihnen bei der Vermittlung von Unterkünften während der Besichtigungen helfen.
- Ich habe eine Immobilie aus dem Angebot ausgewählt
- Ich kontaktiere den Makler
- Ich unterschreibe einen Vertretungsvertrag - Details hier! (die Unterzeichnung des Vertrags ist gesetzlich vorgeschrieben)
- Ich richte eine OIB ein - Details hier (die Einrichtung ist gesetzlich vorgeschrieben)
- Besichtigungen vor Ort
- Unterzeichnung der Reservierung, des Kaufvertrags