OPATIJA, PAVLOVAC - zweistöckige Wohnung 145m2 mit Dachterrasse in einem neuen Gebäude, in der Nähe von Opatija, Meerblick
| Registrationsnummer | DN-24553 |
| Art des Angebots | Verkauf |
| Kategorie | Appartements |
| Bezirk | Primorsko-goranska |
| Gemeindeteil | Matulji |
| Preis | 459 000 € |
| Gesamtfläche | 141 m² |
| Wohnfläche (Wohnung) | 141 m² |
| Entfernung vom meer | 2 000 m |
| Strom | |
| Wasser | |
| Abfall | |
| Klimaanlage | |
| Heizung | ano |
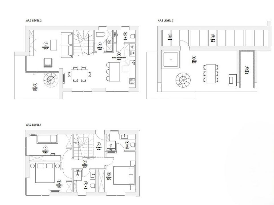
OPATIJA, PAVLOVAC - zweistöckige Wohnung 145 m2 mit Dachterrasse in einem Neubau, in der Nähe von Opatija, Meerblick Im DUX-Angebot heben wir ein hochwertiges Neubau nur wenige Minuten vom Zentrum von Opatija entfernt. Es handelt sich um einen Neubau mit insgesamt 3 Wohnungen mit Blick auf das Meer und die gesamte Kvarner-Bucht. Die Wohnung Nummer 2 befindet sich im ersten Stock. Es besteht aus einem Flur mit Treppe, einem Hauptschlafzimmer mit eigenem Bad und zwei weiteren Schlafzimmern, die sich ein gemeinsames Bad teilen. Im zweiten Stock gibt es einen Abstellraum, eine Toilette, ein „Open Space“-Wohnzimmer mit Küche und ein Esszimmer mit Zugang zu einem 12 m² großen Balkon mit Blick auf das Meer. Die Treppe vom Balkon führt in die dritte Etage, wo sich ein Abstellraum, ein Technikraum und eine luxuriöse 22 m² große DACHTERRASSE mit Panoramablick auf Opatija und die Kvarner-Bucht befinden. Das Anwesen verfügt über einen Parkplatz und das Gebäude liegt in einer Sackgasse. Schöner Ort. 5 Minuten vom Zentrum von Opatija und 15 Autominuten vom Zentrum von Rijeka entfernt. AUSGEZEICHNETE GELEGENHEIT zum Wohnen oder Investieren zum Zweck der touristischen Vermietung. Zusätzliche Vorteile: - Außenschreinerei aus Aluminium, die eine hervorragende Isolierung bietet - Heiz- und Kühlsystem mit Wärmepumpe - Einbruchhemmende Eingangstür - Hochwertige Materialien Diese Wohnung bietet die perfekte Balance zwischen Komfort, wunderschönem Meerblick und einer hervorragenden Lage eine ideale Wahl zum Wohnen oder Investieren. Der Flachbau des Gebäudes wird im Frühjahr 2024 abgeschlossen sein.
Bei allen unseren Angeboten sind die Preise identisch mit dem Direktkauf bei der Agentur/dem Entwickler in Kroatien, da wir der offizielle Vertreter dieser Agenturen auf dem tschechischen, slowakischen, deutschen und österreichischen Markt sind. Dies gilt ohne zusätzliche Zuschläge für deutschsprachige Dienstleistungen.
Sehr geehrte Kunden, die Besichtigung von Immobilien, die Mitteilung der Lage und andere detaillierte Informationen sind nur mit einem unterzeichneten Vermittlungsvertrag möglich, der die Grundlage für weitere Aktionen wie den Kauf einer Immobilie bildet. Alles steht im Einklang mit dem Gesetz über die Vermittlung beim Kauf von Immobilien. Der Käufer zahlt eine gesetzliche Vermittlungsprovision in Höhe von 3% (+ MwSt.) des vereinbarten Preises, und zwar nur im Falle des Kaufs der Immobilie. Sollte der Kauf nicht zustande kommen, ist der Vertrag für Sie nicht bindend und wird annulliert. Wenn Sie ernsthaft an der Immobilie interessiert sind, senden wir Ihnen den Vertrag auf Anfrage zu.
Wir werden Ihnen innerhalb von 24 Stunden antworten.
Wir bieten nur geprüfte Immobilien an.
Wir garantieren eine hohe Servicequalität.
Wir können Ihnen bei der Vermittlung von Unterkünften während der Besichtigungen helfen.
- Ich habe eine Immobilie aus dem Angebot ausgewählt
- Ich kontaktiere den Makler
- Ich unterschreibe einen Vertretungsvertrag - Details hier! (die Unterzeichnung des Vertrags ist gesetzlich vorgeschrieben)
- Ich richte eine OIB ein - Details hier (die Einrichtung ist gesetzlich vorgeschrieben)
- Besichtigungen vor Ort
- Unterzeichnung der Reservierung, des Kaufvertrags