OPATIJA, ZENTRUM - 3 Grundstücke für den Bau von 3 Villen mit Swimmingpool mit Baugenehmigung, Zentrum von Opatija
| Registrationsnummer | DN-24508 |
| Art des Angebots | Verkauf |
| Kategorie | Bauland |
| Bezirk | Primorsko-goranska |
| Gemeindeteil | Opatija |
| Preis | 3 000 000 € |
| Preis pro m2 | 1 047 €/m² |
| Gesamtfläche | 2 864 m² |
| Entfernung vom meer | 900 m |
| Strom | |
| Wasser | |
| Abfall |
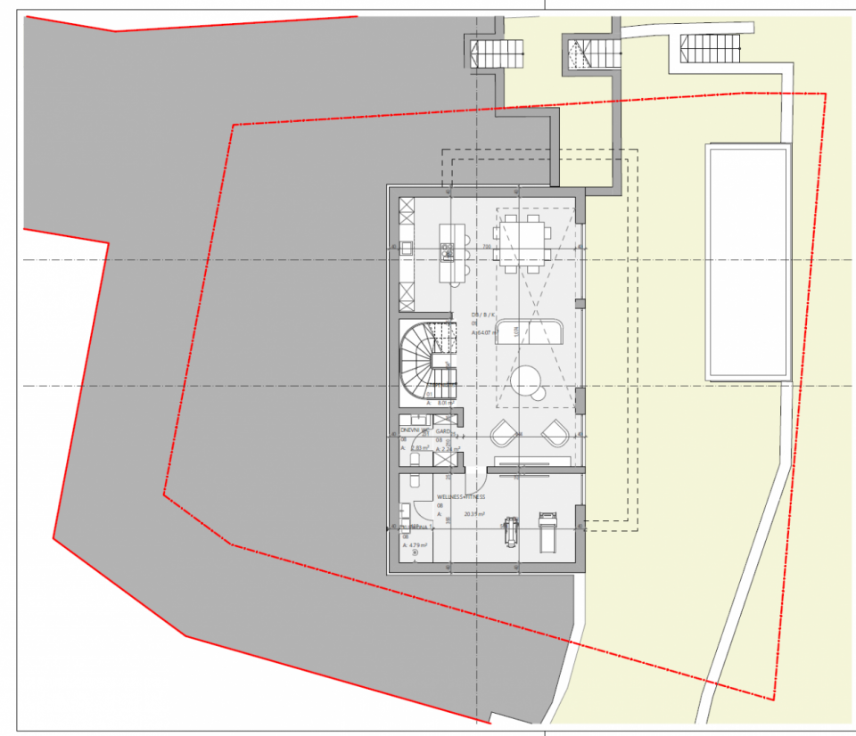
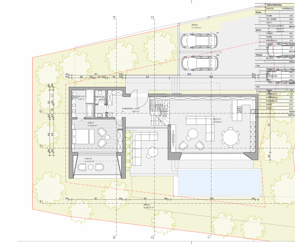
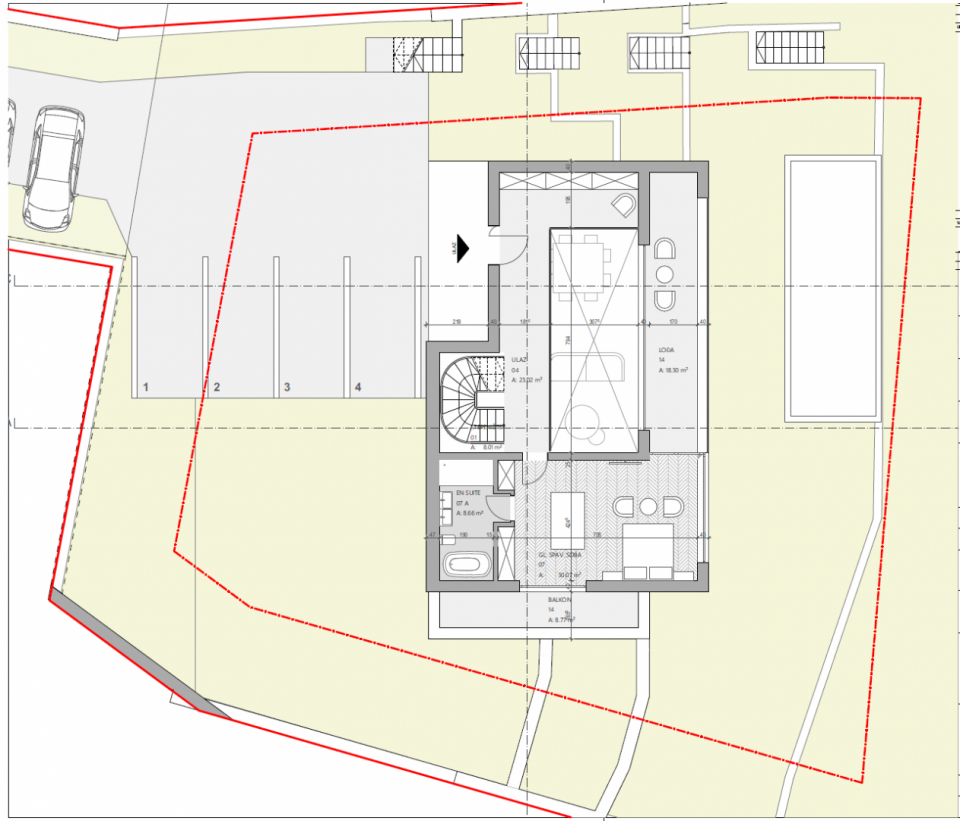
OPATIJA, ZENTRUM - 3 Grundstücke für den Bau von 3 Villen mit Swimmingpool mit Baugenehmigung, Zentrum von Opatija Aus dem Dux-Angebot heben wir insgesamt 2864 m2 Bauland direkt über dem Zentrum von Opatija mit Baugenehmigung hervor der Bau von 3 Villen mit Swimmingpool. Unglaublicher Meerblick, von links nach rechts freie Sicht. Die Baugrundstücke liegen direkt an der Nationalstraße und verfügen über eine fantastische Zufahrt. Baugrundstücke eignen sich ideal für den Bau einer Villenanlage mit Swimmingpool. Es ist wichtig zu betonen, dass sich die Grundstücke in einer exklusiven Siedlung oberhalb des Zentrums von Opatija befinden. Villa 1 – 399 m2 Wohnfläche auf einem Grundstück von 921 m2. Villa 2 – 402 m2 Wohnfläche auf einem Grundstück von 1008 m2. Villa 3 – 336 m2 Wohnfläche auf einem Grundstück von 929 m2. Wasser, Strom, Abwasser zum Grundstück. Die Luftlinie zum Meer beträgt 450 Meter. Die Geländekonfiguration verläuft sehr sanft bergauf, sodass keine großen Ausgrabungen erforderlich sind. Eigentum 1/1 ohne Belastungen. PERFEKT FÜR DEN BAU EINER VILLA MIT SCHWIMMBAD oder eines Gebäudes mit Wohnungen, in denen jeder eine Aussicht und Privatsphäre hat, die durch den geplanten Bau gewährleistet sind.
Bei allen unseren Angeboten sind die Preise identisch mit dem Direktkauf bei der Agentur/dem Entwickler in Kroatien, da wir der offizielle Vertreter dieser Agenturen auf dem tschechischen, slowakischen, deutschen und österreichischen Markt sind. Dies gilt ohne zusätzliche Zuschläge für deutschsprachige Dienstleistungen.
Sehr geehrte Kunden, die Besichtigung von Immobilien, die Mitteilung der Lage und andere detaillierte Informationen sind nur mit einem unterzeichneten Vermittlungsvertrag möglich, der die Grundlage für weitere Aktionen wie den Kauf einer Immobilie bildet. Alles steht im Einklang mit dem Gesetz über die Vermittlung beim Kauf von Immobilien. Der Käufer zahlt eine gesetzliche Vermittlungsprovision in Höhe von 3% (+ MwSt.) des vereinbarten Preises, und zwar nur im Falle des Kaufs der Immobilie. Sollte der Kauf nicht zustande kommen, ist der Vertrag für Sie nicht bindend und wird annulliert. Wenn Sie ernsthaft an der Immobilie interessiert sind, senden wir Ihnen den Vertrag auf Anfrage zu.
Wir werden Ihnen innerhalb von 24 Stunden antworten.
Wir bieten nur geprüfte Immobilien an.
Wir garantieren eine hohe Servicequalität.
Wir können Ihnen bei der Vermittlung von Unterkünften während der Besichtigungen helfen.
- Ich habe eine Immobilie aus dem Angebot ausgewählt
- Ich kontaktiere den Makler
- Ich unterschreibe einen Vertretungsvertrag - Details hier! (die Unterzeichnung des Vertrags ist gesetzlich vorgeschrieben)
- Ich richte eine OIB ein - Details hier (die Einrichtung ist gesetzlich vorgeschrieben)
- Besichtigungen vor Ort
- Unterzeichnung der Reservierung, des Kaufvertrags