OPATIJA, ZENTRUM – einzigartiges Anwesen, ein Meisterwerk österreichisch-ungarischer Architektur im Zentrum von Opatija
| Registrationsnummer | DN-38726 |
| Art des Angebots | Verkauf |
| Kategorie | Appartements |
| Bezirk | Primorsko-goranska |
| Gemeindeteil | Opatija |
| Preis | 1 600 000 € |
| Gesamtfläche | 108 m² |
| Wohnfläche (Wohnung) | 108 m² |
| Entfernung vom meer | 50 m |
| Strom | |
| Wasser | |
| Abfall | |
| Klimaanlage |
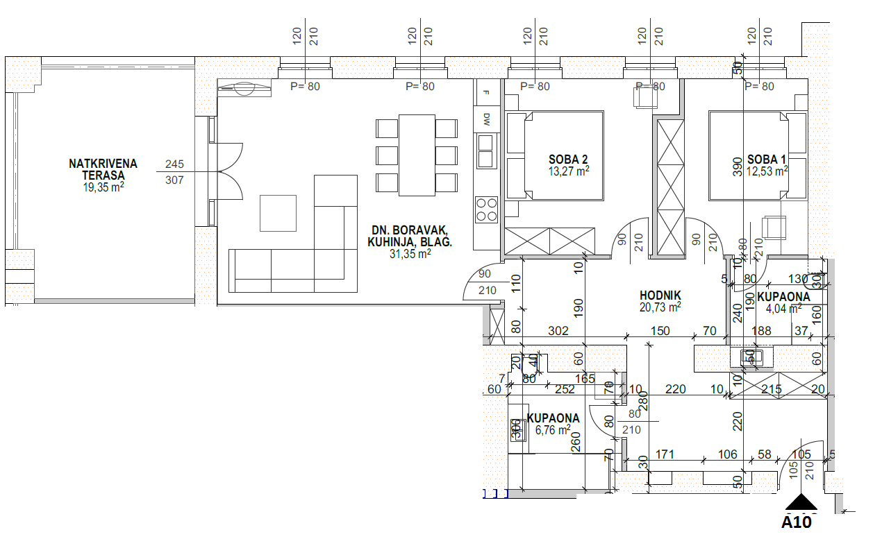
OPATIJA, ZENTRUM – ein einzigartiges Anwesen, ein Meisterwerk österreichisch-ungarischer Architektur im Zentrum von Opatija Mitten im Zentrum von Opatija, in einem repräsentativen österreichisch-ungarischen Gebäude, befindet sich dieses elegante und komplett renovierte Anwesen mit einer Fläche von 100 m². Die Wohnung liegt im zweiten Stock und besteht aus einem luftigen Wohnzimmer, einer modernen Küche mit Essbereich, zwei Schlafzimmern, zwei Badezimmern und einer zusätzlichen Gästetoilette. Hohe Decken, hochwertige Materialien und viel natürliches Licht schaffen ein anspruchsvolles und dennoch komfortables Ambiente. Das Innere der Wohnung ist sorgfältig in einem zeitgenössischen Stil gestaltet und verbindet Ästhetik mit Funktionalität. Der Stolz dieser Immobilie ist sicherlich die 25 m² große Terrasse, die einen wunderschönen Panoramablick auf die Kvarner Bucht bietet – ideal, um Ihren Morgenkaffee zu genießen, eine abendliche Ruhepause einzulegen oder gesellige Stunden mit Gästen zu verbringen. Die Entfernung zum Meer beträgt nur 30 Meter und alle wichtigen Annehmlichkeiten – die Promenade Lungomare, Restaurants, Geschäfte und kulturelle Attraktionen – sind buchstäblich nur ein paar Schritte entfernt. Die Wohnung befindet sich in einer außergewöhnlichen Lage mit hervorragender Verkehrsanbindung. Volosko erreichen Sie in zwei Autominuten, Lovran ist weniger als 10 Autominuten entfernt. Dieses Anwesen ist eine ideale Gelegenheit für alle, die eine Mischung aus historischer Eleganz und modernem Wohnen an der Adriaküste suchen. Zur Vereinbarung einer Immobilienbesichtigung rufen Sie einen Makler Ihres Vertrauens an
Bei allen unseren Angeboten sind die Preise identisch mit dem Direktkauf bei der Agentur/dem Entwickler in Kroatien, da wir der offizielle Vertreter dieser Agenturen auf dem tschechischen, slowakischen, deutschen und österreichischen Markt sind. Dies gilt ohne zusätzliche Zuschläge für deutschsprachige Dienstleistungen.
Sehr geehrte Kunden, die Besichtigung von Immobilien, die Mitteilung der Lage und andere detaillierte Informationen sind nur mit einem unterzeichneten Vermittlungsvertrag möglich, der die Grundlage für weitere Aktionen wie den Kauf einer Immobilie bildet. Alles steht im Einklang mit dem Gesetz über die Vermittlung beim Kauf von Immobilien. Der Käufer zahlt eine gesetzliche Vermittlungsprovision in Höhe von 3% (+ MwSt.) des vereinbarten Preises, und zwar nur im Falle des Kaufs der Immobilie. Sollte der Kauf nicht zustande kommen, ist der Vertrag für Sie nicht bindend und wird annulliert. Wenn Sie ernsthaft an der Immobilie interessiert sind, senden wir Ihnen den Vertrag auf Anfrage zu.
Wir werden Ihnen innerhalb von 24 Stunden antworten.
Wir bieten nur geprüfte Immobilien an.
Wir garantieren eine hohe Servicequalität.
Wir können Ihnen bei der Vermittlung von Unterkünften während der Besichtigungen helfen.
- Ich habe eine Immobilie aus dem Angebot ausgewählt
- Ich kontaktiere den Makler
- Ich unterschreibe einen Vertretungsvertrag - Details hier! (die Unterzeichnung des Vertrags ist gesetzlich vorgeschrieben)
- Ich richte eine OIB ein - Details hier (die Einrichtung ist gesetzlich vorgeschrieben)
- Besichtigungen vor Ort
- Unterzeichnung der Reservierung, des Kaufvertrags