OPATIJA, ZENTRUM – exklusives zweistöckiges Penthouse mit Pool auf dem Dach und einzigartigem Meerblick
| Registrationsnummer | DN-41261 |
| Art des Angebots | Verkauf |
| Kategorie | Appartements |
| Bezirk | Primorsko-goranska |
| Gemeindeteil | Opatija |
| Preis | 2 700 000 € |
| Gesamtfläche | 293 m² |
| Wohnfläche (Wohnung) | 293 m² |
| Entfernung vom meer | 430 m |
| Strom | |
| Wasser | |
| Abfall | |
| Klimaanlage | |
| Energieintensität | A - extrem wirtschaftlich |
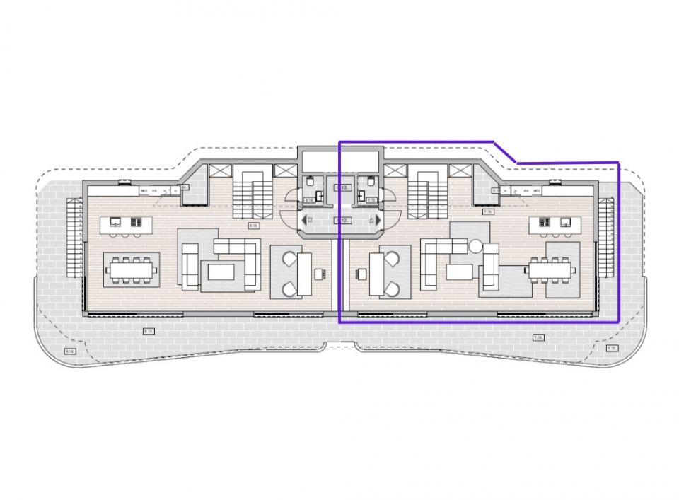
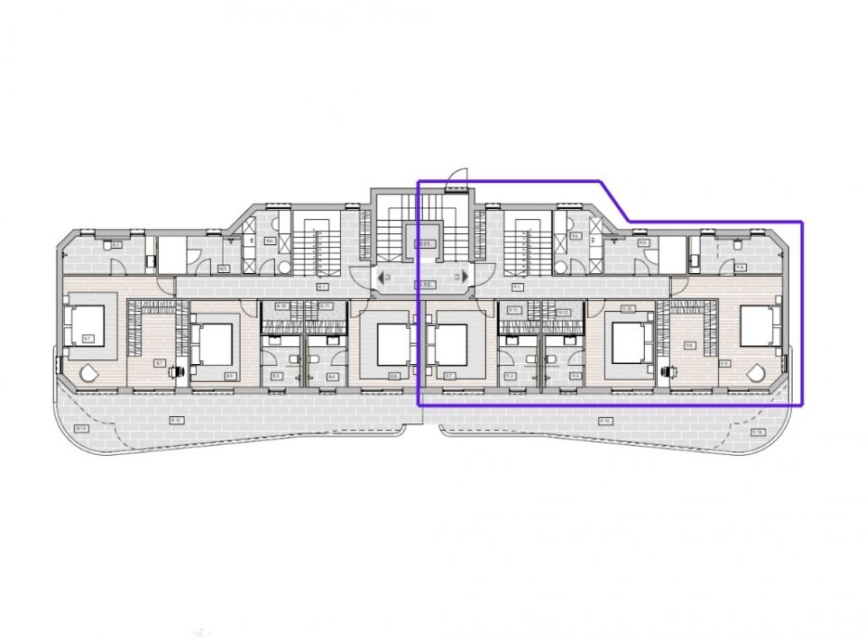
OPATIJA, ZENTRUM – Exklusives zweistöckiges Penthouse mit Dachpool und einzigartigem Meerblick ist ein erstklassiger Neubau, der sich derzeit als der dem Meer und dem Zentrum von Opatija am nächsten gelegene Neubau auf dem Markt hervorhebt. Dieses luxuriöse Gebäude liegt in einer ruhigen Sackgasse ohne Verkehr, was absolute Privatsphäre und Ruhe bietet. Gleichzeitig ist es ideal gelegen, sodass Sie das Zentrum von Opatija und die ersten Strände in nur wenigen Minuten zu Fuß erreichen. Die Wohnung S3 erstreckt sich über beeindruckende 293 m² und erstreckt sich über zwei Etagen – die zweite Etage und das Dachgeschoss – mit exklusivem Zugang zum Dach. Dieses zweistöckige Anwesen strahlt Luxus, Großzügigkeit und eine durchdachte Raumaufteilung aus. Von beiden Etagen, der Terrasse und dem privaten Dachpool aus bietet sich Meerblick. Die erste Etage ist offen gestaltet und verbindet Küche, Esszimmer und Wohnzimmer zu einer hellen und luftigen Einheit, die sich ideal für geselliges Beisammensein eignet. Auf derselben Etage befinden sich außerdem ein Gäste-WC und ein praktischer Abstellraum. Im zweiten Stock befinden sich drei geräumige Schlafzimmer, jedes mit eigenem Ankleidezimmer und luxuriösem Badezimmer, was maximale Privatsphäre und Komfort bietet. Hier gibt es auch einen zusätzlichen Abstellraum und eine Sauna, was die Exklusivität der Wohnung noch unterstreicht. Beide Etagen haben Zugang zu geräumigen Terrassen, die von jedem Zimmer aus zugänglich sind. Das Highlight dieser Immobilie ist ein privates Dach mit Swimmingpool und unvergesslichem Meerblick. Die Wohnung verfügt außerdem über einen Abstellraum im Keller des Gebäudes, was ihre Funktionalität und ihren Wert weiter steigert. Die Nettoverkaufsfläche der Wohnung mit Koeffizienten beträgt 293 m2 (brutto 424 m2) und zur Immobilie gehören drei zusätzliche Garagenstellplätze. Das Gebäude ist mit hochwertigen Materialien und Technologien ausgestattet: - Schüco-Aluminium-Tischlerei (Panoramaversion mit dünnen Profilen, getöntes Dreischichtglas) - erstklassige italienische Keramik - Wärmepumpe für jede Wohnung + Fußbodenheizung in der gesamten Wohnung - separate Multisplit-Klimaanlage in jedem Zimmer - hochwertige Sanitärkeramik, Fußböden und Innentüren - Aufzug - Garage mit hohen Decken - Abstellraum für jede Wohnung Besonders hervorzuheben ist, dass das Zentrum von Opatija oder der erste Strand über einen sehr sanften Abstieg in 5 Minuten bequem zu Fuß erreichbar sind, während es mit dem Auto buchstäblich 60 Sekunden dauert. Dies ist eine wirklich seltene Gelegenheit, eine Immobilie in Opatija zu kaufen, die eine Top-Lage, luxuriöse Ausstattung und tadellose Bauqualität vereint. Um eine Besichtigung der Immobilie zu vereinbaren, rufen Sie den Makler vertrauensvoll an
Bei allen unseren Angeboten sind die Preise identisch mit dem Direktkauf bei der Agentur/dem Entwickler in Kroatien, da wir der offizielle Vertreter dieser Agenturen auf dem tschechischen, slowakischen, deutschen und österreichischen Markt sind. Dies gilt ohne zusätzliche Zuschläge für deutschsprachige Dienstleistungen.
Sehr geehrte Kunden, die Besichtigung von Immobilien, die Mitteilung der Lage und andere detaillierte Informationen sind nur mit einem unterzeichneten Vermittlungsvertrag möglich, der die Grundlage für weitere Aktionen wie den Kauf einer Immobilie bildet. Alles steht im Einklang mit dem Gesetz über die Vermittlung beim Kauf von Immobilien. Der Käufer zahlt eine gesetzliche Vermittlungsprovision in Höhe von 3% (+ MwSt.) des vereinbarten Preises, und zwar nur im Falle des Kaufs der Immobilie. Sollte der Kauf nicht zustande kommen, ist der Vertrag für Sie nicht bindend und wird annulliert. Wenn Sie ernsthaft an der Immobilie interessiert sind, senden wir Ihnen den Vertrag auf Anfrage zu.
Wir werden Ihnen innerhalb von 24 Stunden antworten.
Wir bieten nur geprüfte Immobilien an.
Wir garantieren eine hohe Servicequalität.
Wir können Ihnen bei der Vermittlung von Unterkünften während der Besichtigungen helfen.
- Ich habe eine Immobilie aus dem Angebot ausgewählt
- Ich kontaktiere den Makler
- Ich unterschreibe einen Vertretungsvertrag - Details hier! (die Unterzeichnung des Vertrags ist gesetzlich vorgeschrieben)
- Ich richte eine OIB ein - Details hier (die Einrichtung ist gesetzlich vorgeschrieben)
- Besichtigungen vor Ort
- Unterzeichnung der Reservierung, des Kaufvertrags