OPATIJA, ZENTRUM - Grundstück 929m2 für Villa mit Pool mit Baugenehmigung, Zentrum von Opatija, Panoramablick
| Registrationsnummer | DN-24517 |
| Art des Angebots | Verkauf |
| Kategorie | Bauland |
| Bezirk | Primorsko-goranska |
| Gemeindeteil | Opatija |
| Preis | 1 000 000 € |
| Preis pro m2 | 1 076 €/m² |
| Gesamtfläche | 929 m² |
| Entfernung vom meer | 800 m |
| Strom | |
| Wasser | |
| Abfall |
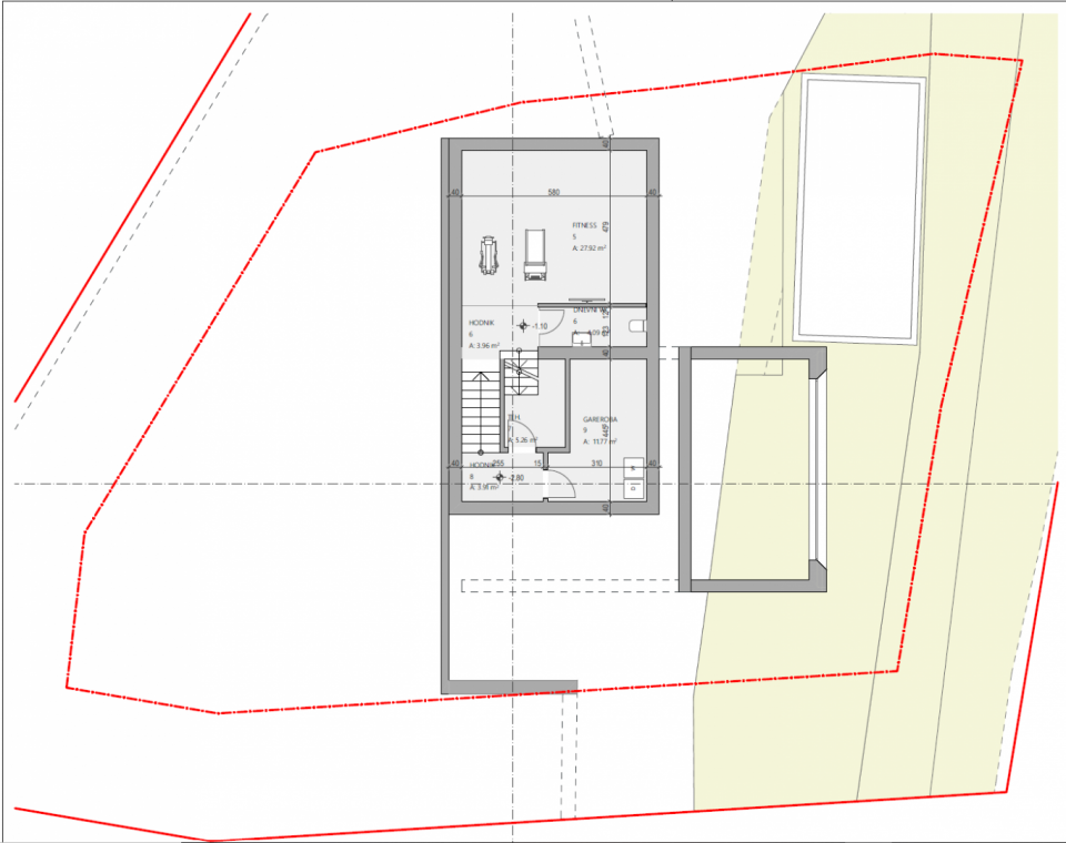
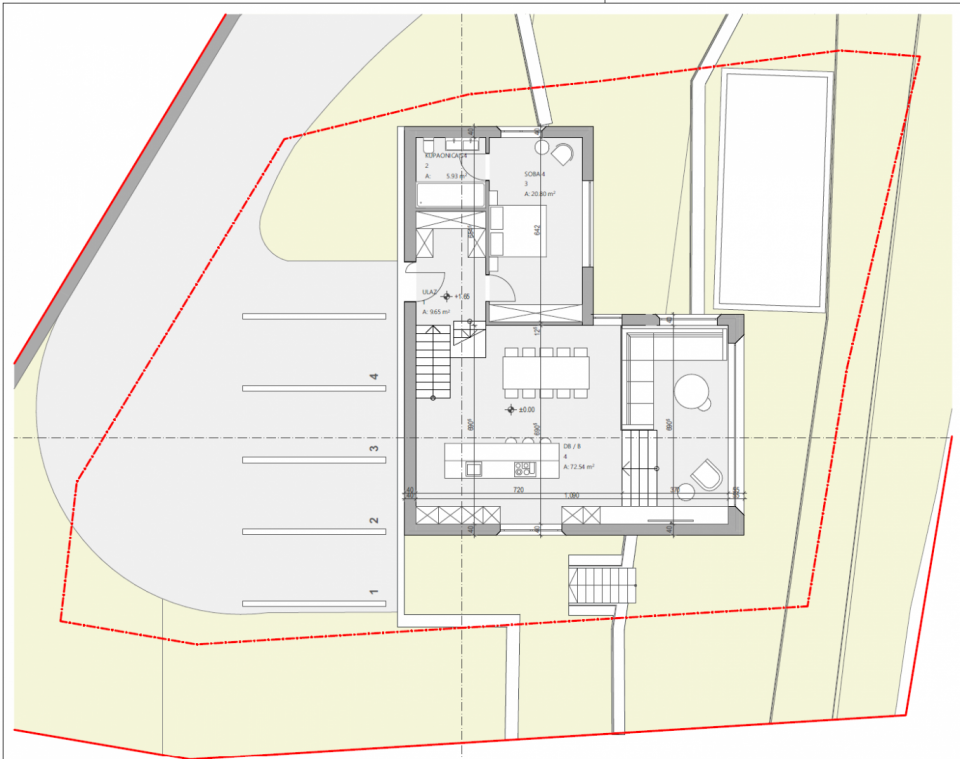
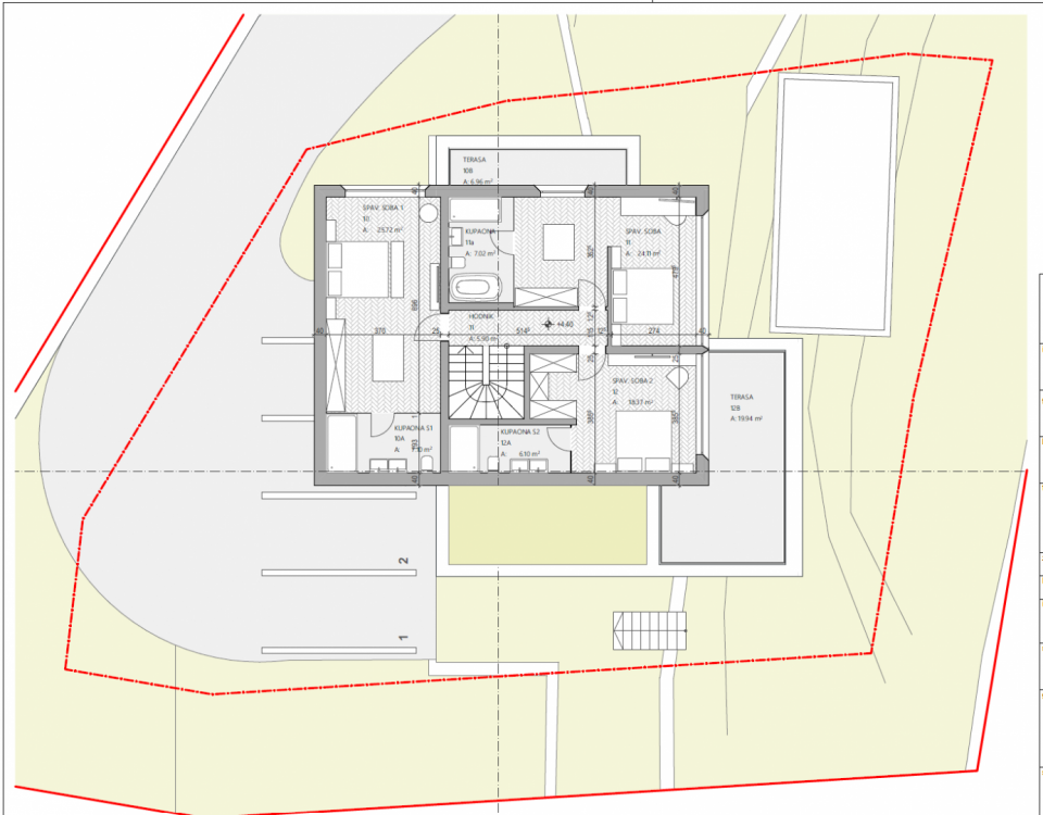
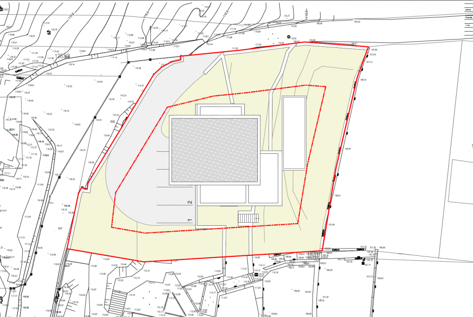
OPATIJA, ZENTRUM - Grundstück 929m2 für eine Villa mit Swimmingpool mit Baugenehmigung oberhalb des Zentrums von Opatija Aus dem Dux-Angebot heben wir ein einzigartiges Grundstück mit Baugenehmigung für den Bau einer Villa mit Swimmingpool von 336m2 hervor Wohnfläche, direkt über dem Zentrum von Opatija. Unglaublicher Meerblick, von links nach rechts freie Sicht. Das Baugrundstück liegt direkt an der Staatsstraße und verfügt über eine fantastische Zufahrt. Das Villenprojekt ist im modernen Stil gehalten und verfügt über einen Infinity-Pool. Es ist wichtig hervorzuheben, dass sich das Grundstück in einer exklusiven Siedlung oberhalb des Zentrums von Opatija befindet. Wasser, Strom, Kanalisation zum Land. Die Luftlinie zum Meer beträgt 450 Meter. Die Geländekonfiguration verläuft sehr sanft bergauf, sodass keine großen Ausgrabungen erforderlich sind. Eigentum 1/1 ohne Belastungen. PERFEKT ZUM BAUEN! Garantierte Aussicht und Privatsphäre.
Bei allen unseren Angeboten sind die Preise identisch mit dem Direktkauf bei der Agentur/dem Entwickler in Kroatien, da wir der offizielle Vertreter dieser Agenturen auf dem tschechischen, slowakischen, deutschen und österreichischen Markt sind. Dies gilt ohne zusätzliche Zuschläge für deutschsprachige Dienstleistungen.
Sehr geehrte Kunden, die Besichtigung von Immobilien, die Mitteilung der Lage und andere detaillierte Informationen sind nur mit einem unterzeichneten Vermittlungsvertrag möglich, der die Grundlage für weitere Aktionen wie den Kauf einer Immobilie bildet. Alles steht im Einklang mit dem Gesetz über die Vermittlung beim Kauf von Immobilien. Der Käufer zahlt eine gesetzliche Vermittlungsprovision in Höhe von 3% (+ MwSt.) des vereinbarten Preises, und zwar nur im Falle des Kaufs der Immobilie. Sollte der Kauf nicht zustande kommen, ist der Vertrag für Sie nicht bindend und wird annulliert. Wenn Sie ernsthaft an der Immobilie interessiert sind, senden wir Ihnen den Vertrag auf Anfrage zu.
Wir werden Ihnen innerhalb von 24 Stunden antworten.
Wir bieten nur geprüfte Immobilien an.
Wir garantieren eine hohe Servicequalität.
Wir können Ihnen bei der Vermittlung von Unterkünften während der Besichtigungen helfen.
- Ich habe eine Immobilie aus dem Angebot ausgewählt
- Ich kontaktiere den Makler
- Ich unterschreibe einen Vertretungsvertrag - Details hier! (die Unterzeichnung des Vertrags ist gesetzlich vorgeschrieben)
- Ich richte eine OIB ein - Details hier (die Einrichtung ist gesetzlich vorgeschrieben)
- Besichtigungen vor Ort
- Unterzeichnung der Reservierung, des Kaufvertrags