PAG ISLAND, MANDRE – Moderner Neubau mit Meerblick, 80 Meter vom Strand entfernt! S8
| Registrationsnummer | DN-42871 | 
| Art des Angebots | Verkauf | 
| Kategorie | Appartements | 
| Bezirk | Zadarska | 
| Gemeindeteil | Kolan | 
| Preis | 294 480 € | 
| Gesamtfläche | 73 m² | 
| Wohnfläche (Wohnung) | 73 m² | 
| Entfernung vom meer | 80 m | 
| Strom | |
| Wasser | |
| Klimaanlage | 
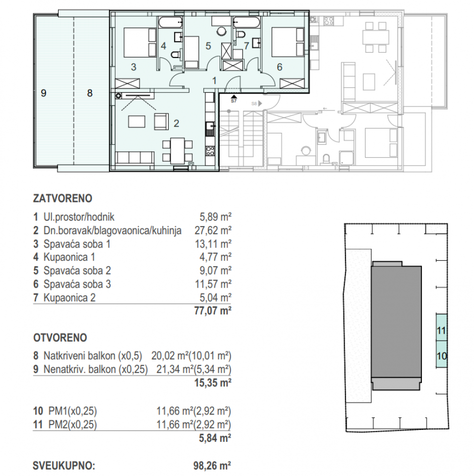
INSEL PAG, MANDRE – Moderner Neubau mit Meerblick, 80 Meter vom Strand entfernt! S8 Attraktive Wohnung S8 in einem Neubau in Mandre, nur 80 Meter vom schönen Strand entfernt, zum Verkauf. Das Gebäude umfasst insgesamt acht moderne Wohnungen, die mit Wert auf Qualität, Komfort und zeitgemäßen Lebensstil gebaut wurden. Die Wohnung S8 befindet sich im zweiten Stock und verfügt über zwei Schlafzimmer, ein Badezimmer mit Fußbodenheizung, ein geräumiges Wohnzimmer mit Küche und Essbereich sowie eine überdachte Terrasse mit Meerblick, ideal zum Entspannen an lauen Sommerabenden. Zur Wohnung gehören außerdem zwei Parkplätze. Dieser Neubau vereint modernes Design und mediterranen Charme – ideal für einen Urlaub, aber auch als Investition zur Vermietung während der Saison. Mandre ist ein malerisches Fischerdorf auf der Insel Pag, bekannt für sein klares Meer, seine gepflegten Strände und seine ruhige Atmosphäre. Die Insel Pag begeistert mit ihrer einzigartigen Natur, ihrem reichhaltigen gastronomischen Angebot, Pager Käse und Wein sowie dem authentischen dalmatinischen Flair. Für weitere Informationen und Besichtigungen dieser Immobilie kontaktieren Sie uns gerne – Ihr neues Zuhause am Meer erwartet Sie in Mandre! Liebe Kunden, die Vermittlungsprovision wird gemäß den Allgemeinen Geschäftsbedingungen berechnet: www.dux-nekretnine.hr/opci-uvjeti-poslovanja
Bei allen unseren Angeboten sind die Preise identisch mit dem Direktkauf bei der Agentur/dem Entwickler in Kroatien, da wir der offizielle Vertreter dieser Agenturen auf dem tschechischen, slowakischen, deutschen und österreichischen Markt sind. Dies gilt ohne zusätzliche Zuschläge für deutschsprachige Dienstleistungen.
Sehr geehrte Kunden, die Besichtigung von Immobilien, die Mitteilung der Lage und andere detaillierte Informationen sind nur mit einem unterzeichneten Vermittlungsvertrag möglich, der die Grundlage für weitere Aktionen wie den Kauf einer Immobilie bildet. Alles steht im Einklang mit dem Gesetz über die Vermittlung beim Kauf von Immobilien. Der Käufer zahlt eine gesetzliche Vermittlungsprovision in Höhe von 3% (+ MwSt.) des vereinbarten Preises, und zwar nur im Falle des Kaufs der Immobilie. Sollte der Kauf nicht zustande kommen, ist der Vertrag für Sie nicht bindend und wird annulliert. Wenn Sie ernsthaft an der Immobilie interessiert sind, senden wir Ihnen den Vertrag auf Anfrage zu.
 
Wir werden Ihnen innerhalb von 24 Stunden antworten.
Wir bieten nur geprüfte Immobilien an.
Wir garantieren eine hohe Servicequalität.
Wir können Ihnen bei der Vermittlung von Unterkünften während der Besichtigungen helfen.
 
- Ich habe eine Immobilie aus dem Angebot ausgewählt
- Ich kontaktiere den Makler
- Ich unterschreibe einen Vertretungsvertrag - Details hier! (die Unterzeichnung des Vertrags ist gesetzlich vorgeschrieben)
- Ich richte eine OIB ein - Details hier (die Einrichtung ist gesetzlich vorgeschrieben)
- Besichtigungen vor Ort
- Unterzeichnung der Reservierung, des Kaufvertrags
 
 
 
 
 
 
 
 
 
 
 
 
 
 
 
 
 
 
 
 
 
 
 
 
 
 
 
 
