RAB-INSEL, KAMPOR – GELEGENHEIT! Neubau, 2 Schlafzimmer + Badezimmer, Parkplatz, Garten, Meerblick
| Registrationsnummer | DN-34942 |
| Art des Angebots | Verkauf |
| Kategorie | Appartements |
| Bezirk | Primorsko-goranska |
| Gemeindeteil | Rab |
| Preis | 189 000 € |
| Gesamtfläche | 66 m² |
| Wohnfläche (Wohnung) | 66 m² |
| Bebaute Fläche und Hof | 50 m² |
| Gesamt bebaut fläche | 50 m² |
| Entfernung vom meer | 450 m |
| Strom | |
| Abfall | |
| Klimaanlage | |
| Heizung | ano |
| Energieintensität | X - Nicht ausgestellt |
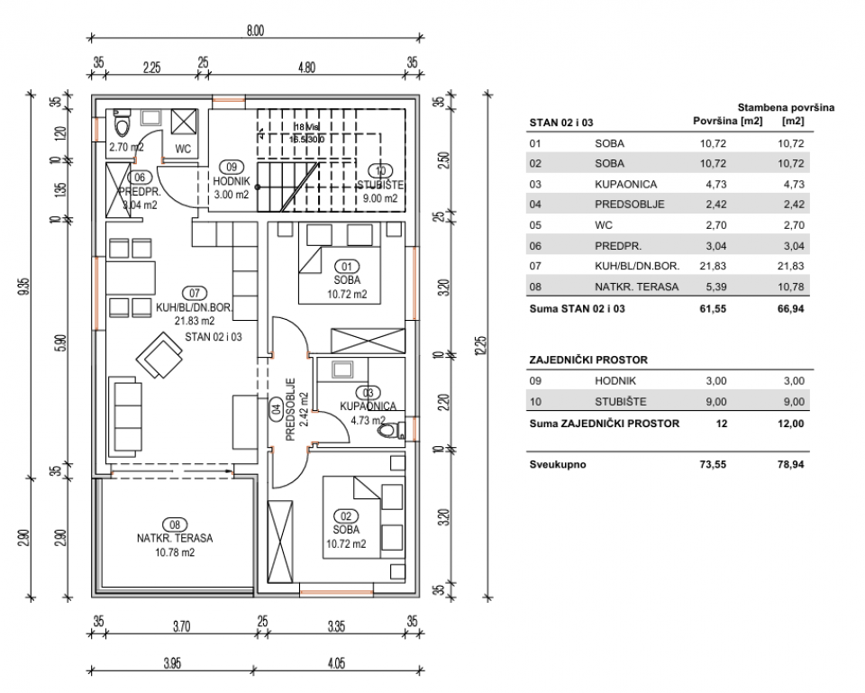
INSEL RAB, KAMPOR – Neubau, 2. Etage, 2 Schlafzimmer + Wohnzimmer + 2 Parkplätze Auf der Insel Rab heben wir einen hochwertigen Neubau hervor, im Dorf Kampor, 450 Meter von der Bucht entfernt. Wohnungen in einem Neubau, einem modernen kleineren Wohnhaus, 3 Etagen und 3 einstöckige Zweizimmerwohnungen. Das Gebäude ist nach hohen Standards gebaut, Schüco-Zimmerei mit Jalousien und Moskitonetzen, 10 cm Styroporfassaden, Marmortreppen, anthrazitfarbene Dachrinnen, geplanter Schornstein für Heizung, Installationen und installierte Klimageräte. Die Wohnung im letzten Stock des Gebäudes mit ihren 61,55 m2 besteht aus einer Eingangshalle, einem Gäste-WC, einer Küche, einem Wohnzimmer von 21,83 m2, das eine Küche, ein Esszimmer und ein Wohnzimmer mit Zugang umfasst eine überdachte Terrasse von 10,78 m2. Die zweite Hälfte der Wohnung ist der Schlafbereich – Flur, Badezimmer und zwei Schlafzimmer mit einer Fläche von 10,72 m2. Die Wohnung verfügt über einen Gemeinschaftsraum im Gebäude und zwei Parkplätze im Garten und bietet einen Blick auf das umliegende Grün. Die Wohnungen befinden sich derzeit in der letzten Bauphase und es besteht die Möglichkeit, maßgeschneiderte Keramik zu wählen! Tolle Gelegenheit für eine kleinere Wohnung, für die Sommermonate am Meer! ***
Bei allen unseren Angeboten sind die Preise identisch mit dem Direktkauf bei der Agentur/dem Entwickler in Kroatien, da wir der offizielle Vertreter dieser Agenturen auf dem tschechischen, slowakischen, deutschen und österreichischen Markt sind. Dies gilt ohne zusätzliche Zuschläge für deutschsprachige Dienstleistungen.
Sehr geehrte Kunden, die Besichtigung von Immobilien, die Mitteilung der Lage und andere detaillierte Informationen sind nur mit einem unterzeichneten Vermittlungsvertrag möglich, der die Grundlage für weitere Aktionen wie den Kauf einer Immobilie bildet. Alles steht im Einklang mit dem Gesetz über die Vermittlung beim Kauf von Immobilien. Der Käufer zahlt eine gesetzliche Vermittlungsprovision in Höhe von 3% (+ MwSt.) des vereinbarten Preises, und zwar nur im Falle des Kaufs der Immobilie. Sollte der Kauf nicht zustande kommen, ist der Vertrag für Sie nicht bindend und wird annulliert. Wenn Sie ernsthaft an der Immobilie interessiert sind, senden wir Ihnen den Vertrag auf Anfrage zu.
Wir werden Ihnen innerhalb von 24 Stunden antworten.
Wir bieten nur geprüfte Immobilien an.
Wir garantieren eine hohe Servicequalität.
Wir können Ihnen bei der Vermittlung von Unterkünften während der Besichtigungen helfen.
- Ich habe eine Immobilie aus dem Angebot ausgewählt
- Ich kontaktiere den Makler
- Ich unterschreibe einen Vertretungsvertrag - Details hier! (die Unterzeichnung des Vertrags ist gesetzlich vorgeschrieben)
- Ich richte eine OIB ein - Details hier (die Einrichtung ist gesetzlich vorgeschrieben)
- Besichtigungen vor Ort
- Unterzeichnung der Reservierung, des Kaufvertrags