RIJEKA, DRENOVA - Bauland 6500m2 für den Bau von Wohngebäuden - Wohnungen
| Registrationsnummer | DN-33890 |
| Art des Angebots | Verkauf |
| Kategorie | Bauland |
| Bezirk | Primorsko-goranska |
| Gemeindeteil | Rijeka |
| Preis | 260 000 € |
| Preis pro m2 | 40 €/m² |
| Gesamtfläche | 6 500 m² |
| Strom | |
| Wasser |
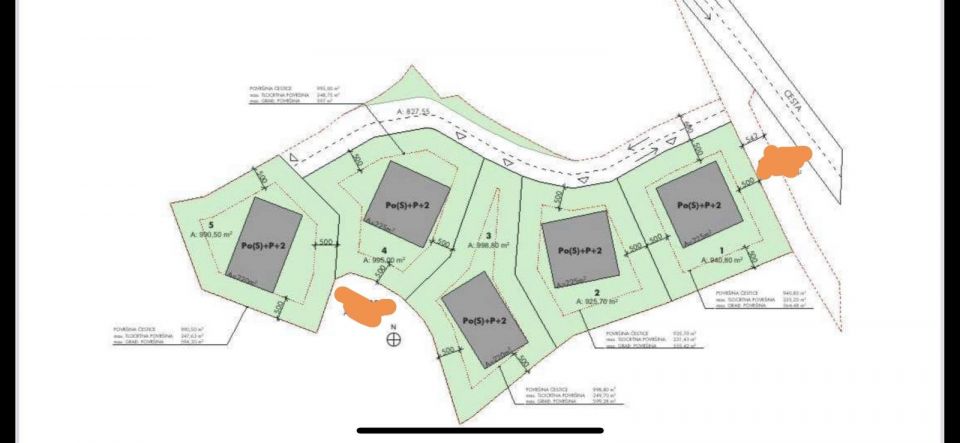
RIJEKA, DRENOVA - Bauland 6500m2 für den Bau von Wohngebäuden - Wohnungen Baugrundstück von 6500 m2 für den Bau von 5 Gebäuden. Das Grundstück ist in 5 kleinere Grundstücke von jeweils 11.000 m2 aufgeteilt. Jedes Gebäude kann maximal 8 Wohnungen P(0) + S + 2 haben. Die Bruttobebaute Fläche pro Gebäude beträgt ca. 600m2. Die Geländekonfiguration ist abfallend/ weist mehrere abfallende Kaskaden auf/völlig flach. Das Feld liegt in einer ruhigen und friedlichen Lage und direkt neben der asphaltierten Straße. Alle Versorgungseinrichtungen vor Ort. Sauberes und ordentliches Anwesen. Eine gute Gelegenheit für Investoren, die sich mit dem Bau von Wohngebäuden beschäftigen – Wohnungen DRENOVA: Wenn Sie „in vollen Zügen“ leben möchten, ist Drenova ein Viertel in Rijeka, das Sie bei der Auswahl einer Immobilie berücksichtigen sollten. Seinen Namen erhielt es vom Hartriegel, einem Waldobstbaum, der in den Wäldern von Dogwood wächst. Am Stadtrand gelegen, stellt es eine ideale Kombination aus Stadt und Land dar. Historisch gesehen besteht es aus zwei Einheiten (Upper Drenove und Donje Drenove), die heute in einem Stadtbezirk vereint sind. Die Natur fehlt den meisten Vierteln, und dieser Teil der Stadt zeichnet sich durch Fortschritt aus, sodass Sie nur wenige Schritte von Ihrem Grundstück entfernt Wandern, Trailrunning, Sportklettern oder einen einfachen erholsamen Spaziergang unternehmen können. Das oben erwähnte Grün verleiht Drenova den Beinamen der friedlichsten Siedlung und das Motto der örtlichen Gemeinde: „Drenova – die grüne Lunge der Stadt“. In der Gegend von Drenova gibt es die Grundschule „Fran Franković“, die nach einem der bedeutendsten Bewohner von Drenova benannt ist. Auch die Zweigstelle der Stadtbibliothek Rijeka ist erfolgreich tätig. Ein wichtiger Vorteil von Drenova ist die Tatsache, dass es über alle lebensnotwendigen Einrichtungen verfügt – Bildungseinrichtungen, ein Gesundheitszentrum, eine Stadtbibliothek und eine Reihe von Sport-, Erholungs- und Unterhaltungsmöglichkeiten mit guter Verkehrsanbindung an die Stadt und die Vororte Bereiche. In diesem Teil der Stadt findet ein sozialer, geförderter Wohnungsbau statt, gleichzeitig sind Einfamilienhäuser mit Innenhöfen und umzäunten Gärten im Angebot zu finden.
Bei allen unseren Angeboten sind die Preise identisch mit dem Direktkauf bei der Agentur/dem Entwickler in Kroatien, da wir der offizielle Vertreter dieser Agenturen auf dem tschechischen, slowakischen, deutschen und österreichischen Markt sind. Dies gilt ohne zusätzliche Zuschläge für deutschsprachige Dienstleistungen.
Sehr geehrte Kunden, die Besichtigung von Immobilien, die Mitteilung der Lage und andere detaillierte Informationen sind nur mit einem unterzeichneten Vermittlungsvertrag möglich, der die Grundlage für weitere Aktionen wie den Kauf einer Immobilie bildet. Alles steht im Einklang mit dem Gesetz über die Vermittlung beim Kauf von Immobilien. Der Käufer zahlt eine gesetzliche Vermittlungsprovision in Höhe von 3% (+ MwSt.) des vereinbarten Preises, und zwar nur im Falle des Kaufs der Immobilie. Sollte der Kauf nicht zustande kommen, ist der Vertrag für Sie nicht bindend und wird annulliert. Wenn Sie ernsthaft an der Immobilie interessiert sind, senden wir Ihnen den Vertrag auf Anfrage zu.
Wir werden Ihnen innerhalb von 24 Stunden antworten.
Wir bieten nur geprüfte Immobilien an.
Wir garantieren eine hohe Servicequalität.
Wir können Ihnen bei der Vermittlung von Unterkünften während der Besichtigungen helfen.
- Ich habe eine Immobilie aus dem Angebot ausgewählt
- Ich kontaktiere den Makler
- Ich unterschreibe einen Vertretungsvertrag - Details hier! (die Unterzeichnung des Vertrags ist gesetzlich vorgeschrieben)
- Ich richte eine OIB ein - Details hier (die Einrichtung ist gesetzlich vorgeschrieben)
- Besichtigungen vor Ort
- Unterzeichnung der Reservierung, des Kaufvertrags