RIJEKA, PEĆINE – Grundstück 2. Reihe zum Meer 3072m2 für Sportzentrum mit Garagen / Hotel zu vermieten
| Registrationsnummer | DN-38273 |
| Art des Angebots | Verkauf |
| Kategorie | Bauland |
| Bezirk | Primorsko-goranska |
| Gemeindeteil | Rijeka |
| Preis | 3 500 € |
| Preis pro m2 | 1 €/m² |
| Gesamtfläche | 3 072 m² |
| Strom | |
| Wasser | |
| Abfall |
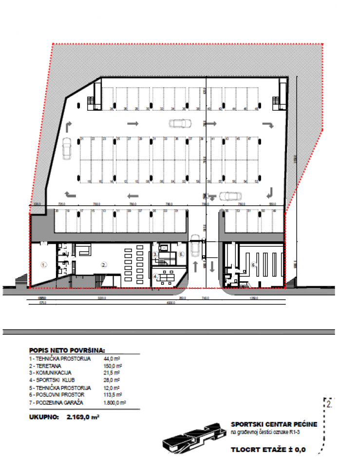
RIJEKA, PEĆINE – Grundstück 2. Reihe zum Meer 3072 m2 für ein Sportzentrum mit Garagen/Hotel zu vermieten Für den Standort wurde ein Konzeptentwurf erstellt, der den Bau des PEĆINE SPORTS CENTER mit Tiefgarage, Hauptgebäude und Sportplatz in Rijeka, Siedlung Pećine vorsieht. Das betreffende Gebiet liegt im Geltungsbereich der DPU des Stadtgebiets Pećine und hat die Planungsbezeichnung R1-3. Laut DPU umfasst die Zone den geplanten Zweck R1 – Sport- und Freizeitzweck – SPORT. Laut DPU verfügt das Baugrundstück mit der Planungsbezeichnung über eine Gesamtfläche von 3.072,0 m², wobei die größte zulässige bebaute Fläche des Grundstücks 2.445,0 m² beträgt. Die maximal zulässige Anzahl an Stockwerken beträgt P+1 bei einer maximalen Gebäudehöhe von 8,0 m. AKTUELLE SITUATION: Bei der betroffenen Zone handelt es sich im Wesentlichen um ein flaches Plateau etwa 1,5 m über der Straße, auf dem ein Sportplatz, nämlich zwei Tennisplätze, angelegt wurde. Zum Gelände gehört neben dem gepflegten Sportplatz auch eine Sport- und Gastronomieanlage. Auf der Südwestseite wird das Grundstück durch eine Straße begrenzt, die etwa 1,5 m unter dem Niveau des Sportplatzplateaus liegt. Die nordwestliche und ein Teil der südöstlichen Seite werden durch einen öffentlichen Fußgängerbereich – öffentliche Treppen – definiert. Es wird auf der nordöstlichen Seite und teilweise auf der südöstlichen Seite von einer Klippe begrenzt. GEPLANTER ZUSTAND: Dieser Konzeptentwurf sieht den Bau des Sportzentrums Pećine und einer Tiefgarage für insgesamt 59 Parkplätze vor. Auf dem Garagendach ist die Errichtung eines Sportbereichs und eines Tribünentrakts geplant. Gemäß der kartografischen Darstellung 4.BAUBEDINGUNGEN ist auf einem Baugrundstück mit der Planungsbezeichnung R1-3 die Errichtung eines Erdgeschosses + 1 Gebäudes auf der Regulierungslinie mit einer Gesamtgrundfläche von 490,0 m² und einer Gesamtbruttofläche von 780,0 m² geplant. Im geplanten Gebäudeteil sollen Sport- und Freizeiteinrichtungen wie ein Vereinsbereich, Umkleidekabinen, ein Fitnessstudio sowie Gastronomie- und Geschäftsräume untergebracht werden. Zur Erweiterung des Baugrundstücks ist eine Tiefgarage mit Einfahrt von der Šetalište-Straße, XIII. Abteilung, geplant. Auf dem Dach der Garage entsteht ein Sportplatz mit Tribünenaufstellung. Liste der Nettoflächen: 1 - TECHNIKRAUM 44,0 m² 2 - TURNHALLE 1 150,0 m² 3 - KOMMUNIKATION 21,5 m² 4 - SPORTCLUB 28,0 m² 5 - TECHNIKRAUM 12,0 m² 6 - BÜROFLÄCHEN 113,5 m² 7 - TIEFGARAGE 1.800,0 m² 8 - TURNHALLE 2 109,0 m² 9 - DURCHGANG UND TREPPE 67,5 m²x0,5 10 - GARDEROBE 16,5 m² 11 - KOMMUNIKATION 21,5 m² 12 - SANITÄRRÄUME 19,0 m² 13 - ATRIUM 113,5 m²x0,5 CATERINGFLÄCHE 170,0 m² 15- TERRASSE 26,0 m²x0,5 16- SPORTPLATZ 17- TRIBÜNEN GESAMT 2.608,5 m2 - Bauland für ernsthafte Investoren - eine Rarität auf dem Markt - Grundstück an der Stadtgrenze - Zugang ist von der Hauptstraße gewährleistet und befindet sich in unmittelbarer Nähe (fußläufig erreichbar) einer Grundschule, eines Kindergartens und anderer Annehmlichkeiten des täglichen Lebens. Ein Anwesen, von dem aus Sie in nur einer Minute zu Fuß zum Meer und Strand gelangen! PEĆINE: Zahlreiche Villen mit grünen Innenhöfen, wunderschön angelegte Parks, eine Reihe von Stränden und Badebereichen sowie eine interessante Geschichte sind die Merkmale, die dieses Viertel von Rijeka im äußersten Südosten der Stadt schmücken. Der ehemalige Wohnort der Reichen ist mit Sommerhäusern entlang der Küste geschmückt, die von üppigen Blumengärten umgeben sind, während in einer späteren Periode Wohnhäuser errichtet wurden. Rijekas erstes großes Einkaufszentrum, ein Vergnügungspark für Kinder, ein Handball- und Tennisclub, Sportvereine, die Lage, die Nähe zum Stadtzentrum, ein Hotel und drei Hostels sind nur einige der Merkmale dieses Viertels, das Leben mit Entspannung und Erholung bietet.
Bei allen unseren Angeboten sind die Preise identisch mit dem Direktkauf bei der Agentur/dem Entwickler in Kroatien, da wir der offizielle Vertreter dieser Agenturen auf dem tschechischen, slowakischen, deutschen und österreichischen Markt sind. Dies gilt ohne zusätzliche Zuschläge für deutschsprachige Dienstleistungen.
Sehr geehrte Kunden, die Besichtigung von Immobilien, die Mitteilung der Lage und andere detaillierte Informationen sind nur mit einem unterzeichneten Vermittlungsvertrag möglich, der die Grundlage für weitere Aktionen wie den Kauf einer Immobilie bildet. Alles steht im Einklang mit dem Gesetz über die Vermittlung beim Kauf von Immobilien. Der Käufer zahlt eine gesetzliche Vermittlungsprovision in Höhe von 3% (+ MwSt.) des vereinbarten Preises, und zwar nur im Falle des Kaufs der Immobilie. Sollte der Kauf nicht zustande kommen, ist der Vertrag für Sie nicht bindend und wird annulliert. Wenn Sie ernsthaft an der Immobilie interessiert sind, senden wir Ihnen den Vertrag auf Anfrage zu.
Wir werden Ihnen innerhalb von 24 Stunden antworten.
Wir bieten nur geprüfte Immobilien an.
Wir garantieren eine hohe Servicequalität.
Wir können Ihnen bei der Vermittlung von Unterkünften während der Besichtigungen helfen.
- Ich habe eine Immobilie aus dem Angebot ausgewählt
- Ich kontaktiere den Makler
- Ich unterschreibe einen Vertretungsvertrag - Details hier! (die Unterzeichnung des Vertrags ist gesetzlich vorgeschrieben)
- Ich richte eine OIB ein - Details hier (die Einrichtung ist gesetzlich vorgeschrieben)
- Besichtigungen vor Ort
- Unterzeichnung der Reservierung, des Kaufvertrags