RIJEKA, VIŠKOVO - Wohnung 3. (67 m2) IN EINEM NEUEN GEBÄUDE 2 SCHLAFZIMMER + WOHNZIMMER, STÄDTISCHES GEBÄUDE VIŠKOVO! GELEGENHEIT!
| Registrationsnummer | DN-44431 |
| Art des Angebots | Verkauf |
| Kategorie | Appartements |
| Bezirk | Primorsko-goranska |
| Gemeindeteil | Viškovo |
| Preis | 216 000 € |
| Gesamtfläche | 67 m² |
| Wohnfläche (Wohnung) | 67 m² |
| Strom | |
| Wasser | |
| Klimaanlage | |
| Heizung | ano |
| Preis (original) | 236 000 € |
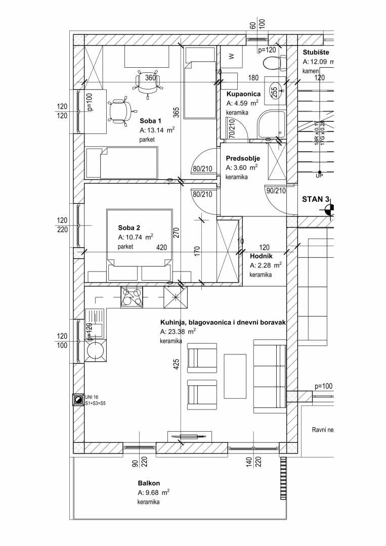
RIJEKA, VIŠKOVO – Wohnung 3 (67 m²) IN EINEM NEUBAU (2 Schlafzimmer + Wohnzimmer) IN STADTGEBÄUDE VIŠKOVO! GELEGENHEIT! Das Gebäude befindet sich im Bau. Die Fertigstellung ist für Frühjahr 2026 geplant. Im angegebenen Preis ist ein Parkplatz enthalten. Ein zweiter Parkplatz kann auf Wunsch des Käufers erworben werden. Wohnung 3 – 1. Obergeschoss Eingangsbereich: 3,60 m² Flur: 2,28 m² Küche, Ess- und Wohnzimmer: 23,38 m² Balkon: 9,68 m² · Zimmer 1: 13,14 m² Zimmer 2: 10,74 m² Badezimmer: 4,59 m² Wohnfläche Wohnung 3: 67,41 m² Das Gebäude ist ausschließlich zu Wohnzwecken bestimmt. Es wird sechs Wohnungen mit zugehörigen Abstellräumen im Untergeschoss und Außenstellplätzen umfassen. Im Untergeschoss befinden sich sechs Abstellräume für jede der sechs Wohnungen. Im Erdgeschoss befinden sich zwei Wohnungen. Im ersten Obergeschoss befinden sich zwei Wohnungen. Im zweiten Obergeschoss befinden sich ebenfalls zwei Wohnungen. Äußerliches Erscheinungsbild und Umweltgestaltung: Das Gebäude zeichnet sich durch eine schlichte und funktionale Form aus. Die Fassaden sind dezent horizontal und vertikal gegliedert. Sie werden mit modernen Materialien in verschiedenen Weiß- und Grautönen gestaltet. Die Fenster und Türen sind aus schwarzem PVC gefertigt. Die Balkongeländer bestehen aus Glas. Das Dach ist ein Flachdach. Der unbebaute Teil des Grundstücks wird als Fahr- und Fußgängerzone, Zufahrtsbereich, Fußgängerzone und Grünfläche gestaltet. Die Fahr- und Fußgängerzone sowie der Zufahrtsbereich werden gepflastert. Der Fußgängerbereich wird mit Betonelementen gepflastert, die Grünflächen werden mit Rasen bepflanzt und gärtnerisch gestaltet, wobei einheimische Pflanzen sowohl niedrige als auch hohe Arten umfassen. BAUWEISE: Das Gebäude ist in Ziegelbauweise errichtet, mit Ausnahme der Kellerwände, die aus Stahlbeton bestehen. Die Ziegelwände sind mit vertikalen und horizontalen Stahlbeton-Kragen versehen. Die Zwischengeschosse sind vollständig mit Stahlbetonplatten ausgestattet. Treppenhäuser und Podeste bestehen ebenfalls vollständig aus Stahlbetonplatten. Stützen, Träger und Stürze sind aus Stahlbeton gefertigt. Die Fundamente und die Fundamentwände bestehen aus Stahlbeton. Die Dachkonstruktion ist eine massive Stahlbetonplatte. INSTALLATIONEN: Das Gebäude wird über eine Sanitärwasserversorgung und -entsorgung, eine Regenwasserableitung, eine Kondensatableitung für die Wärmedämmung, eine Hoch- und Niederstrom-Elektroinstallation (Telefon und Gegensprechanlage) sowie eine mechanische Anlage für Heizung, Kühlung und Lüftung verfügen. MIKROLOKATION: Die Gemeinde Viškovo liegt nordwestlich von Rijeka und zählt zu den dynamischsten Regionen, nicht nur innerhalb der Gespanschaft Primorje-Gorski Kotar, sondern auch auf nationaler Ebene. Die Gemeinde Viškovo ist über den Autobahnknotenpunkt Škurinje und den neu eröffneten Autobahnknotenpunkt Rujevica (Umgehungsstraße Rijeka) an das öffentliche Straßennetz angebunden, was die Durchfahrt und den Zugang zur Gemeinde erleichtert. Insgesamt verlaufen fünf Kreisstraßen und vier Gemeindestraßen durch das Gemeindegebiet. Viškovo liegt in unmittelbarer Nähe zur slowenischen Grenze (Grenzübergang Rupa) und ist daher für Slowenen und Italiener schnell und einfach erreichbar. Die Gemeinde profitiert zudem teilweise von Opatija als bedeutendem Tourismuszentrum. Der Ort Viškovo ist der Verwaltungssitz der Gemeinde. Alle wichtigen Einrichtungen befinden sich an der Hauptstraße: Rathaus, Post, Grundschule, Kindergärten, Bibliothek, Arztpraxen, Apotheken, Banken, Kirche, Tourismusbüro, Tankstellen und mehrere Supermärkte sowie diverse Dienstleistungsbetriebe. IMMOBILIE IN EINZIGARTIGER LAGE MIT GROSSEM POTENZIAL! Ideal für Familien, aber auch als Kapitalanlage im Tourismusbereich geeignet. Sichern Sie sich diese seltene Gelegenheit!
Bei allen unseren Angeboten sind die Preise identisch mit dem Direktkauf bei der Agentur/dem Entwickler in Kroatien, da wir der offizielle Vertreter dieser Agenturen auf dem tschechischen, slowakischen, deutschen und österreichischen Markt sind. Dies gilt ohne zusätzliche Zuschläge für deutschsprachige Dienstleistungen.
Sehr geehrte Kunden, die Besichtigung von Immobilien, die Mitteilung der Lage und andere detaillierte Informationen sind nur mit einem unterzeichneten Vermittlungsvertrag möglich, der die Grundlage für weitere Aktionen wie den Kauf einer Immobilie bildet. Alles steht im Einklang mit dem Gesetz über die Vermittlung beim Kauf von Immobilien. Der Käufer zahlt eine gesetzliche Vermittlungsprovision in Höhe von 3% (+ MwSt.) des vereinbarten Preises, und zwar nur im Falle des Kaufs der Immobilie. Sollte der Kauf nicht zustande kommen, ist der Vertrag für Sie nicht bindend und wird annulliert. Wenn Sie ernsthaft an der Immobilie interessiert sind, senden wir Ihnen den Vertrag auf Anfrage zu.
Wir werden Ihnen innerhalb von 24 Stunden antworten.
Wir bieten nur geprüfte Immobilien an.
Wir garantieren eine hohe Servicequalität.
Wir können Ihnen bei der Vermittlung von Unterkünften während der Besichtigungen helfen.
- Ich habe eine Immobilie aus dem Angebot ausgewählt
- Ich kontaktiere den Makler
- Ich unterschreibe einen Vertretungsvertrag - Details hier! (die Unterzeichnung des Vertrags ist gesetzlich vorgeschrieben)
- Ich richte eine OIB ein - Details hier (die Einrichtung ist gesetzlich vorgeschrieben)
- Besichtigungen vor Ort
- Unterzeichnung der Reservierung, des Kaufvertrags