ŠIBENIK, BRODARICA – Erste Reihe zum Meer, oberste Etage, Terrasse 15 m², Aussicht
| Registrationsnummer | DN-47327 |
| Art des Angebots | Verkauf |
| Kategorie | Appartements |
| Bezirk | Šibensko-kninska |
| Gemeindeteil | Šibenik - Okolica |
| Preis | 471 000 € |
| Gesamtfläche | 72 m² |
| Wohnfläche (Wohnung) | 72 m² |
| Entfernung vom meer | 20 m |
| Strom | |
| Wasser | |
| Abfall | |
| Klimaanlage | |
| Heizung | ano |
| Energieintensität | A - extrem wirtschaftlich |
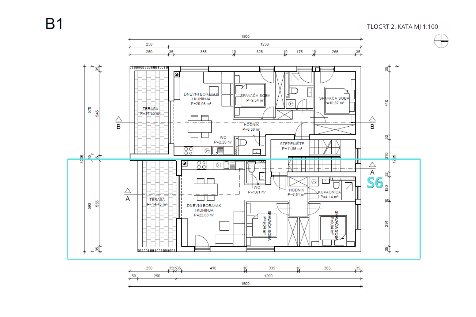
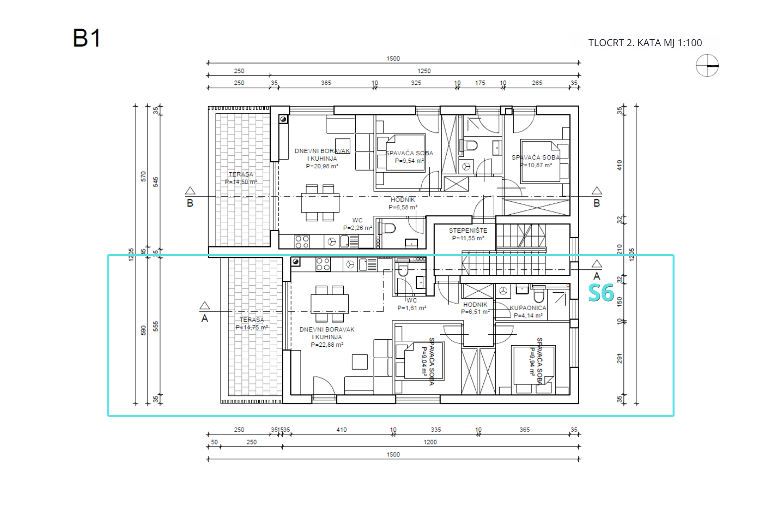
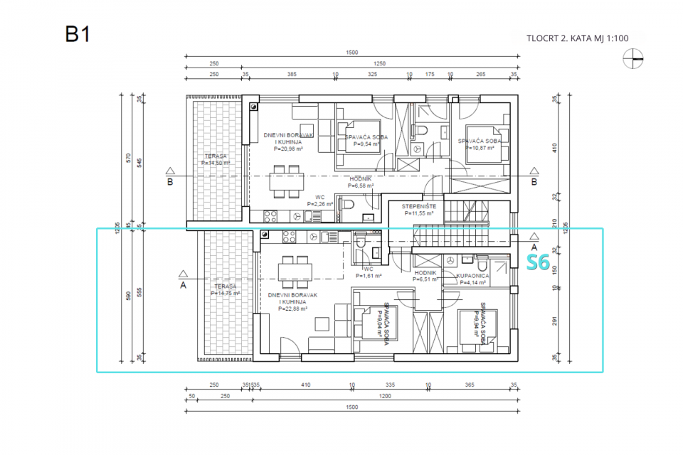
ŠIBENIK, BRODARICA – Erste Reihe direkt am Meer, oberste Etage, 15 m² große Terrasse, Meerblick Es gibt Immobilien am Meer … und es gibt solche in erster Reihe – wo der Tag mit Meerblick beginnt und die Morgensonne den Raum durchflutet. Genau so ist diese Wohnung in Brodarica, einer der begehrtesten Lagen rund um Šibenik. Solche Mikrolagen sind rar – und genau deshalb gewinnen sie langfristig an Wert. Das Projekt besteht aus zwei kleineren Gebäuden mit je sechs Wohnungen, verteilt auf Erdgeschoss und zwei Obergeschosse. Das bedeutet nur zwei Wohnungen pro Etage und deutlich mehr Privatsphäre. Die Gebäude befinden sich in erster und zweiter Reihe direkt am Meer, und alle Wohnungen bieten Meerblick. Diese Mikrolage bietet etwas, das am schwersten zu finden ist: direkten Zugang zum Meer ohne Kompromisse und langfristig eine der wertvollsten Lagen auf dem Markt. Apartment S6 befindet sich im 2. Obergeschoss (und gleichzeitig im obersten Stockwerk) des Gebäudes B1 (erste Reihe zum Meer), hat eine Nettofläche von 72,62 m² (68,87 m² Wohnfläche) und ist nach Süden ausgerichtet. Es besteht aus zwei Schlafzimmern, einem Flur, einem Badezimmer, einem Gäste-WC und einem Wohnzimmer mit offener Küche und Essbereich, das sich zu einer großzügigen, 15 m² großen Terrasse mit Meerblick öffnet. Die große Glaswand im Wohnzimmer und das Glasgeländer auf der Terrasse vermitteln das Gefühl, dass das Meer stets Teil des Raumes ist – selbst wenn man sich in der Wohnung aufhält. AUFTEILUNG • Offener Wohnbereich mit Küche und Essbereich • Zugang zur Terrasse (14,75 m²) mit herrlichem Meerblick • 2 Schlafzimmer • Badezimmer • Gäste-WC • Parkplatz AUSSTATTUNG UND BAUQUALITÄT • Fußbodenheizung (Wohnbereich + Badezimmer) • Klimaanlage in allen Räumen • Dreifachverglasung + elektrische Rollläden + Moskitonetze • Große Glasschiebetüren (öffnen den Raum maximal zum Meer) • Glasgeländer (uneingeschränkte Aussicht) • Moderne Badezimmer • Gegensprechanlage • TV und Internet in allen Räumen LAGE Brodarica bietet die perfekte Balance zwischen Alltag und Meeresnähe – nah genug an der Stadt, aber ohne deren Hektik. Käufer schätzen diese Lage, weil sie eine schnelle Anbindung an Šibenik ermöglicht und gleichzeitig außerhalb der Saison ein ruhigeres Lebensgefühl bietet. Ein besonderer Wert liegt in der unmittelbaren Nähe zum Meer, die den Wert der Immobilie langfristig sichert. • Meer: 20 m • Zentrum von Šibenik: 5,5 km (ca. 10 Autominuten) • Supermarkt: 900 m • Schule/Kindergarten: ca. 1,5 km • Nationalpark Krka und Autobahnanschluss: ca. 10 Minuten Die Lage ist erstklassig: Der Strand liegt direkt vor dem Haus. Brodarica befindet sich im Herzen Mitteldalmatiens, direkt neben Šibenik, und profitiert von einer strategisch günstigen Lage zwischen den beiden wichtigen regionalen Zentren Zadar und Split. Dank der Nähe zur Autobahn und den beiden internationalen Flughäfen Split und Zadar ist die Lage das ganze Jahr über hervorragend angebunden und leicht erreichbar. FÜR WEN IST DIESE IMMOBILIE IDEAL? Für Käufer, die eine seltene Immobilie in erster Reihe direkt am Meer suchen – eine Kombination aus Eigennutzung und sicheren touristischen Einnahmen in einer Lage, die ihren Wert langfristig erhält und steigert. Wohnungen in erster Reihe direkt am Meer in solchen Projekten sind schnell vergriffen, und die Auswahl ist bereits frühzeitig begrenzt. Für Verfügbarkeit und Reservierung kontaktieren Sie uns.
Bei allen unseren Angeboten sind die Preise identisch mit dem Direktkauf bei der Agentur/dem Entwickler in Kroatien, da wir der offizielle Vertreter dieser Agenturen auf dem tschechischen, slowakischen, deutschen und österreichischen Markt sind. Dies gilt ohne zusätzliche Zuschläge für deutschsprachige Dienstleistungen.
Sehr geehrte Kunden, die Besichtigung von Immobilien, die Mitteilung der Lage und andere detaillierte Informationen sind nur mit einem unterzeichneten Vermittlungsvertrag möglich, der die Grundlage für weitere Aktionen wie den Kauf einer Immobilie bildet. Alles steht im Einklang mit dem Gesetz über die Vermittlung beim Kauf von Immobilien. Der Käufer zahlt eine gesetzliche Vermittlungsprovision in Höhe von 3% (+ MwSt.) des vereinbarten Preises, und zwar nur im Falle des Kaufs der Immobilie. Sollte der Kauf nicht zustande kommen, ist der Vertrag für Sie nicht bindend und wird annulliert. Wenn Sie ernsthaft an der Immobilie interessiert sind, senden wir Ihnen den Vertrag auf Anfrage zu.
Wir werden Ihnen innerhalb von 24 Stunden antworten.
Wir bieten nur geprüfte Immobilien an.
Wir garantieren eine hohe Servicequalität.
Wir können Ihnen bei der Vermittlung von Unterkünften während der Besichtigungen helfen.
- Ich habe eine Immobilie aus dem Angebot ausgewählt
- Ich kontaktiere den Makler
- Ich unterschreibe einen Vertretungsvertrag - Details hier! (die Unterzeichnung des Vertrags ist gesetzlich vorgeschrieben)
- Ich richte eine OIB ein - Details hier (die Einrichtung ist gesetzlich vorgeschrieben)
- Besichtigungen vor Ort
- Unterzeichnung der Reservierung, des Kaufvertrags