ŠIBENIK, BRODARICA – Schöne Einzimmerwohnung im Erdgeschoss (S2) mit Garten
| Registrationsnummer | DN-46233 |
| Art des Angebots | Verkauf |
| Kategorie | Appartements |
| Bezirk | Šibensko-kninska |
| Gemeindeteil | Šibenik - Okolica |
| Preis | 200 000 € |
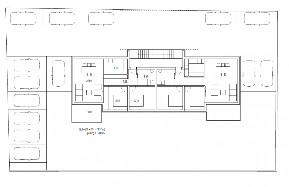
| Gesamtfläche | 53 m² |
| Wohnfläche (Wohnung) | 53 m² |
| Bebaute Fläche und Hof | 64 m² |
| Gesamt bebaut fläche | 64 m² |
| Entfernung vom meer | 300 m |
| Strom | |
| Wasser | |
| Abfall | |
| Klimaanlage |
ŠIBENIK, BRODARICA – Schöne 1-Zimmer-Erdgeschosswohnung (S2) mit Garten In einer der begehrtesten Lagen in der Nähe von Šibenik, im ruhigen und gepflegten Brodarica, befindet sich diese elegante 1-Zimmer-Erdgeschosswohnung eines modernen Neubaus. Sie ist ideal für alle, die Komfort, Privatsphäre und die Nähe zum Meer suchen. Die Wohnung mit einer Wohnfläche von 53 m² besticht durch ihren funktionalen und durchdachten Grundriss. Vom 2,53 m² großen Eingangsbereich gelangt man in das 4,83 m² große Badezimmer und in den großzügigen, offenen Wohn-, Ess- und Küchenbereich (23,54 m²), der ein angenehmes und modernes Ambiente für den Alltag bietet. Vom Wohnzimmer aus erreicht man das 10,89 m² große Schlafzimmer, das Ruhe und Privatsphäre garantiert. Ein besonderes Highlight dieser Immobilie ist der Zugang zum privaten Innenhof, der sowohl vom Wohn- als auch vom Schlafzimmer aus zugänglich ist. Der 64 m² große Innenhof (berechnet 6,4 m²) ist ein seltenes Plus in einem Neubau und steigert die Wohnqualität erheblich. Was diese Immobilie auf dem Markt auszeichnet, ist das Gefühl absoluter Privatsphäre und Freiheit. Der private Garten bietet die Möglichkeit, eine Oase der Entspannung, einen mediterranen Garten oder einen exklusiven Treffpunkt zu gestalten – ein seltenes Angebot in Wohnungen. Zusätzlicher Mehrwert bietet der freie Blick auf das Meer, die Insel Krapanj – die niedrigstgelegene Insel der Welt – und das Panorama der nur wenige Autominuten entfernten Stadt Šibenik. Zur Wohnung gehören zwei Parkplätze. Beim Bau wurden hochwertige Materialien und moderne Ausstattung verwendet: PVC-Fenster und -Türen mit Dreifachverglasung, Klimaanlage in allen Räumen und Fußbodenheizung im Badezimmer. Besonderer Wert wurde auf Energieeffizienz und langfristigen Wohnkomfort gelegt. Zukünftigen Eigentümern wird Flexibilität beim Kauf geboten: Die Wohnung kann im aktuellen Zustand oder nach Vereinbarung über die komplette Einrichtung mit Möbeln Ihrer Wahl übernommen werden. Das Gebäude wird aus Eigenkapital des Investors finanziert, was einen sicheren Kauf auch mit einem Immobilienkredit ermöglicht. Die Fertigstellung ist für Ende des Jahres geplant. Diese Immobilie stellt eine seltene Gelegenheit auf dem Markt dar – ideal für einen luxuriösen Urlaub am Meer, ein komfortables Familienleben oder als erstklassige Investition mit hervorragendem touristischem Potenzial.
Bei allen unseren Angeboten sind die Preise identisch mit dem Direktkauf bei der Agentur/dem Entwickler in Kroatien, da wir der offizielle Vertreter dieser Agenturen auf dem tschechischen, slowakischen, deutschen und österreichischen Markt sind. Dies gilt ohne zusätzliche Zuschläge für deutschsprachige Dienstleistungen.
Sehr geehrte Kunden, die Besichtigung von Immobilien, die Mitteilung der Lage und andere detaillierte Informationen sind nur mit einem unterzeichneten Vermittlungsvertrag möglich, der die Grundlage für weitere Aktionen wie den Kauf einer Immobilie bildet. Alles steht im Einklang mit dem Gesetz über die Vermittlung beim Kauf von Immobilien. Der Käufer zahlt eine gesetzliche Vermittlungsprovision in Höhe von 3% (+ MwSt.) des vereinbarten Preises, und zwar nur im Falle des Kaufs der Immobilie. Sollte der Kauf nicht zustande kommen, ist der Vertrag für Sie nicht bindend und wird annulliert. Wenn Sie ernsthaft an der Immobilie interessiert sind, senden wir Ihnen den Vertrag auf Anfrage zu.
Wir werden Ihnen innerhalb von 24 Stunden antworten.
Wir bieten nur geprüfte Immobilien an.
Wir garantieren eine hohe Servicequalität.
Wir können Ihnen bei der Vermittlung von Unterkünften während der Besichtigungen helfen.
- Ich habe eine Immobilie aus dem Angebot ausgewählt
- Ich kontaktiere den Makler
- Ich unterschreibe einen Vertretungsvertrag - Details hier! (die Unterzeichnung des Vertrags ist gesetzlich vorgeschrieben)
- Ich richte eine OIB ein - Details hier (die Einrichtung ist gesetzlich vorgeschrieben)
- Besichtigungen vor Ort
- Unterzeichnung der Reservierung, des Kaufvertrags