ŠIBENIK, BRODARICA – Schöne Zweizimmerwohnung im Erdgeschoss (S3) mit großem Garten und Terrasse
| Registrationsnummer | DN-46207 |
| Art des Angebots | Verkauf |
| Kategorie | Appartements |
| Bezirk | Šibensko-kninska |
| Gemeindeteil | Šibenik - Okolica |
| Preis | 235 000 € |
| Gesamtfläche | 67 m² |
| Wohnfläche (Wohnung) | 67 m² |
| Bebaute Fläche und Hof | 115 m² |
| Gesamt bebaut fläche | 115 m² |
| Entfernung vom meer | 300 m |
| Strom | |
| Wasser | |
| Abfall | |
| Klimaanlage |
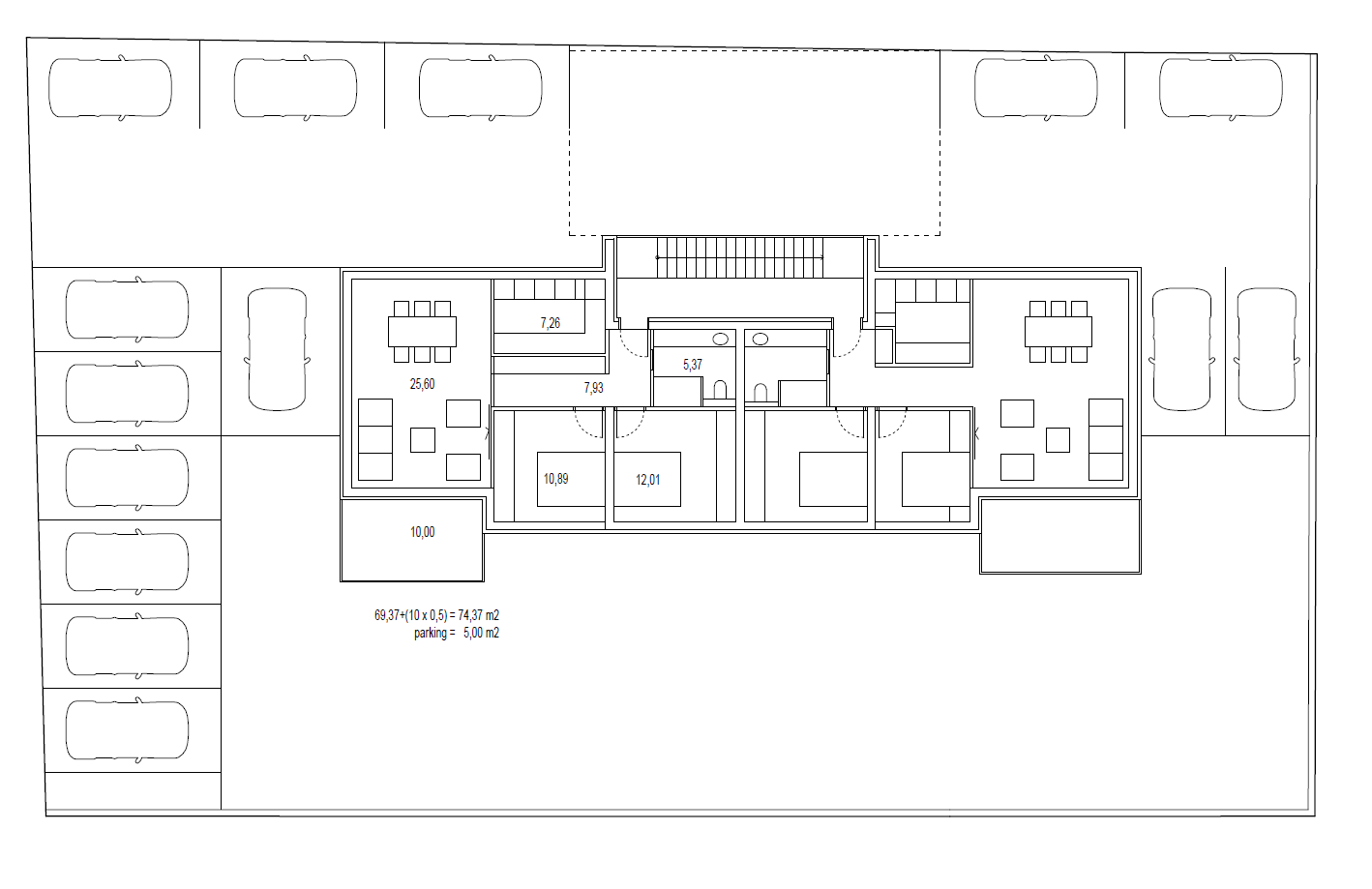
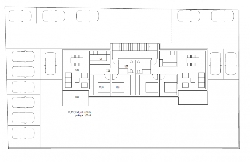
ŠIBENIK, BRODARICA – Wunderschöne Erdgeschosswohnung S3 mit großem Garten und Terrasse In einer der begehrtesten Lagen rund um Šibenik, im ruhigen und gepflegten Brodarica, befindet sich diese elegante Zweizimmerwohnung im Erdgeschoss eines modernen Neubaus. Sie ist ideal für alle, die Komfort, Privatsphäre und die Nähe zum Meer suchen. Nur 300 Meter vom kristallklaren Meer und gepflegten Stränden entfernt, bietet die 67,42 m² große Wohnung eine durchdachte Raumaufteilung: zwei Schlafzimmer, ein Badezimmer und ein geräumiges Wohnzimmer mit offener Küche und Essbereich sowie direktem Zugang zur Terrasse und einem beeindruckenden, 115 m² großen privaten Innenhof. Was diese Immobilie auf dem Markt auszeichnet, ist das Gefühl absoluter Privatsphäre und Freiheit – der eigene Garten bietet die Möglichkeit, eine Oase der Entspannung, einen mediterranen Garten oder einen exklusiven Bereich zum geselligen Beisammensein zu schaffen, was in Wohnungen selten zu finden ist. Ein zusätzlicher Mehrwert bietet der freie Blick auf das Meer, die Insel Krapanj – die niedrigstgelegene Insel der Welt – und das Panorama der nur wenige Autominuten entfernten Stadt Šibenik. Die Wohnung verfügt über zwei separate Parkplätze mit eigenem Eingang. Beim Bau wurden hochwertige Materialien und moderne Ausstattung verwendet: PVC-Fenster und -Türen mit Dreifachverglasung, Klimaanlage in allen Räumen und Fußbodenheizung im Badezimmer. Besonderer Wert wurde auf Energieeffizienz und langfristigen Wohnkomfort gelegt. Zukünftige Eigentümer genießen Flexibilität beim Kauf: Die Wohnung kann im aktuellen Zustand oder nach Vereinbarung über die komplette Einrichtung mit Möbeln Ihrer Wahl übernommen werden. Das Gebäude wird aus Eigenkapital des Investors finanziert, was einen sicheren Kauf auch mit einem Immobilienkredit ermöglicht. Die Fertigstellung ist für Ende des Jahres geplant. Diese Immobilie stellt eine seltene Gelegenheit auf dem Markt dar – perfekt für einen luxuriösen Urlaub am Meer, ein angenehmes Familienleben oder als erstklassige Investition mit hervorragendem touristischem Potenzial.
Bei allen unseren Angeboten sind die Preise identisch mit dem Direktkauf bei der Agentur/dem Entwickler in Kroatien, da wir der offizielle Vertreter dieser Agenturen auf dem tschechischen, slowakischen, deutschen und österreichischen Markt sind. Dies gilt ohne zusätzliche Zuschläge für deutschsprachige Dienstleistungen.
Sehr geehrte Kunden, die Besichtigung von Immobilien, die Mitteilung der Lage und andere detaillierte Informationen sind nur mit einem unterzeichneten Vermittlungsvertrag möglich, der die Grundlage für weitere Aktionen wie den Kauf einer Immobilie bildet. Alles steht im Einklang mit dem Gesetz über die Vermittlung beim Kauf von Immobilien. Der Käufer zahlt eine gesetzliche Vermittlungsprovision in Höhe von 3% (+ MwSt.) des vereinbarten Preises, und zwar nur im Falle des Kaufs der Immobilie. Sollte der Kauf nicht zustande kommen, ist der Vertrag für Sie nicht bindend und wird annulliert. Wenn Sie ernsthaft an der Immobilie interessiert sind, senden wir Ihnen den Vertrag auf Anfrage zu.
Wir werden Ihnen innerhalb von 24 Stunden antworten.
Wir bieten nur geprüfte Immobilien an.
Wir garantieren eine hohe Servicequalität.
Wir können Ihnen bei der Vermittlung von Unterkünften während der Besichtigungen helfen.
- Ich habe eine Immobilie aus dem Angebot ausgewählt
- Ich kontaktiere den Makler
- Ich unterschreibe einen Vertretungsvertrag - Details hier! (die Unterzeichnung des Vertrags ist gesetzlich vorgeschrieben)
- Ich richte eine OIB ein - Details hier (die Einrichtung ist gesetzlich vorgeschrieben)
- Besichtigungen vor Ort
- Unterzeichnung der Reservierung, des Kaufvertrags