ŠIBENIK, BRODARICA – Wohnung in einem Neubau mit Garage, 270 m vom Meer entfernt
| Registrationsnummer | DN-46697 |
| Art des Angebots | Verkauf |
| Kategorie | Appartements |
| Bezirk | Šibensko-kninska |
| Gemeindeteil | Šibenik - Okolica |
| Preis | 280 000 € |
| Gesamtfläche | 76 m² |
| Wohnfläche (Wohnung) | 76 m² |
| Entfernung vom meer | 270 m |
| Strom | |
| Wasser | |
| Klimaanlage | |
| Heizung | ano |
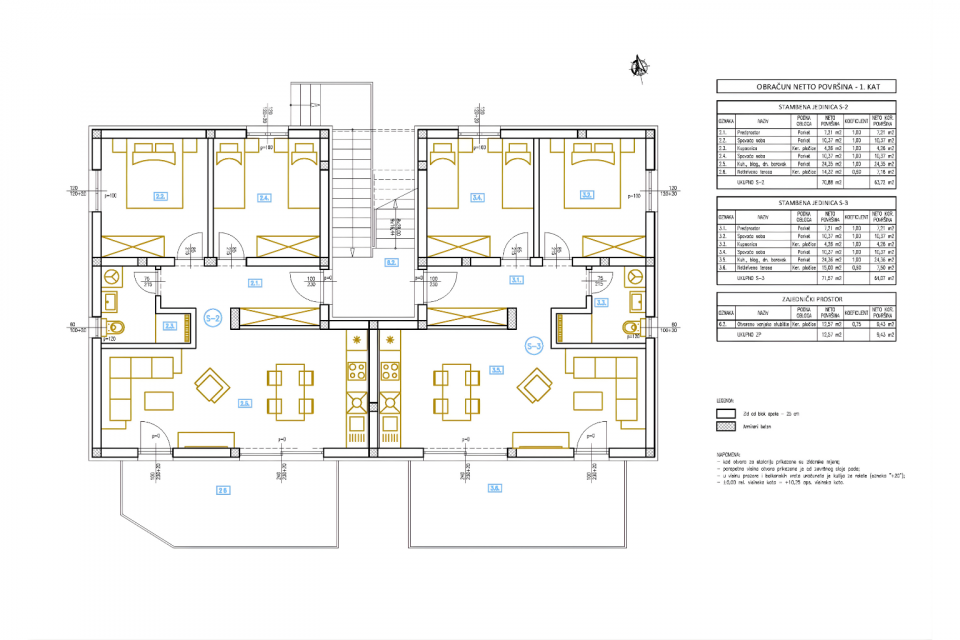
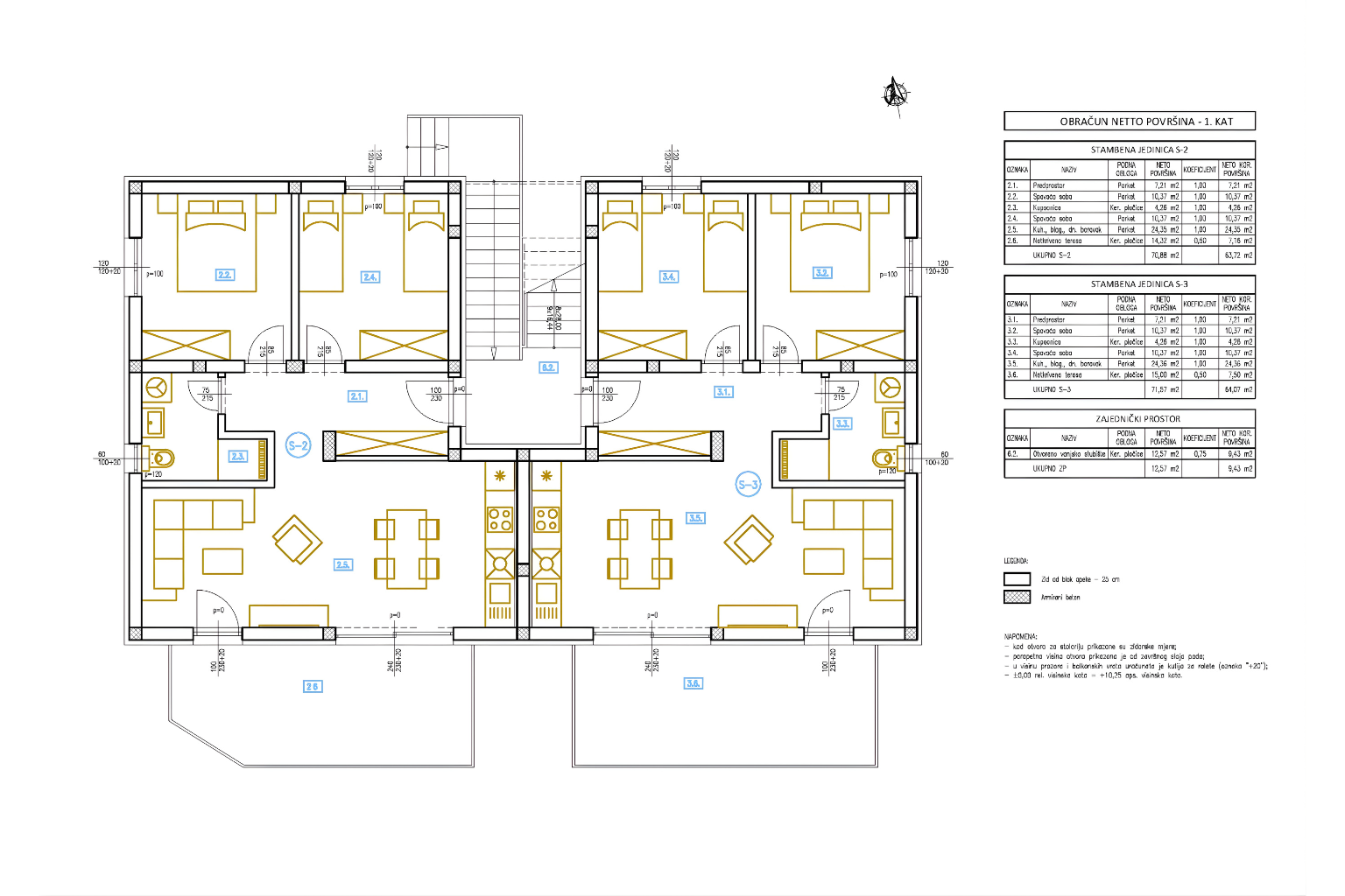
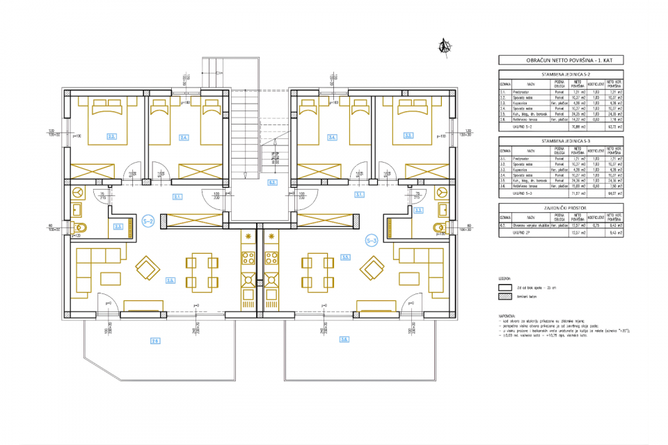
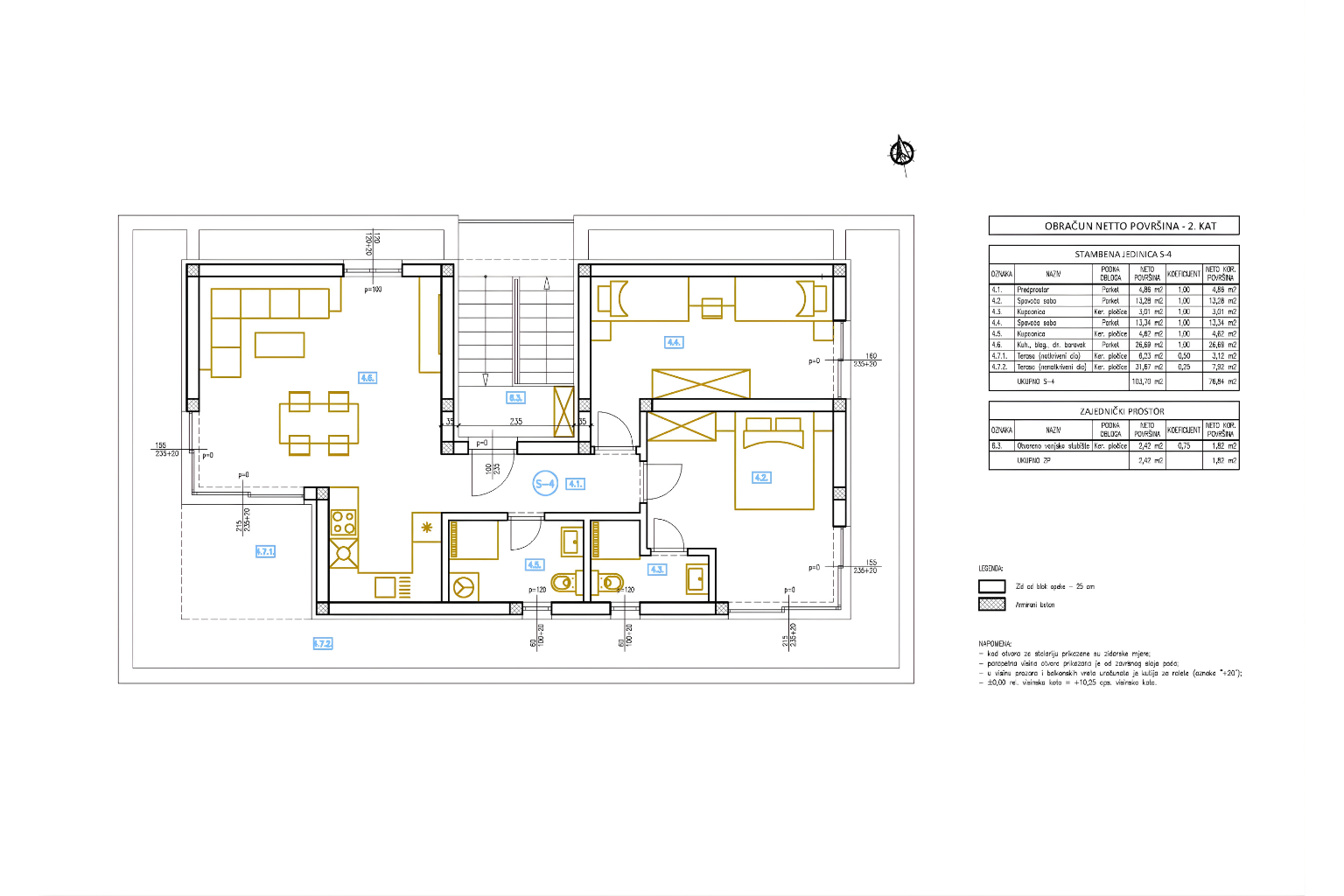
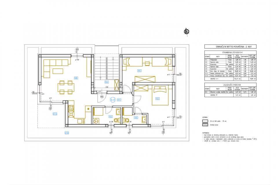
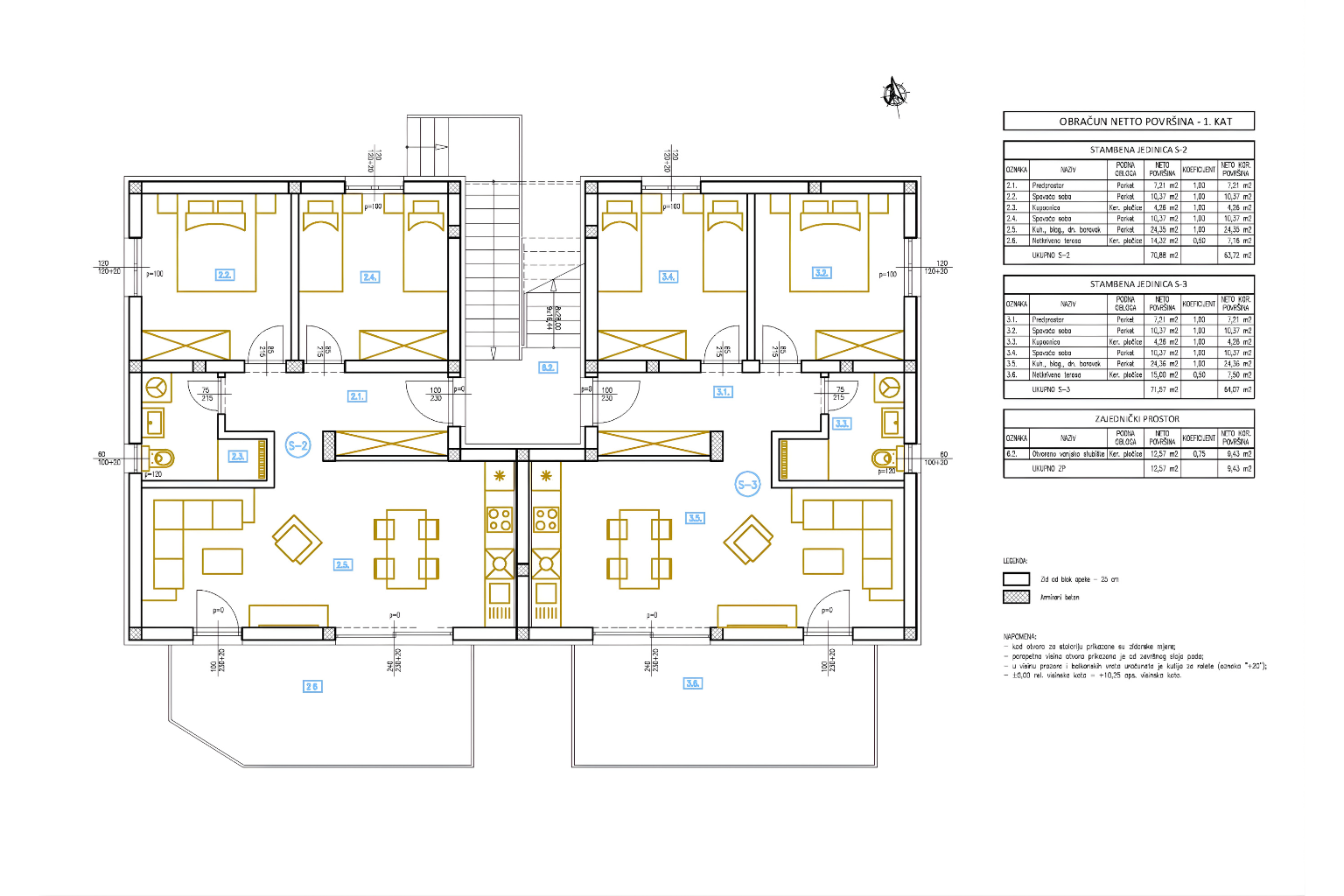
ŠIBENIK, BRODARICA – Neubauwohnung mit Garage, 270 m vom Meer entfernt In der derzeit begehrtesten Lage von Šibenik – Brodarica – nur 270 m vom Meer entfernt und in unmittelbarer Nähe zu allen Annehmlichkeiten, entsteht ein neues Projekt, ideal für Familien und Kapitalanleger. Das Projekt besteht aus zwei kleineren Gebäuden mit insgesamt 8 Wohnungen (jeweils 4 Wohnungen), verteilt auf Erdgeschoss und zwei Obergeschosse. Dies bedeutet weniger Nachbarn und mehr Privatsphäre. Im Erdgeschoss befinden sich Garagen und eine Wohnung, im ersten Obergeschoss zwei Wohnungen und im zweiten Obergeschoss Penthäuser mit Meerblick. Jede Wohnung verfügt über eine eigene Garage und einen zusätzlichen Außenstellplatz (Wohnung S3 hat keinen Außenstellplatz). Dies ist im Preis inbegriffen und heutzutage eine Seltenheit auf dem lokalen Markt. Kleinere Projekte erfreuen sich zunehmender Beliebtheit, da Käufer Ruhe, eine überschaubare Anzahl von Nachbarn und einen geringeren Wartungsaufwand schätzen. Die Kombination aus Garage, Außenstellplatz und der Nähe zum Meer (nur wenige Gehminuten entfernt) bietet hier einen zusätzlichen Mehrwert. WOHNUNGSBESCHREIBUNG Wohnung S2 (GEBÄUDE WEST) befindet sich im 1. Obergeschoss und verfügt über eine Gesamtfläche von 76,84 m², wovon 56,56 m² reine Wohnfläche sind. Die Südwestlage sorgt für viel Tageslicht. Der Eingangsbereich trennt Wohn- und Schlafbereich und schafft so eine klare und funktionale Raumaufteilung. Wohnzimmer, Küche und Essbereich bilden einen offenen, nach Süden ausgerichteten Wohnbereich, der eine angenehme, helle Atmosphäre mit direktem Zugang zur Terrasse für entspannte Stunden im Freien bietet. Funktionale Raumaufteilung mit klar getrennten Wohn- und Schlafbereichen sorgt für Ruhe und optimale Raumnutzung ohne unnötige Durchgänge. GRUNDRISS • Offener Wohn-/Essbereich mit Küche • Zugang zur Terrasse (14,32 m²) • 2 Schlafzimmer • Badezimmer • Flur zwischen Wohn- und Schlafbereich BAUQUALITÄT UND AUSSTATTUNG • 10 cm Wärmedämmfassade – für mehr Wohnkomfort und niedrigere Heizkosten • Fußbodenheizung in allen Räumen außer den Schlafzimmern • Klimaanlage in allen Räumen • Kunststoffbeschichtete Aluminiumfenster mit Dreifachverglasung – für bessere Wärmedämmung und Ruhe • Elektrische Rollläden und Moskitonetze – praktischer Schutz vor Insekten ohne zusätzliche Kosten • Kombination aus Keramik und Parkett – langlebig und behaglich LAGE Brodarica zählt zu den begehrtesten Wohnlagen in der Region Šibenik, gerade wegen der idealen Lage für den Alltag in unmittelbarer Nähe zum Meer. Alle wichtigen Einrichtungen sind in wenigen Minuten erreichbar, und die nur 270 Meter zum Meer ermöglichen einen schnellen und unkomplizierten Strandbesuch ohne Auto. Die Nähe zu Šibenik bietet schnellen Zugang zu allen städtischen Annehmlichkeiten, während die Lage selbst Funktionalität und gute Verkehrsanbindung gewährleistet. • Meer: 270 m • Geschäft: 400 m • Schule/Kindergarten: 1,2 km • Zentrum Šibenik: 7,7 km • Flughafen Split: 55,5 km • Flughafen Zadar: 78,5 km • Nationalpark Krka: 17 km • Autobahn: 11 km Die Lage an der Hauptstraße erleichtert die tägliche Fortbewegung und vermeidet enge Gassen – ein klarer Vorteil gegenüber vergleichbaren Lagen. FÜR WEN IST DIESE IMMOBILIE IDEAL? Eine ausgezeichnete Wahl für Käufer, die das Leben am Meer mit ganzjähriger Funktionalität und der Sicherheit einer Garage und zusätzlicher Parkplätze verbinden möchten. Aufgrund der Nähe zum Meer und der hohen Nachfrage nach Immobilien dieser Art stellt sie auch eine logische Wahl als langfristige Investition dar.
Bei allen unseren Angeboten sind die Preise identisch mit dem Direktkauf bei der Agentur/dem Entwickler in Kroatien, da wir der offizielle Vertreter dieser Agenturen auf dem tschechischen, slowakischen, deutschen und österreichischen Markt sind. Dies gilt ohne zusätzliche Zuschläge für deutschsprachige Dienstleistungen.
Sehr geehrte Kunden, die Besichtigung von Immobilien, die Mitteilung der Lage und andere detaillierte Informationen sind nur mit einem unterzeichneten Vermittlungsvertrag möglich, der die Grundlage für weitere Aktionen wie den Kauf einer Immobilie bildet. Alles steht im Einklang mit dem Gesetz über die Vermittlung beim Kauf von Immobilien. Der Käufer zahlt eine gesetzliche Vermittlungsprovision in Höhe von 3% (+ MwSt.) des vereinbarten Preises, und zwar nur im Falle des Kaufs der Immobilie. Sollte der Kauf nicht zustande kommen, ist der Vertrag für Sie nicht bindend und wird annulliert. Wenn Sie ernsthaft an der Immobilie interessiert sind, senden wir Ihnen den Vertrag auf Anfrage zu.
Wir werden Ihnen innerhalb von 24 Stunden antworten.
Wir bieten nur geprüfte Immobilien an.
Wir garantieren eine hohe Servicequalität.
Wir können Ihnen bei der Vermittlung von Unterkünften während der Besichtigungen helfen.
- Ich habe eine Immobilie aus dem Angebot ausgewählt
- Ich kontaktiere den Makler
- Ich unterschreibe einen Vertretungsvertrag - Details hier! (die Unterzeichnung des Vertrags ist gesetzlich vorgeschrieben)
- Ich richte eine OIB ein - Details hier (die Einrichtung ist gesetzlich vorgeschrieben)
- Besichtigungen vor Ort
- Unterzeichnung der Reservierung, des Kaufvertrags