ŠIBENIK, TRIBUNJ – NEUBAU! Luxusapartment mit Meerblick
| Registrationsnummer | DN-44386 |
| Art des Angebots | Verkauf |
| Kategorie | Appartements |
| Bezirk | Šibensko-kninska |
| Gemeindeteil | Tribunj |
| Preis | 330 540 € |
| Gesamtfläche | 78 m² |
| Wohnfläche (Wohnung) | 78 m² |
| Entfernung vom meer | 650 m |
| Strom | |
| Wasser | |
| Abfall | |
| Klimaanlage |
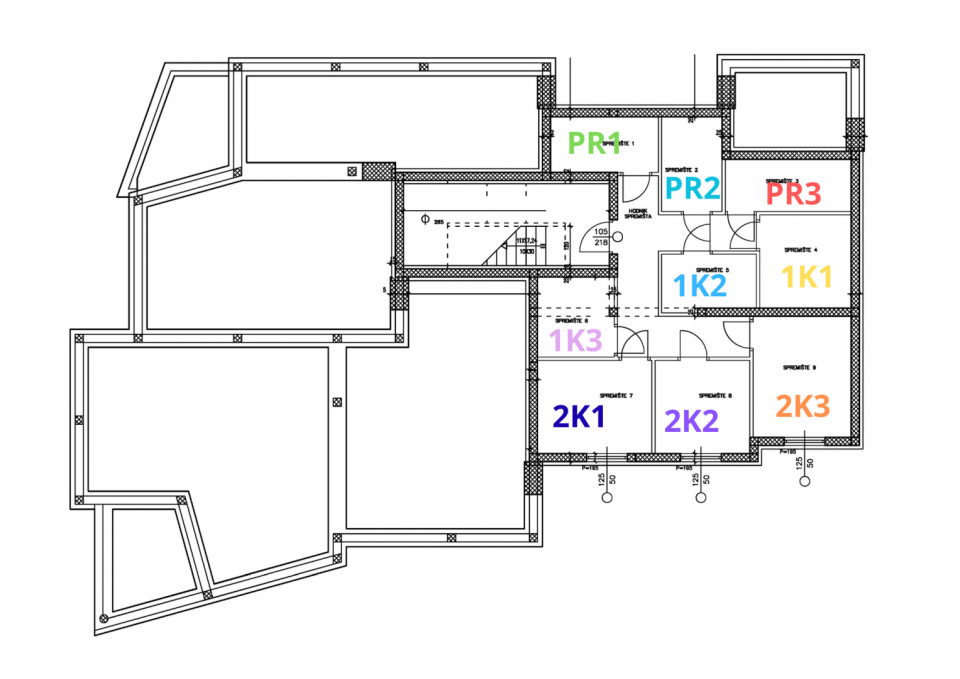
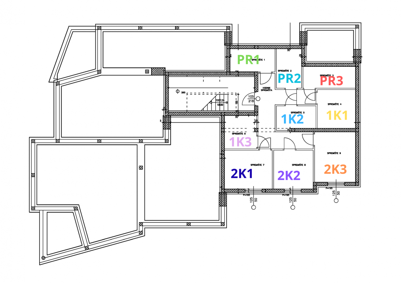
ŠIBENIK, TRIBUNJ – NEUBAU! Luxusapartment mit Meerblick DUX vermittelt den Verkauf einer Wohnung im 1. Obergeschoss eines Neubaus in Tribunj bei Šibenik. Die Wohnung befindet sich in einem Mehrfamilienhaus mit insgesamt neun Wohneinheiten. Das Gebäude erstreckt sich über vier Etagen: ein Untergeschoss (mit Abstellräumen für jede Wohnung), ein Erdgeschoss (drei Wohneinheiten mit Swimmingpool) und zwei Obergeschosse (jeweils drei Wohneinheiten mit herrlichem Meerblick). Das Gebäude befindet sich derzeit im Bau und wird voraussichtlich Ende 2026 fertiggestellt. Die 1K2-Wohnung bietet eine Wohnfläche von 78,7 m² und besteht aus einem offenen Wohn-, Küchen- und Essbereich mit Zugang zu einer überdachten Terrasse mit Meerblick, zwei Schlafzimmern, zwei Badezimmern sowie einem zusätzlichen Abstellraum und einem Flur. Zur Wohnung gehören außerdem ein Abstellraum im Untergeschoss und ein privater Parkplatz im Innenhof. Für den Bau werden ausschließlich hochwertige Materialien verwendet, und die Wohnungen werden schlüsselfertig verkauft. Der Investor kann auf zahlreiche erfolgreich abgeschlossene Projekte zurückblicken, die die hohe Bau- und Ausstattungsqualität belegen. Jede Wohnung verfügt über Fußbodenheizung, Klimaanlagen in allen Räumen, Sicherheitstüren, Aluminiumfenster und -türen mit Dreifachverglasung, Moskitonetze und elektrische Rollläden, Hebe-Schiebetüren aus Aluminium für den Balkon, Natursteinböden, moderne Badezimmerausstattung, TV-Anschlüsse in allen Schlaf- und Wohnzimmern, Glasgeländer auf den Terrassen und eine EPS-Fassade mit einer Mindeststärke von 10 cm. Die Immobilie befindet sich in einer wunderschönen Lage, nur 650 Meter vom Strand und 1500 Meter vom Stadtzentrum und Yachthafen entfernt. Die Umgebung ist geprägt von einer unberührten mediterranen Landschaft mit Feldern, Karst, Oliven- und Pinienbäumen, was diesen Standort besonders attraktiv und authentisch macht. Die Mehrwertsteuer ist im Preis enthalten, und der Käufer ist von der Grundsteuer befreit! Das Zentrum von Vodice ist nur wenige Kilometer entfernt, Šibenik nur 15 km, der Flughafen Zadar 58 km und der Flughafen Split 66 km. Dadurch ist die Lage hervorragend angebunden. Die Nationalparks Krka und Kornati sowie der Vrana-See befinden sich ebenfalls in der Nähe. Tribunj ist ein malerisches Fischerdorf und Touristenzentrum unweit von Vodice und Šibenik. Es ist bekannt für sein authentisches mediterranes Flair und seinen schönen Yachthafen. Der Ort besticht durch seinen alten Steinkern auf einer kleinen Insel, seine engen Gassen und seine traditionelle Architektur. Tribunj bietet einen erholsamen Urlaub mit sauberen Stränden, authentischer Gastronomie und abwechslungsreichen Veranstaltungen wie Eselrennen. Für weitere Informationen oder zur Vereinbarung eines Besichtigungstermins kontaktieren Sie uns bitte.
Bei allen unseren Angeboten sind die Preise identisch mit dem Direktkauf bei der Agentur/dem Entwickler in Kroatien, da wir der offizielle Vertreter dieser Agenturen auf dem tschechischen, slowakischen, deutschen und österreichischen Markt sind. Dies gilt ohne zusätzliche Zuschläge für deutschsprachige Dienstleistungen.
Sehr geehrte Kunden, die Besichtigung von Immobilien, die Mitteilung der Lage und andere detaillierte Informationen sind nur mit einem unterzeichneten Vermittlungsvertrag möglich, der die Grundlage für weitere Aktionen wie den Kauf einer Immobilie bildet. Alles steht im Einklang mit dem Gesetz über die Vermittlung beim Kauf von Immobilien. Der Käufer zahlt eine gesetzliche Vermittlungsprovision in Höhe von 3% (+ MwSt.) des vereinbarten Preises, und zwar nur im Falle des Kaufs der Immobilie. Sollte der Kauf nicht zustande kommen, ist der Vertrag für Sie nicht bindend und wird annulliert. Wenn Sie ernsthaft an der Immobilie interessiert sind, senden wir Ihnen den Vertrag auf Anfrage zu.
Wir werden Ihnen innerhalb von 24 Stunden antworten.
Wir bieten nur geprüfte Immobilien an.
Wir garantieren eine hohe Servicequalität.
Wir können Ihnen bei der Vermittlung von Unterkünften während der Besichtigungen helfen.
- Ich habe eine Immobilie aus dem Angebot ausgewählt
- Ich kontaktiere den Makler
- Ich unterschreibe einen Vertretungsvertrag - Details hier! (die Unterzeichnung des Vertrags ist gesetzlich vorgeschrieben)
- Ich richte eine OIB ein - Details hier (die Einrichtung ist gesetzlich vorgeschrieben)
- Besichtigungen vor Ort
- Unterzeichnung der Reservierung, des Kaufvertrags