ŠIBENIK, VODICE – Luxuriöses Maisonette-Apartment mit Garten, 200 m vom Strand entfernt
| Registrationsnummer | DN-43088 |
| Art des Angebots | Verkauf |
| Kategorie | Appartements |
| Bezirk | Šibensko-kninska |
| Gemeindeteil | Vodice |
| Preis | 448 800 € |
| Gesamtfläche | 136 m² |
| Wohnfläche (Wohnung) | 136 m² |
| Bebaute Fläche und Hof | 115 m² |
| Gesamt bebaut fläche | 115 m² |
| Entfernung vom meer | 200 m |
| Strom | |
| Wasser | |
| Klimaanlage | |
| Energieintensität | A - extrem wirtschaftlich |
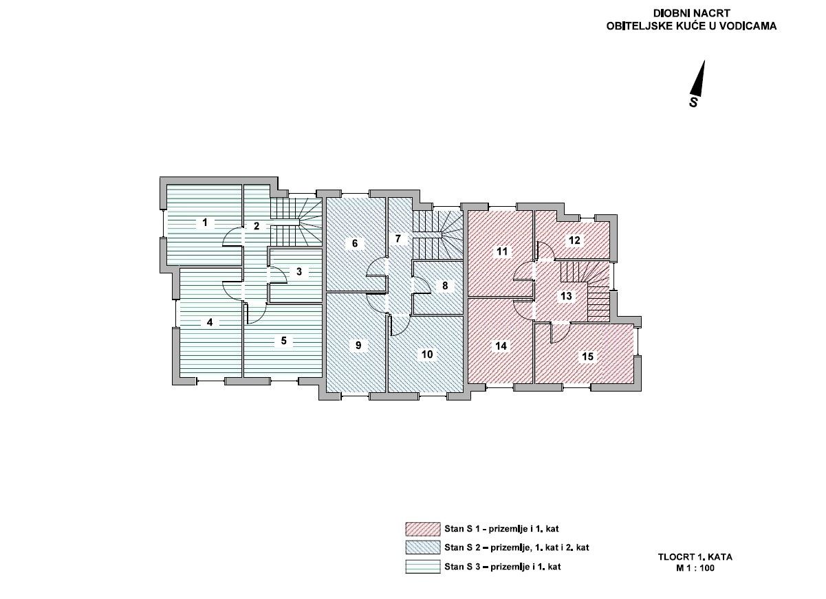
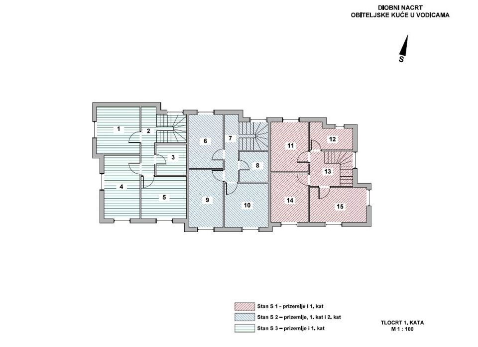
ŠIBENIK, VODICE – Luxuriöse Maisonette-Wohnung mit Garten, 200 m vom Strand entfernt präsentiert die moderne Maisonette-Wohnung S3 in attraktiver Lage in Vodice, nur 200 Meter vom Meer und gepflegten Stränden entfernt – oder in nur vier Gehminuten. Diese außergewöhnliche Immobilie bietet die perfekte Balance aus Luxus, Komfort und Funktionalität und ist ideal für Familien oder als Kapitalanlage für touristische Zwecke. Die Wohnung erstreckt sich über zwei Etagen – Erdgeschoss und Obergeschoss – mit einer Nettowohnfläche von insgesamt 136,48 m². Die Gesamtfläche inklusive Nebenräume beträgt 270,34 m². Im Erdgeschoss befinden sich eine offene Küche, ein Ess- und ein Wohnzimmer mit Zugang zu einer großzügigen Terrasse, ein Badezimmer und eine Innentreppe zum Obergeschoss. Die Wohnung verfügt außerdem über einen 35,37 m² großen Garten und einen 115 m² großen Garten, ideal zum Entspannen und Verweilen im Freien. Im ersten Stock befinden sich drei geräumige Schlafzimmer und ein Badezimmer, die jedem Familienmitglied absolute Privatsphäre und Komfort bieten. Grundriss: Erdgeschoss: Treppenhaus: 9,08 m² Badezimmer: 5,75 m² Wohnzimmer, Esszimmer und Küche: 27,51 m² Überdachte Terrasse: 12,33 m² Nicht überdachte Terrasse: 42,88 m² Garten: 35,37 m² Gartenfläche gesamt: 115 m² 1. Obergeschoss: Schlafzimmer 1: 13,30 m² Schlafzimmer 2: 14,79 m² Schlafzimmer 3: 12,07 m² Flur mit Treppe: 11,75 m² Badezimmer: 5,88 m² Die Wohnung verfügt über zwei Parkplätze und bietet höchste technische und ästhetische Baustandards. Ausstattung und Merkmale: Entfernung zum Meer und Strand: 200 m / 4 Gehminuten Fußbodenheizung in allen Räumen Klimaanlage in jedem Zimmer PVC-Fenster mit Dreifachverglasung und elektrischen Rollläden Hochwertige Wärmedämmung der Fassade (10 cm) Hochwertige Materialien und Verarbeitung Sanitärausstattung und Keramik von renommierten Herstellern Renommiertes und bewährtes Bauunternehmen Dieses moderne Neubaugebäude in Vodice bietet die ideale Gelegenheit für alle, die ein luxuriöses und funktionales Zuhause in Meeresnähe suchen und gleichzeitig eine sichere Investition in eine hochwertige Immobilie an der Adriaküste wünschen. Für weitere Informationen und eine Besichtigung dieser attraktiven Immobilie kontaktieren Sie uns bitte. Vodice zählt zu den begehrtesten Wohn- und Urlaubsorten an der Riviera von Šibenik – bekannt für seine langen Strandpromenaden, gepflegten Strände und das vielfältige touristische Angebot. Die Nationalparks Krka und Kornati befinden sich in der Nähe, die Flughäfen Split und Zadar sind 50 bzw. 85 Kilometer entfernt.
Bei allen unseren Angeboten sind die Preise identisch mit dem Direktkauf bei der Agentur/dem Entwickler in Kroatien, da wir der offizielle Vertreter dieser Agenturen auf dem tschechischen, slowakischen, deutschen und österreichischen Markt sind. Dies gilt ohne zusätzliche Zuschläge für deutschsprachige Dienstleistungen.
Sehr geehrte Kunden, die Besichtigung von Immobilien, die Mitteilung der Lage und andere detaillierte Informationen sind nur mit einem unterzeichneten Vermittlungsvertrag möglich, der die Grundlage für weitere Aktionen wie den Kauf einer Immobilie bildet. Alles steht im Einklang mit dem Gesetz über die Vermittlung beim Kauf von Immobilien. Der Käufer zahlt eine gesetzliche Vermittlungsprovision in Höhe von 3% (+ MwSt.) des vereinbarten Preises, und zwar nur im Falle des Kaufs der Immobilie. Sollte der Kauf nicht zustande kommen, ist der Vertrag für Sie nicht bindend und wird annulliert. Wenn Sie ernsthaft an der Immobilie interessiert sind, senden wir Ihnen den Vertrag auf Anfrage zu.
Wir werden Ihnen innerhalb von 24 Stunden antworten.
Wir bieten nur geprüfte Immobilien an.
Wir garantieren eine hohe Servicequalität.
Wir können Ihnen bei der Vermittlung von Unterkünften während der Besichtigungen helfen.
- Ich habe eine Immobilie aus dem Angebot ausgewählt
- Ich kontaktiere den Makler
- Ich unterschreibe einen Vertretungsvertrag - Details hier! (die Unterzeichnung des Vertrags ist gesetzlich vorgeschrieben)
- Ich richte eine OIB ein - Details hier (die Einrichtung ist gesetzlich vorgeschrieben)
- Besichtigungen vor Ort
- Unterzeichnung der Reservierung, des Kaufvertrags